




111 BOULEVARD PEREIRE
75017 Paris
396 m²
790 €
HT/HC/m²/an
Disponibilité : Immédiate

Marc TRAVERSE
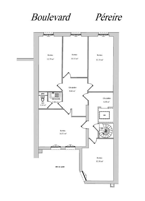
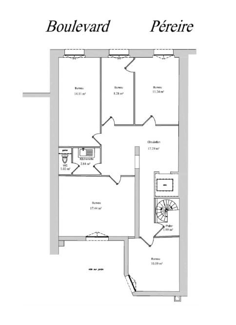
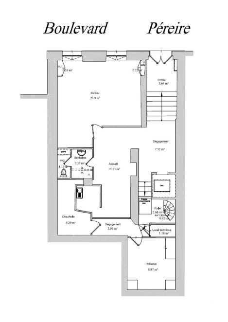
Description
Nous vous proposons à la location un Hôtel Particulier rénové à la location avec un jardin privatif.
PRODUIT RARE
Nous vous proposons à la location un Hôtel Particulier rénové à la location avec un jardin privatif.
Les Locaux sont aménagés, câblés et climatisés.
Charges et taxes très faibles sur l'immeuble.
Possibilité de prendre la surface en plug and play avec:
- 31 postes de travail
- 3 salles de réunion équipées
- 1 cuisine
CAPACITAIRE DE 50 PERSONNES
PRODUIT RARE
Nous vous proposons à la location un Hôtel Particulier rénové à la location avec un jardin privatif.
Les Locaux sont aménagés, câblés et climatisés.
Charges et taxes très faibles sur l'immeuble.
Possibilité de prendre la surface en plug and play avec:
- 31 postes de travail
- 3 salles de réunion équipées
- 1 cuisine
CAPACITAIRE DE 50 PERSONNES
Services & prestations
Aménagements
-
Accès Pers. Mobilité Réduite
-
Complexe Salle de réunion : Plusieurs salles de reunions
-
Effectif théorique : 50 personne(s)
-
Sanitaires : A chaque étage
Equipements
-
Ascenseurs
-
Climatisation : Réversible
-
Câblage informatique
Type / Etat du bâtiment
-
Immeuble indépendant
-
Type d'immeuble : Hôtel particulier
Informations complémentaires
-
Espace cuisine, Jardin privatif, Locaux aménagés, clés en main, Prestations de qualité
-
Grand balcon, Plusieurs bureaux privatifs et open spaces
-
Possibilité de reprise du mobilier avec le locataire en place Localisation










