




44 RUE DUHESME
75018 Paris
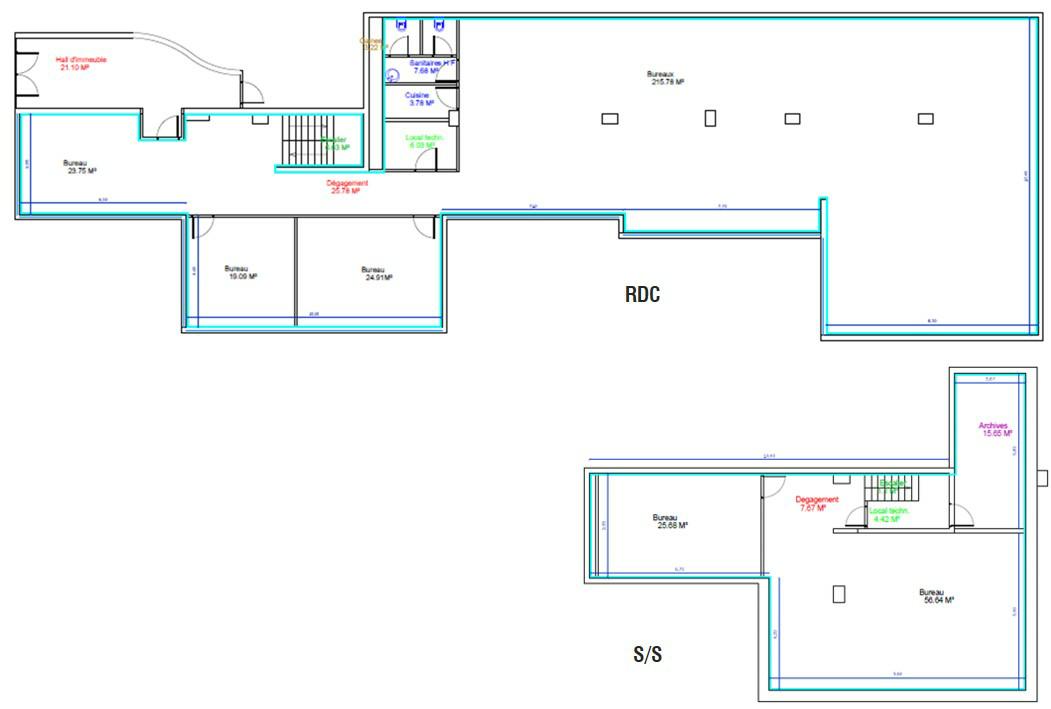
416 m²
350 €
HT/HC/m²/an
Disponibilité : Immédiate

Sophie HUYNH
Description
Profitez d’une opportunité rare de bureaux dans le 18e, au sein d’un environnement dynamique et parfaitement desservi.
QUARTIER ORDENER, BNP PARIBAS REAL ESTATE VOUS PROPOSE UN LOCAL DE BUREAUX D'UNE SURFACE TOTALE DE 416 M² RENOVEE ET CLIMATISEE.
POSSIBILITE DE LE RENDRE ERP (3 ISSUES)
A PROXIMITE DE LA RUE ORDENER, ANIMEE PAR LA DIVERSITE DE SES COMMERCES, BNP PARIBAS REAL ESTATE VOUS PROPOSE UN LOCAL DE 416 M² COMPLTEMENT RENOVE ET PRET-A-L'EMPLOI.
EQUIPEMENTS : CUISINE EQUIPEE (REFRIGERATEUR, PLAQUE DE CUISSON, HOTTE, REFRIGERATEUR, MICRO-ONDES)
CLIMATISATION NEUVE
CHAUFFAGE COLLECTIF
SOL PVC IMPRESSION PARQUET
3 WC DONT 1 PMR
PORTE BLINDEE
VISIOPHONE
VOLETS ELECTRIQUES
DESSERTE : METRO JULES JOFFRIN (LIGNE 12) A 600 M (3 MINUTES)
ROUTIERE : PORTE DE CLIGNANCOURT
3 PARKINGS EN SOUS-SOL
RDC ACCESSIBLE PMR
Services & prestations
Aménagements
-
Accès Pers. Mobilité Réduite : Accès de plain pied au RDC
-
Aménagement des bureaux : Cloisonnés/Ouverts 6 bureaux
-
Sanitaires : 3 Privatif(s) dont 1 PMR
Equipements
-
Climatisation
-
Eclairage Bureaux : Luminaires encastrés
-
Faux plafond
-
Sol bureaux : PVC impression parquet
-
Type de chauffage : Collectif
Normes, Certifications et Labels
-
Catégorie ERP : 5 possibilité
Type / Etat du bâtiment
-
Etat des locaux : Rénové
-
Immeuble copropriété
Informations complémentaires
-
Cuisine équipée
-
Volets électriques










