




105 Rue Réaumur
75002 Paris
2 712 m²
850 €
HT/HC/m²/an
Disponibilité : T3 2026

camille rousseau-busson
Description
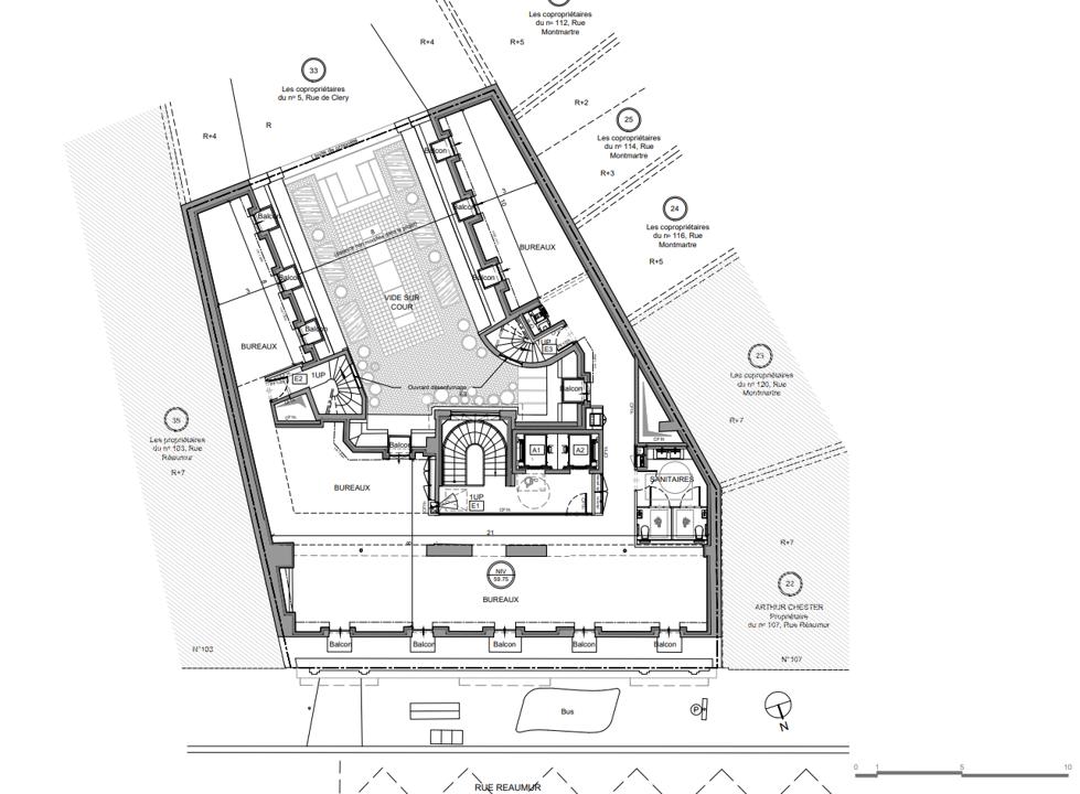
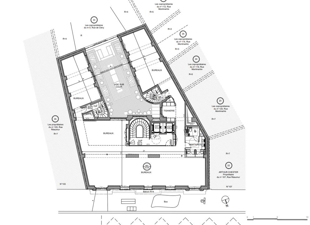
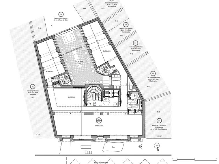
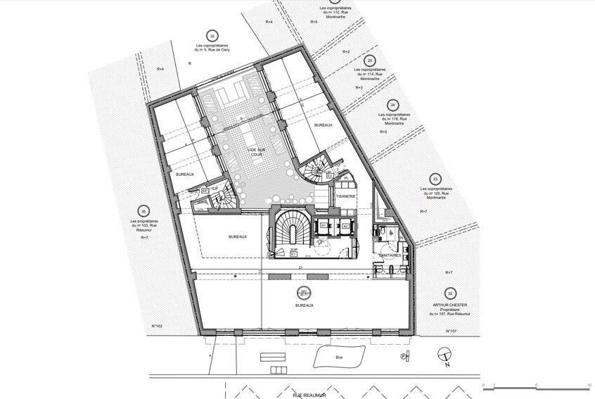
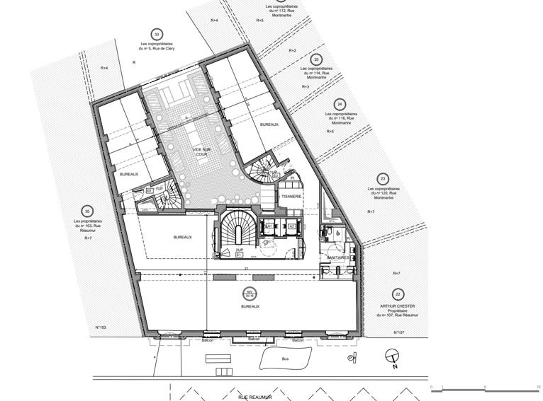
Quartier Central des affaires, à proximité de la Bourse, nous vous proposons ce très bel immeuble en pierre de taille et structure métallique développant 2 928 m² environ à usage de bureaux, archives et locaux techniques répartis en R+7 sur 2 niveaux de sous-sols. Les plateaux en forme de "U" sont organisés autour d'un patio central.
BNP PARIBAS REAL ESTATE vous propose à la location cet immeuble de très bel facture situé au 105 rue Réaumur
L'immeuble se caractérise par sa très belle façade ouvragée en pierre de taille et structure métallique imaginée par l'architecte Charles Ruzé en 1899.
L'ensemble fera l'objet d'une restructuration complète par un cabinet d'architectes de renom pour une livraison T3 2026.
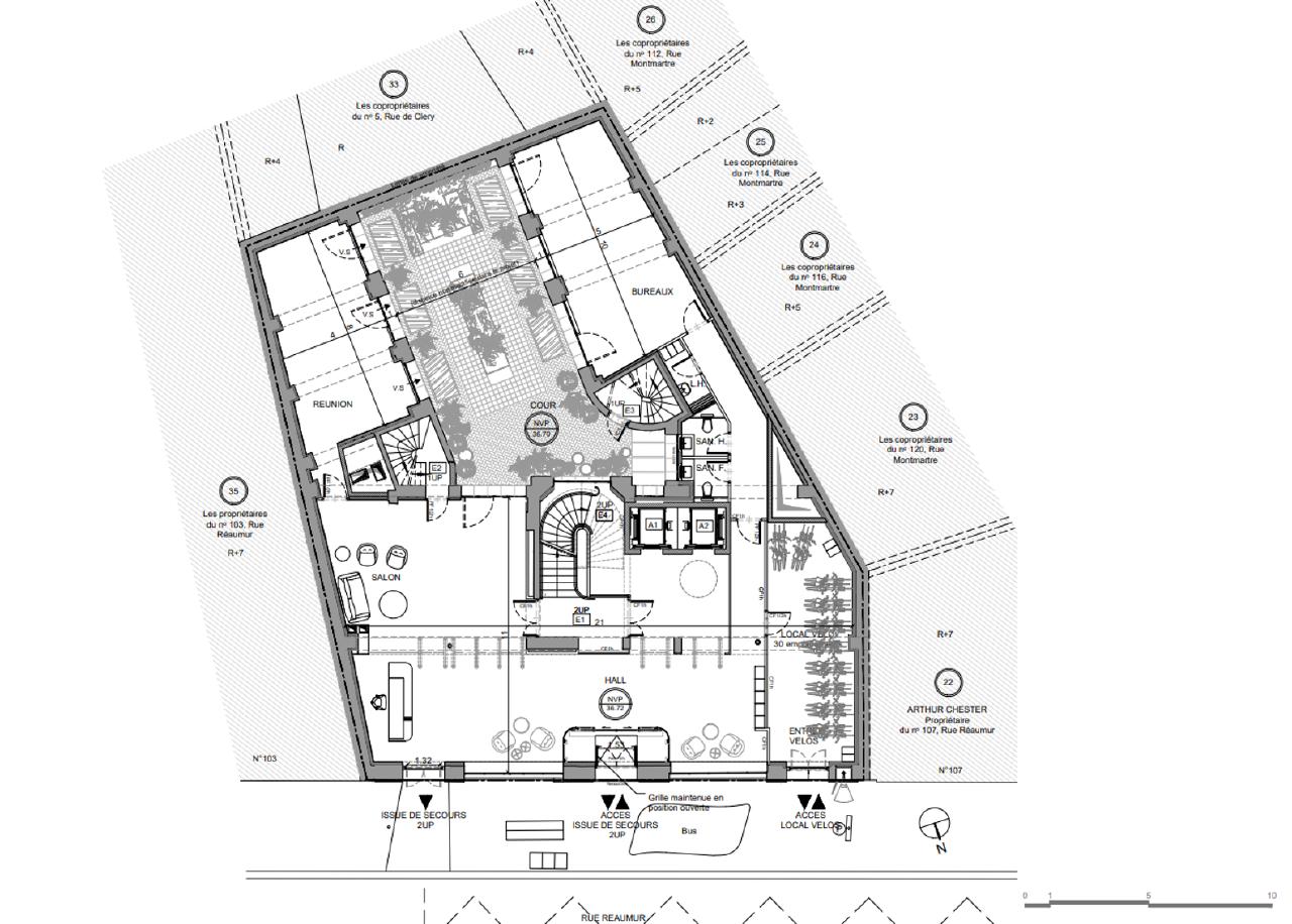
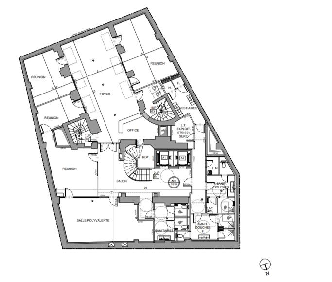
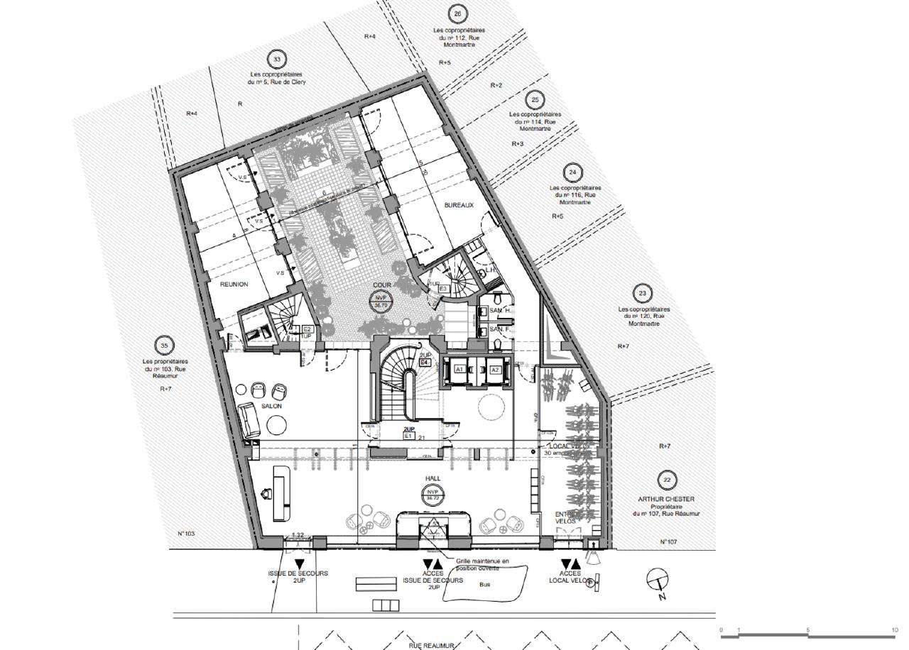
Le rez-de-chaussée est composé de la manière suivante :
un large accueil et salon d'attente traversant vers un patio privatif accessible et végétalisé
un local vélo accessible directement depuis la rue
deux zones de bureaux ou réunions donnant sur le patio
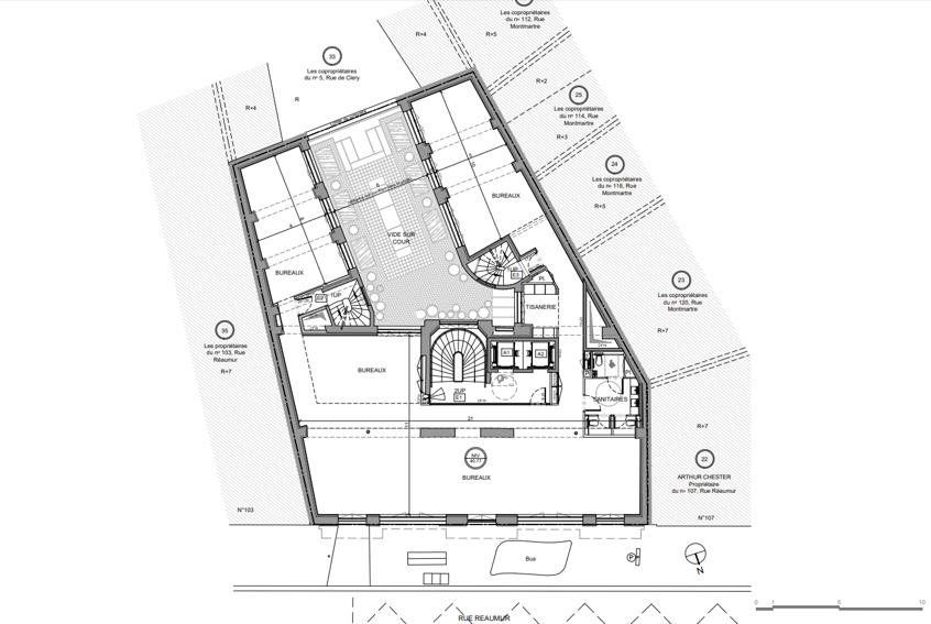
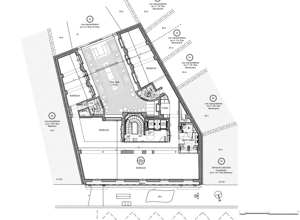
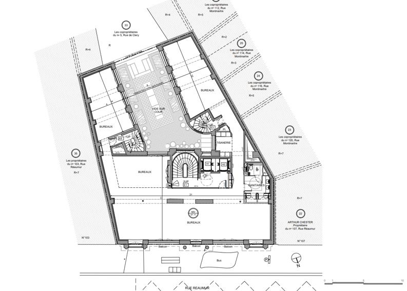
Les plateaux courants d'environ 312 m² en forme de « U » offre de beaux volumes de bureaux en premier jour organisés en façade de l'immeuble et de chaque côté du patio intérieur. Ces espaces ouverts avec très peu de contrainte porteuses permettent un aménagement flexible (cloisonné ou open-space).
Chaque niveau (à l'exception du R+7) bénéficie d'un espace tisanerie.
Services & prestations
Aménagements
-
Accueil : Hôtesses
-
Accès Pers. Mobilité Réduite
-
Aménagement des bureaux : Espaces Ouverts flexible - peu de contrainte porteuse
-
Complexe Salle de réunion : Au R-1
-
Effectif théorique : 300 personne(s)
-
Hall d'accueil : Indépendant traversant vers patio privatif
Equipements
-
Ascenseurs : 2
-
Climatisation : Réversible
-
Distribution climatisation : Ventilo convecteur en plafonnier
-
Eclairage Bureaux : Luminaires encastrés
-
Faux plafond : Dal. fibres minéral.
-
Fenêtres : Double vitrage
-
Groupe électrogène
-
Plinthes techniques périphériques
-
Production climatisation : Réseau urbain Fraicheur de Paris
-
Source chauffage : Géothermie CPCU
-
Type de chauffage : Collectif
Prestations de service
-
Cafétéria : Espace dédié au RDC
-
Parking : 80 Places
-
Sécurité : Contrôle d'accès badge, pc sécurité, interphone
Extérieurs
-
Terrasses - jardins : Patio aménagé au RDC
Normes, Certifications et Labels
-
Certification : BREEAM, HQE
Type / Etat du bâtiment
-
Etat de l'immeuble : Restructuré avec PC T3 2026
-
Etat des locaux : Restructuré avec PC
-
Immeuble indépendant
-
Orientation façade : SUR RUE
Informations complémentaires
-
Plateaux lumineux et fonctionnels, Très belle façade ouvragée
-
Espaces tisaneries, Local vélo au RDC
-
Public RDC : 56 personnes / R-1 : 29 personnes, RDC et R-1 ERP










