




SMARTWAY
116 Rue Réaumur
75002 Paris
3 776 m²
Divisible dès 479 m²
960 €
HT/HC/m²/an
Disponibilité : Immédiate

Olivier MACON
Description
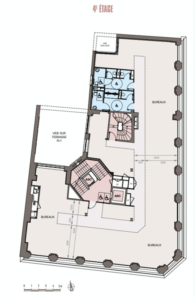
Au cœur du 2ème arrondissement, à proximité de la Bourse, à l’angle de la rue du Sentier, nous vous proposons à la location ce très très bel immeuble d'angle d'une superficie d'environ 3 781 m² répartis du rez-de-chaussée au R+7 au pied du métro Ligne 3. Deux lots de commerces L'ensemble fait l'objet d'une restructuration complète, le tout agrémenté de balcon et terrasse.
- Au cœur de la Silicon Valley parisienne, à deux pas de l‘Opéra Garnier et de la place de la Bourse, dans le vibrant 2e arrondissement.
- Un immeuble iconique offrant 3 110 m2 de généreux espaces de bureaux entièrement rénovés, révélant tout le caractère historique des lieux avec notamment la mise en valeur de son architecture métallique et de ses vitraux d’origines.
- Trois commerces d'environ 642 m² au total sont situés au rez-de-chaussée et R-1 : (lot 1 : 151 m², lot 2 : 285 m², lot 3 : 206 m²).
- Riche d’espaces collaboratifs et extérieurs. Sobre en énergie, connecté à des ressources mutualisées.
- Fort de 5 certifications environnementales et digitales
- Un vaste espace d’accueil et de coworking agrémenté d’équipements variés
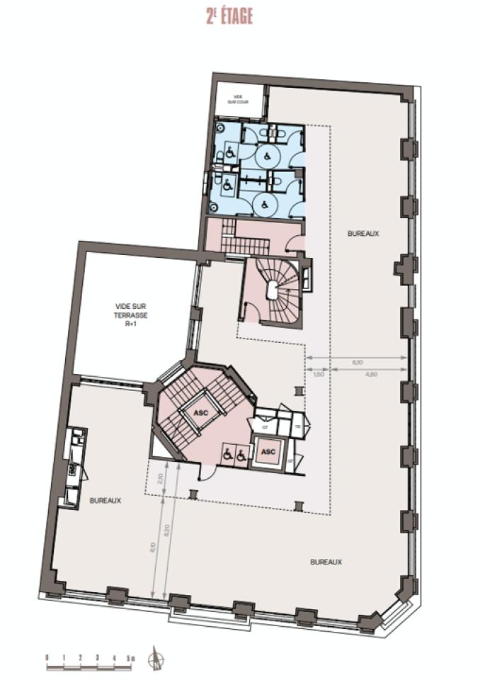
- Des plateaux lumineux d’environ 480 m². Ils invitent à travailler devant de larges ouvrants, dans des espaces offrant d’agréables hauteurs sous plafond allant jusqu’à 3,50 m
- Un excellent ratio d’occupation (1 personne pour 8 m²) permet à l’immeuble d’accueillir jusqu’à 320 personnes
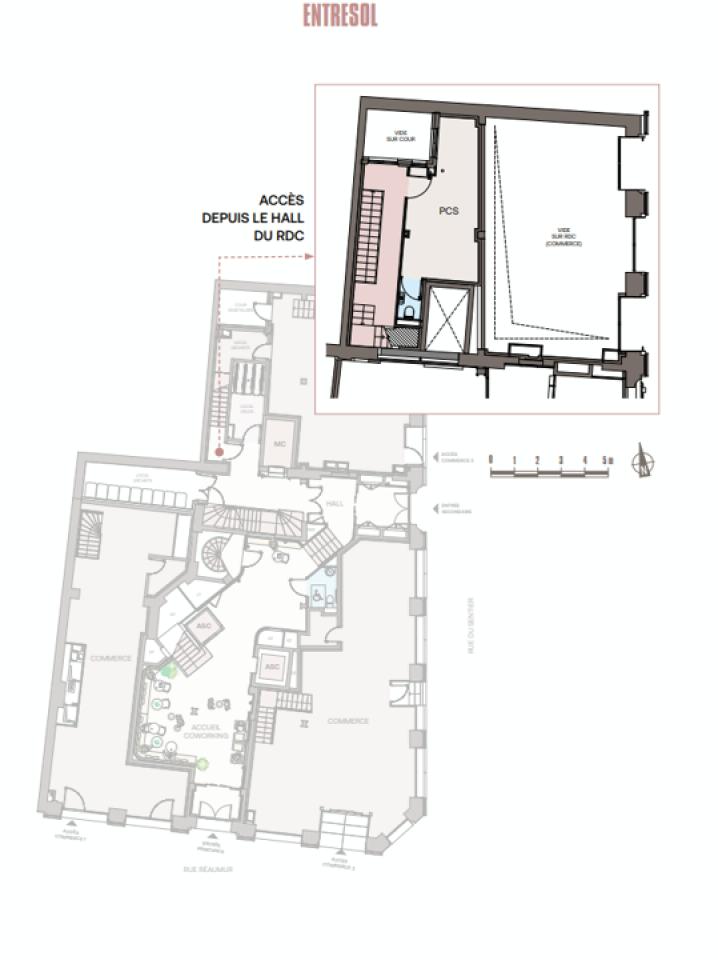
- Accès secondaire 1 rue du Sentier.
Services & prestations
Aménagements
-
Accueil
-
Accès Pers. Mobilité Réduite
-
Aménagement des bureaux : Cloisonnés/Ouverts
-
Complexe Salle de réunion : Au R-1
-
Effectif théorique : 320 personne(s)
Equipements
-
Ascenseurs : 2 en duplex, dont un panoramique
-
Climatisation : Réversible
-
Douche : Et vestiaires au R-1
-
Faux plafond
-
Faux plancher : 4,00 cm
-
Production climatisation : Réseau urbain Fraicheur de Paris
Hauteurs
-
Hauteur sous-plafond : Entre 2,39 et 3,50 m
Prestations de service
-
Parking : 32 Places
-
Sécurité : Contrôle d'accès, PC Sécurité
Extérieurs
-
Terrasses - jardins : 79 m² de terrasse et balcons
Normes, Certifications et Labels
-
Certification : BREEAM
Type / Etat du bâtiment
-
Etat de l'immeuble : Rénové
-
Etat des locaux : Restructuré avec PC Style Eiffel
-
Immeuble indépendant
-
Orientation façade : SUR RUE
Informations complémentaires
-
Escalier monumentale
-
Corniches patrimoniales au R+2
-
Poteaux de type Eiffel apparents










