




Location Bureau 74 m²
75020 Paris
74 m²
291 €
HT/HC/m²/an
Disponibilité : Immédiate

Louise GOASGUEN
Description
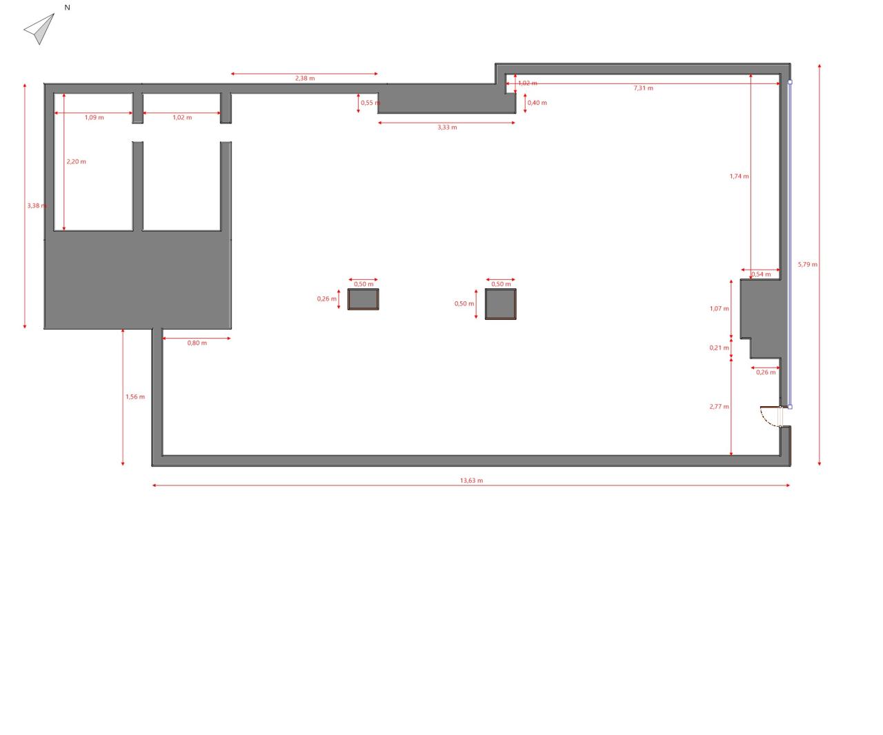
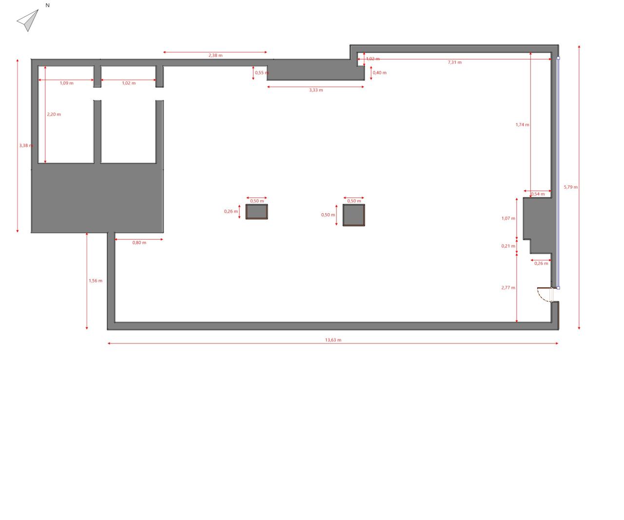
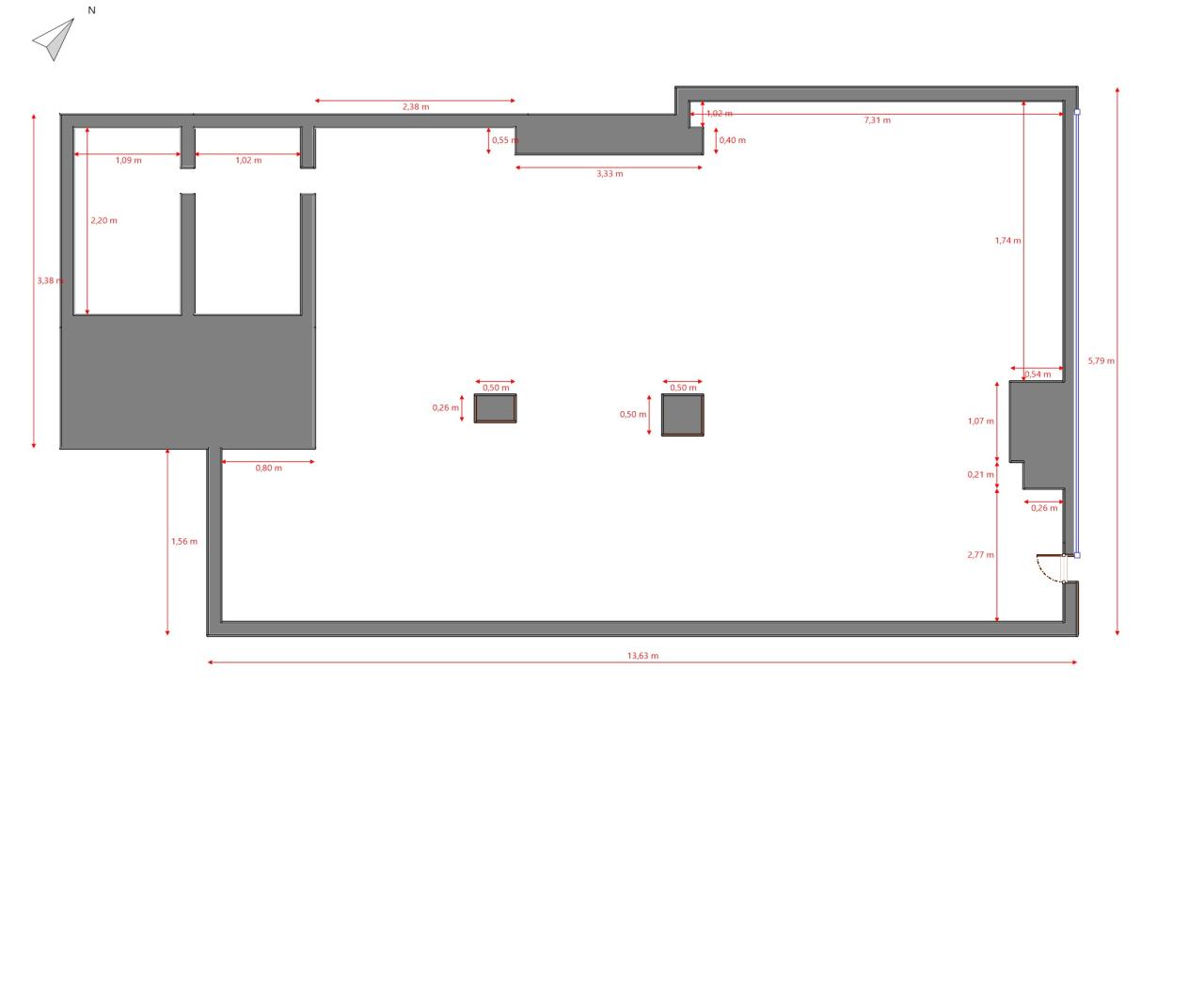
LOCATION BUREAUX PARIS 20ème - Rez-de-chaussée avec vitrine
BNP Real Estate vous propose à la location un local commercial de 74m2 environ en rez-de-chaussée sur cour. Ce local avec vitrine est composé d'un vaste open space, et sera facilement aménageable pour différents types d'activités.
A proximité immédiate de la mairie du 20ème, ce local est situé dans quartier en plein essor, entouré de commerces de proximités, de restaurants et de services offrant un cadre de travail dynamique.
L'espace fonctionnel et bien distribué conviendra parfaitement à votre activité.
Cet emplacement vous séduira par son excellente desserte en transports en commun :
- Station Gambetta (Ligne 3) à 3 minutes à pied.
- Station Pelleport (Ligne 3bis) à 5 minutes à pied.
Conditions financières :
Loyer 1700 euros / mois HC HT
Charges 150 euros / mois
Taxe Foncière 1174 euros / an (année 2024)










