- Paramétrer l'affichage
Actualiser la recherche quand je déplace la carte
Lorsque cette option est activée, les résultats de recherche s'actualisent en fonction du positionnement de la carte.Paramétrer la zone de distance
- Paramétrer la zone
Lorsque cette option est activée, une zone de distance s'affiche autour d'un point sélectionné.
Personnalisez et délimitez la zone de distance en fonction du moyen de locomotion. Par défaut, la zone est programmée à 5 min à pieds.
Moyen de locomotion :
en voitureen transportsà véloà piedsTemps de trajet :
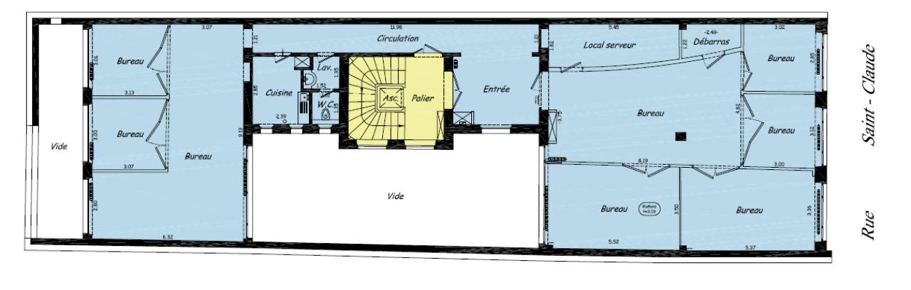
Location Bureaux L'Arsenal
2 bureaux à louer et 38 à proximité.
Comparateur

Location Bureau L'Arsenal Paris : tout savoir
Pour une entreprise ou une société, trouver la bonne implantation relève d'un choix stratégique. Celle-ci influe sur la santé de votre activité. Parmi les critères de sélection, l'accès est primordial, raison pour laquelle les locations de bureaux à Paris à Arsenal s'avèrent être une option judicieuse.
Une location de bureau à Arsenal dans un quartier blotti au centre de Paris
La location de bureaux à l'Arsenal donne accès à des sites d'implantation stratégiques pour votre entreprise. Situé dans le quatrième arrondissement de Paris et bordé par le quai Henri-IV, le quartier est délimité par la rue Saint-Paul et la rue de Turenne. Le 2ème est composé de 3 autres quartiers : Notre-Dame, Saint-Gervais et Saint-Merri. De plus, il se situe à proximité du 3ème et du 11ème arrondissement de Paris. Il abrite quelques-uns des sites touristiques majeurs de Paris : la place de la Bastille à l'est, la place des Vosges au nord ou encore la maison de Victor Hugo. Ces lieux d'intérêt cultivent l'attractivité du quartier, qui profite également de la proximité des grandes artères commerçantes comme la rue de Rivoli avec le BHV Marais, un des plus grands centres commerciaux de la capitale. Pôle touristique et résidentiel, cette zone possède également un important parc immobilier qui inclut des offres de location de bureaux à l'Arsenal, à Paris.
Des projets urbains pour renforcer l'attractivité d'une location de bureaux à Arsenal
Les futurs occupants des bureaux à louer dans le quartier d'Arsenal à Paris bénéficient de l'excellente visibilité de ce quartier touristique, mais pas seulement. Les entreprises qui s'y implantent profiteront également des améliorations et des rénovations insufflées par la municipalité. Dans le quatrième arrondissement de Paris, plusieurs projets de réhabilitation ont été mis en place et Arsenal fait partie des quartiers concernés. La création d'une aire de fitness est également prévue, qui aura la particularité d'être connectée avec une application de coaching. L'aménagement d'un espace vert est programmé dans la rue de Sully. L'étude du projet a été finalisée en 2017 et la livraison est attendue courant 2018. Cette même année, les travaux de réaménagement du boulevard Bourdon débuteront, pour développer la végétalisation du quartier. Les travaux visent enfin à intégrer dans le quartier plus d'infrastructures de loisirs et de sport. Les titulaires des baux de location de bureaux à Arsenal à Paris profiteront de l'amélioration de l'environnement local et de la qualité de vie qui en découle.
Une location de bureaux à Arsenal : un site d'implantation attractif, facile d'accès
La question de l'accessibilité est au cœur des préoccupations lors de la recherche d'un bureau à louer dans le quartier de l'Arsenal dans le 4e arrondissement de Paris. Niché en plein cœur de la capitale, Arsenal profite de la présence de la station de métro Sully - Morland, desservie par la ligne 7. Avec La Courneuve au nord-ouest et Villejuif - Louis Aragon ou Mairie d'Ivry au sud-est comme terminus, cette ligne ne compte pas moins de 38 stations entre Seine-Saint-Denis et Val-de-Marne. La ligne 67 du bus (Pigalle/Stade Charléty - Porte de Gentilly) passe par l'arrêt Sully - Morland et d'autres lignes, comme la 20 (Gare Saint-Lazare/Gare de Lyon), la 69 (Champs de Mars/Gambetta) et la 87 (Porte de Reuilly/Bastille/Champ de Mars) traversent le quartier.








































































































































































































































































































































































































































































































































































