




Location Bureau 368 m²
75003 Paris
368 m²
Divisible dès 163 m²
à partir de 672 €
HT/HC/m²/an
Disponibilité : 30/06/2026

Louise GOASGUEN
Description
BUREAUX A LOUER - COEUR MARAIS - REFAIT A NEUF - TERRASSE
BNP Paribas Real Estate a le plaisir de vous présenter, deux plateaux de bureaux au sein d'un très bel immeuble en pierre de taille. Les surfaces seront livrées rénovées par le bailleur début 2026.
Le plateau du R+6 bénéficie d'une très belle terrasse privative de 20 m².
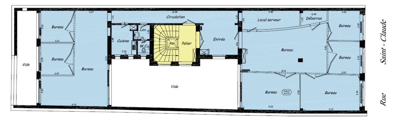
Une surface de 204,5 m² pourrait également être à louer au R+2.
BNP Paribas Real Estate vous propose, au coeur du Marais, de magnifiques bureaux entièrement rénovés à louer dans un immeuble de standing situé 6 rue Saint-Claude, Paris 3e.
L'ensemble développe 368 m² d'espaces de travail, divisibles à partir de 163 m², offrant une modularité totale pour répondre à tous les besoins d'aménagement.
Les plateaux seront livrés refaits à neuf par le bailleur courant 2026. Le plateau du 6e étage bénéficie d'une belle terrasse privative d'environ 20 m², idéale pour des moments de convivialité ou de détente en plein air. Une seconde surface de 205 m² est également disponible à la location au R+2.
Implanté dans un quartier vivant et emblématique, l'immeuble bénéficie d'une situation stratégique, à proximité immédiate de nombreux commerces, cafés, restaurants et services.
L'accessibilité est optimale :
- métro Saint-Sébastien-Froissart (ligne 8) à 100 m,
- Chemin Vert, Filles du Calvaire, Richard Lenoir et Bréguet-Sabintoutes accessibles en moins de 5 minutes à pied.
Ce bien rare à la location incarne l'élégance et l'authenticité du Marais, tout en offrant le confort et la flexibilité recherchés par les entreprises d'aujourd'hui.
Disponibilité : 1er juin pour le R+6 et 1er septembre pour le R+2
Services & prestations
Aménagements
-
Aménagement des bureaux : Cloisonnés/Ouverts
-
Bureaux cloisonnés : 2
-
Complexe Salle de réunion : 2 salle(s)
Equipements
-
Ascenseurs : 1
-
Type de chauffage : Collectif
Prestations de service
-
Sécurité : Système de sécurité
Type / Etat du bâtiment
-
Etat des locaux : Refaits à neuf en 2019, très lumineux
Informations complémentaires
-
Kitchenette










