




QUARTER
193 Rue de Bercy
75012 Paris
19 117 m²
Divisible dès 424 m²
Loyer sur demande
Disponibilité : 04/03/2027

Alix GATAULT-KOLB
Description
Découvrez QUARTER, un immeuble de bureaux exceptionnel au pied du hub de transport de la Gare de Lyon. Avec ses 19 137m² de bureaux et services, Quarter offre une expérience de travail novatrice et résolument durable.
Ce projet unique se compose de deux tours IGH (50m) posées sur un socle de 3 étages. La Tour du temps (tour A) voisine de l’iconique Tour de l’horloge et de son hub de transports, développe 13 517m² d’espaces lumineux et inspirant avec des vastes plateaux d'environ 1 121 m²,
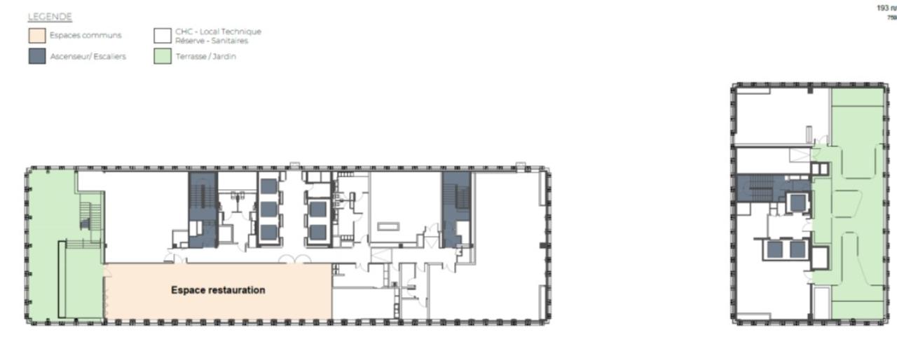
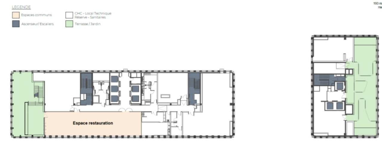
tandis que la Tour du mouvement (tour B) totalisant 5 620 m², propose des plateaux à taille humaine de 425 m², en bord de Seine, multipliant les perspectives inspirantes sur tout Paris !
Solution clé en main sur la Tour du mouvement.
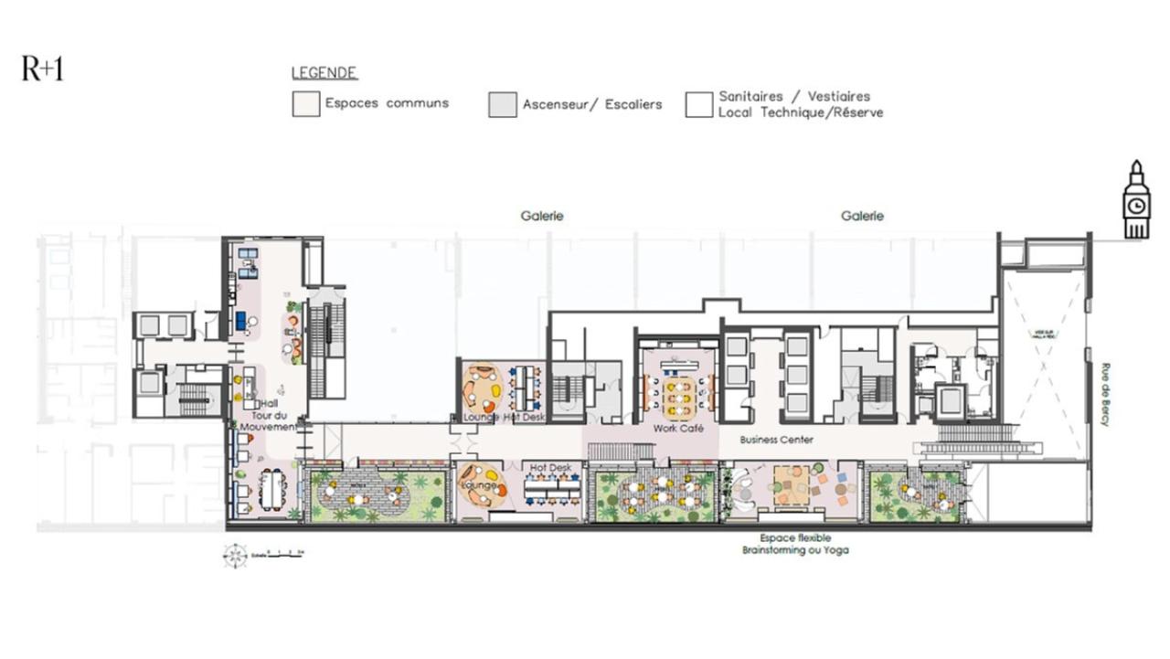
Rénové par Thomas Dubuisson, petit-fils de l'architecte Jean Dubuisson, Quarter allie l'héritage architectural à la modernité avec ses façades lumineuses et une nouvelle façade efficiente sur le plan énergétique. Quarter est idéalement situé au coeur d'un quartier effervescent en pleine transformation. Il offre un accès direct à la Gare de Lyon (SNCF, métro/RER 1, 14, A, D) via une passerelle. Pensé pour le bien-être de ses occupants, QUARTER propose des espaces extérieurs spacieux, dont deux rooftops ainsi qu'un meeting hub. Une nouvelle zone de restauration avec terrasse est prévue au 15ème étage profitant de vues à 360° sur les grands monuments. .
QUARTER est à la pointe des exigences écologiques avec les certifications HQE Bâtiment Durable (Excellent), Breeam RFO (Excellent), Breeam in Use (Excellent), Wiredscore et Osmoz.
QUARTER révolutionne la vie au bureau en introduisant une programmation d'événements culturels prenant vie lors de rendez-vous réguliers. Une expérience rythmée qui apporte du relief au quotidien et tisse des liens durables entre ses occupants.
Services proposés :
Studio podcast
Creative room
Rooftop événementiel
Corner d'exposition éphémère by Welcome at Work et une programmation culturelle animée par les Magasins Généraux
Salon voyageur
Business center
Auditorium
1 000m² de rooftops et terrasses
Une offre de produits frais et variés, by Frichti : workcafé, skybar
Parking pour vélos et bornes de recharge pour les voitures électriques
Si vous recherchez un environnement de travail vibrant, inspirant et stimulant pour vos équipes, contactez-nous pour en savoir plus sur QUARTER !
Livraison prévue T1 2027.
Services & prestations
Aménagements
-
Auditorium
-
Complexe Salle de réunion
-
Effectif théorique : 2200 personne(s)
Equipements
-
Faux plafond
-
Faux plancher
-
Gestion technique centralisée
-
Monte-charge : 1
Hauteurs
-
Hauteur sous-plafond : 2,68 mètre(s)
Prestations de service
-
Cafétéria
-
Restauration
Extérieurs
-
Terrasses - jardins
Normes, Certifications et Labels
-
Certification : HQE Rénovation
Type / Etat du bâtiment
-
IGH / Code du travail : IGH, IGH
Informations complémentaires
-
Plus de 1.000 parkings + parking vélos, Salle de réunion : 25 % SUBL plateau










