




103 Rue de Grenelle
75007 Paris
874 m²
800 €
HT/HC/m²/an
Disponibilité : Immédiate

Julie FREBOURG
Description
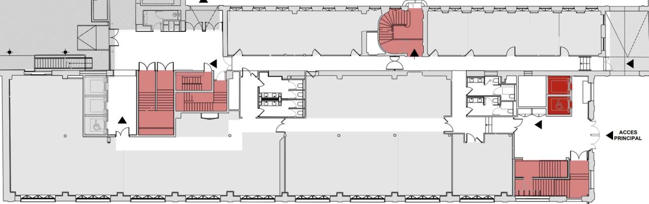
Au cœur du 7ème arrondissement de Paris, entre les Invalides et le Boulevard Raspail, nous vous proposons une très belle surface de bureaux, entièrement rénovée de 874m² au rez-de-chaussée de ce magnifique immeuble emblématique de la Rive Gauche.
Cet immeuble historique restructuré en 2010 propose de nombreux services et prestations, tels que la présence d'une hôtesse d'accueil et d'un PC sécurité, un restaurant inter-entreprise, une cafétéria, un amphithéâtre de 156 places, des salles de réunion mutualisées et une salle de sport entièrement rénovée avec douches et vestiaires. L'immeuble est orienté vers une grande et magnifique cour intérieure. Un parking et un bike-park complète le bien.
Services & prestations
Aménagements
-
Aménagement des bureaux : Cloisonnés/Ouverts
-
Auditorium : 156 Places
-
Complexe Salle de réunion
Equipements
-
Climatisation
-
Faux plancher : Technique
Prestations de service
-
Cafétéria
-
Capacité de restauration : RIE 200 places assises
-
Fitness
-
Parking
-
Sécurité : Contrôle d'accès GTB/GTS
Extérieurs
-
Terrasses - jardins : Vaste cour d'honneur, terrasse
Normes, Certifications et Labels
-
Certification : BREEAM In Use, HQE Rénovation
Type / Etat du bâtiment
-
Etat des locaux : Rénové Surfaces rénovées et flexibles
Informations complémentaires
-
Poste de sécurité










