




36 Rue de Naples
75008 Paris
2 310 m²
920 €
HT/HC/m²/an
Disponibilité : 01/08/2027

Virgile PAGES
Description
Quartier Central des affaires, au cœur du 8ème arrondissement, entre le Boulevard Malesherbes et la rue du Rocher, nous vous proposons à la location ce très bel immeuble Haussmannien de grand standing d’une superficie d'environ 2 310 m² de bureaux avec salles de réunion et archives au sous-sol. Cet immeuble, qui bénéficie de très beaux volumes et d’une cour privative a fait l’objet en 2017 d’une importante rénovation de qualité (installations techniques rénovées, menuiseries extérieures changées et façades ravalées, plateaux décloisonnés, espaces accueil et cour intérieure mise en valeur).
Quartier Central des Affaires
PARIS 8
LOCATION
2310 M² DE BUREAUX A LOUER
Proximité Parc Monceau
Entre le Boulevard Malesherbes et la rue du Rocher
Métro Villiers - ligne 2
Gare Saint Lazare via Métro Villiers ligne 3
Très bel hôtel particulier
Très belle restructuration en 2017
Immeuble indépendant
Très beaux volumes
Parties communes de belle facture
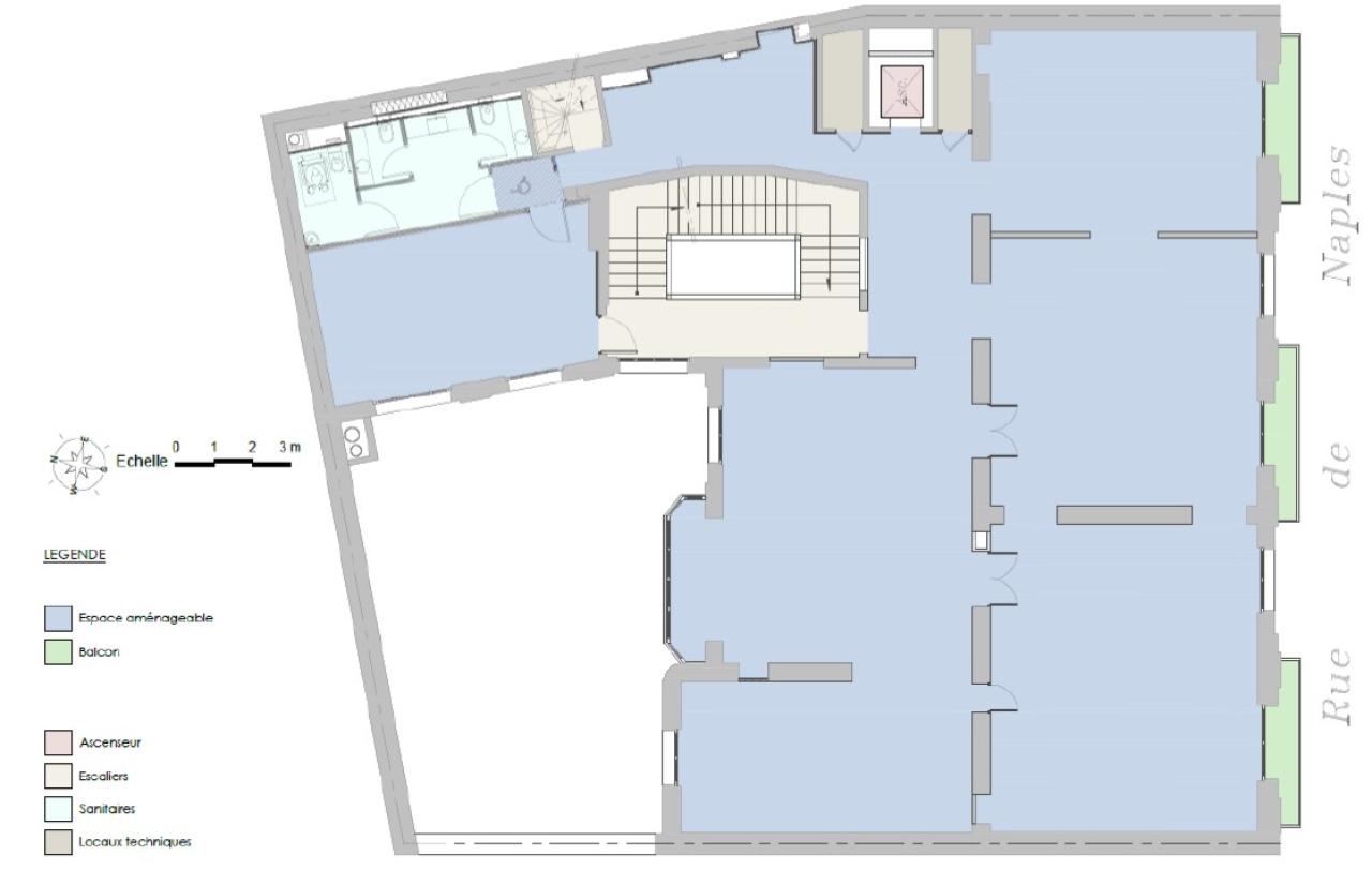
Espaces extérieurs (balcons, cour intérieure, patio)
local mobilité douce au RDC
2 parkings au 47 rue de Naples
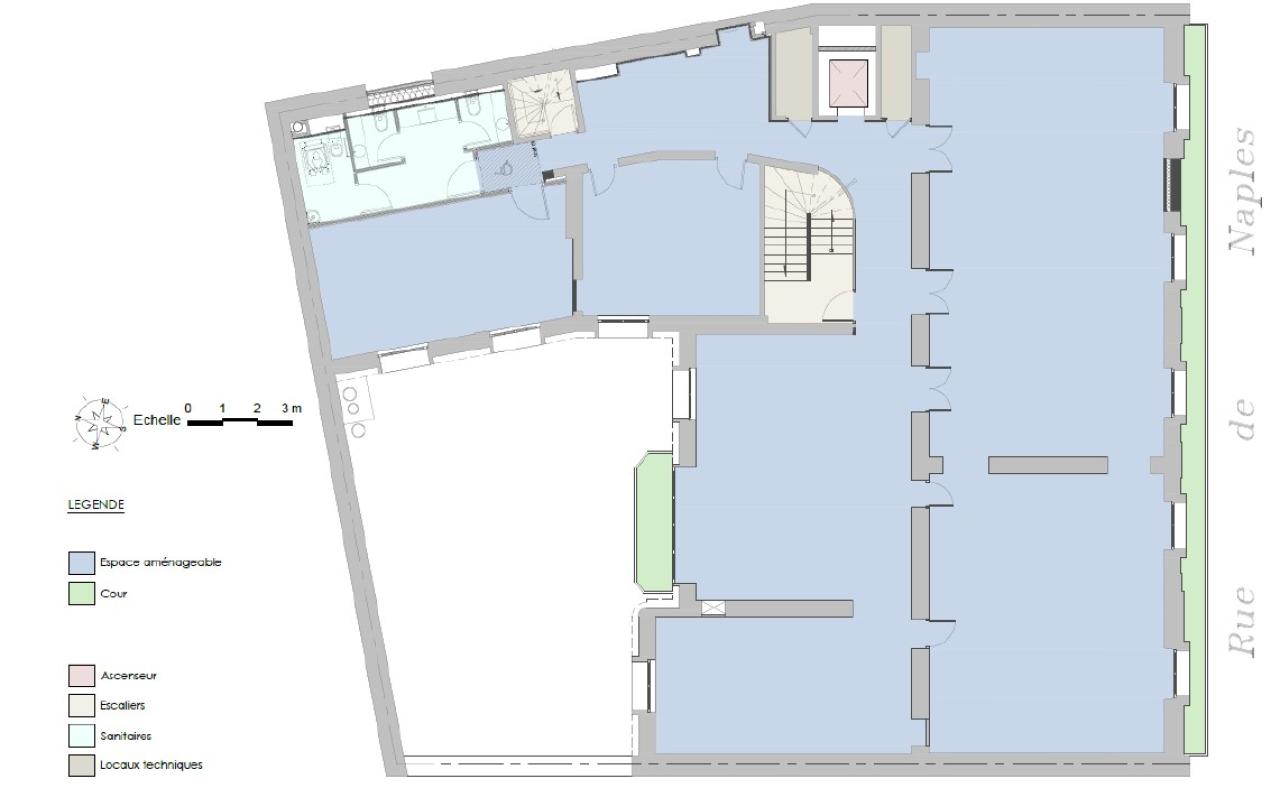
Archives
disponibilité : mi 2026
Services & prestations
Aménagements
-
Accès Pers. Mobilité Réduite
-
Aménagement des bureaux : Cloisonnés/Ouverts
-
Complexe Salle de réunion : Au R-1
-
Effectif théorique : 400 personne(s)
-
Hall d'accueil : Indépendant
Equipements
-
Climatisation : Air rafraîchi
-
Câblage informatique : VDI cat 6 - 2 RJ45 pour 10 m²
-
Distribution climatisation : Ventilo convecteur en plafonnier
-
Faux plafond
-
Fenêtres : Avec stores intérieurs
-
Sol bureaux : Moquette
-
Source chauffage : Gaz
-
Type de chauffage : Individuel
Prestations de service
-
Parking : 2 Places au 47 rue de Naples
-
Restauration : 60 Places au 43/45 Naples
-
Sécurité : Contrôle d'accès
Extérieurs
-
Terrasses - jardins : Cour privative de 87 m²
Normes, Certifications et Labels
-
Certification : BREEAM
Type / Etat du bâtiment
-
Etat de l'immeuble : Seconde main 1860
-
Etat des locaux : Rénové
-
Immeuble indépendant
-
Orientation façade : SUR RUE
-
Type d'immeuble : Hôtel particulier
Informations complémentaires
-
Balcons du R+2 au R+5
-
Magnifique escalier d'honneur en bois










