




25 Rue du Général Foy
75008 Paris
117 m²
Divisible dès 53 m²
192 €
HT/HC/m²/an
Disponibilité : Immédiate

Marc TRAVERSE
Description
À proximité immédiate de la gare Saint Lazare, de la place Saint Augustin et du quartier Villiers, nous vous proposons à la location une surface de bureaux climatisée, située au 2ème étage d’un immeuble haussmannien récemment ravalé.
Les bureaux peuvent être loués en l’état, au loyer de 630€ /m²/ an ou entièrement rénovés par le bailleur pour une livraison prévue au T1 2026 au loyer de 680€ /m²/an.
À proximité immédiate de la gare Saint Lazare, de la place Saint Augustin et du quartier Villiers, nous vous proposons à la location une surface de bureaux climatisée, située au 2ème étage d'un immeuble haussmannien récemment ravalé.
Les bureaux peuvent être loués en l'état, au loyer de 630 /m²/ an ou entièrement rénovés par le bailleur pour une livraison prévue au T1 2026 au loyer de 680 /m²/an.
Services & prestations
Aménagements
-
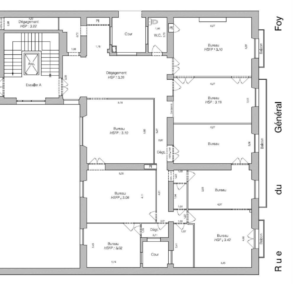
Bureaux cloisonnés : 9 (5 sur cour/4 sur rue)
-
Sanitaires : 3
Equipements
-
Ascenseurs
-
Climatisation
-
Câblage informatique
-
Faux plafond
-
Sol bureaux : Parquet point de hongrie
-
Type de chauffage : Collectif
Hauteurs
-
Hauteur sous-plafond : 3 m
Prestations de service
-
Sécurité : Gardiennage et digicode
Extérieurs
-
Terrasses - jardins : Terrasse et cour intérieure
Type / Etat du bâtiment
-
Etat des locaux : Très bon état
-
Type d'immeuble : Bel immeuble Parisien en pierre de taille
Informations complémentaires
-
Large galerie d'entrée, Parties communes de standing
-
Fibre optique
-
Espace partagé : 2 salles de réunion en libre-service Espace détente Cuisine Réfrigérateur tisanerie, Privatif : 2 grands bureaux (6 et 4 postes)










