




14 RUE DE LA PEPINIERE
75008 Paris
262 m²
à partir de 640 €
HT/HC/m²/an
Disponibilité : Immédiate

Gautier BASCOU
Description
BNP PARIBAS RE vous propose une surface de bureaux à 2 min de la gare Saint Lazare
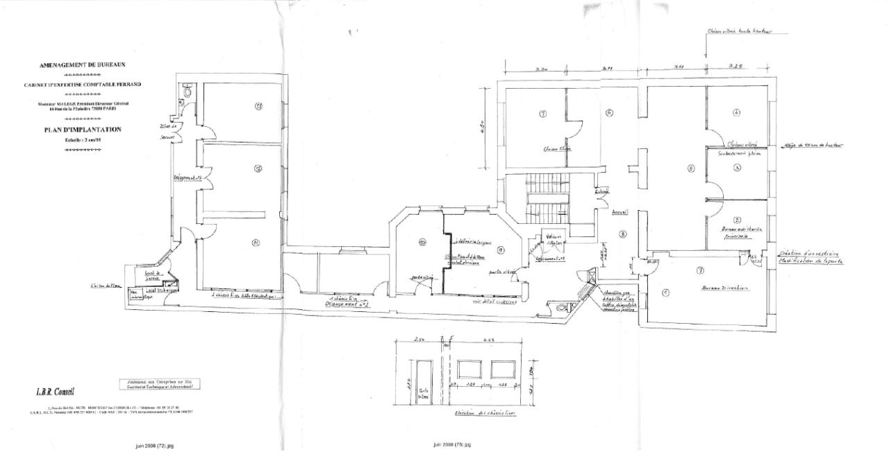
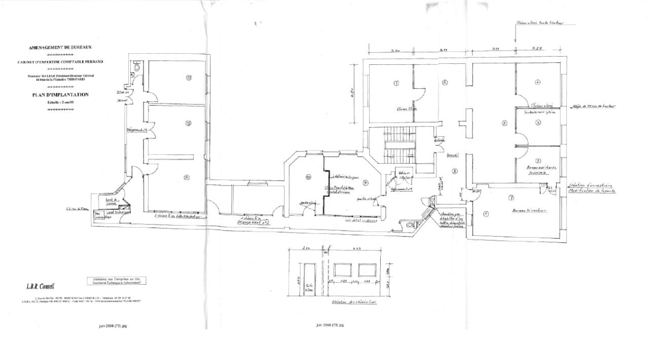
Dans un bel immeuble haussmannien de bon standing situé à proximité de la Gare de Saint-Lazare, nous vous proposons, à la location ,une superficie de bureaux d’environ 262 m² environ située au 3ème étage. Les locaux sont climatisés et composés de 7 bureaux facilement décloisonnable. La surface présente une belle hauteur sous plafond et une belle luminosité.
Nous vous proposons une surface de bureaux en exclusivité de 262 m² située au 3ème étage d'un bel immeuble haussmannien. avec une double entrée. Les locaux sont climatisés et composés de 7 bureaux facilement décloisonnables. La surface présente une belle hauteur sous plafond et une belle luminosité dans toute la surface.
Services & prestations
Equipements
-
Climatisation : Neuve
-
Type de chauffage : Individuel par chaudière - neuve
Prestations de service
-
Parking : A proximité
Extérieurs
-
Linéaire de façade : 10,00 mètre(s)
Type / Etat du bâtiment
-
Etat de l'immeuble : Etat d'usage du XVème siècle
-
Etat des locaux : Rénové
Informations complémentaires
-
10 postes de travail
-
Une cuisine
-
Belle hauteur sous plafond, Climatisation double flux










