




18-20 Avenue Hoche
75008 Paris
2 782 m²
1 250 €
HT/HC/m²/an
Disponibilité : 31/03/2027

Gregory ASSARAF
Description
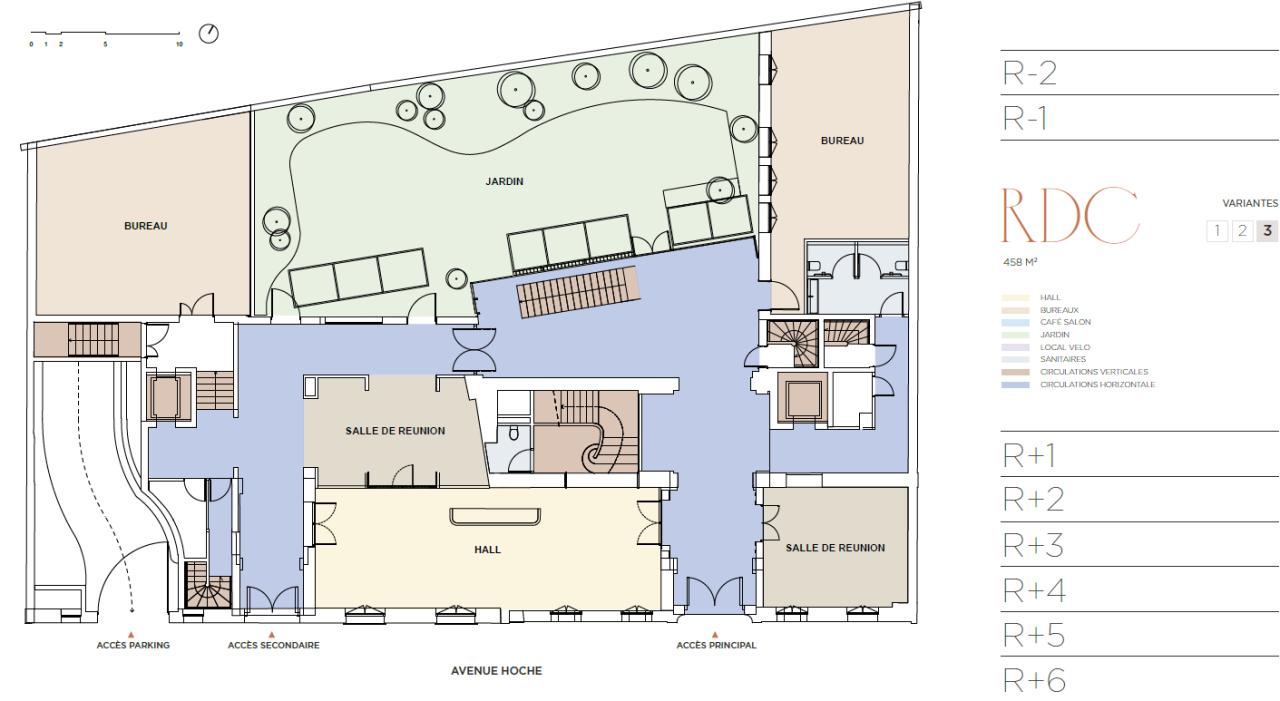
A proximité immédiate de la Place de l’Etoile et du Parc Monceau, nous vous proposons à la location un magnifique hôtel particulier disposant de 2 782 m² de bureaux. Bureaux lumineux, salle de réception prestigieuse au 1er étage, cour privative, terrasses et balcons. L'ensemble fera l'objet d'une nouvelle rénovation pour une livraison prévisionnelle au T1 2027.
QUARTIER CENTRAL DES AFFAIRES
LOCATION DE BUREAUX PARIS ETOILE
IMMEUBLE INDEPENDANT
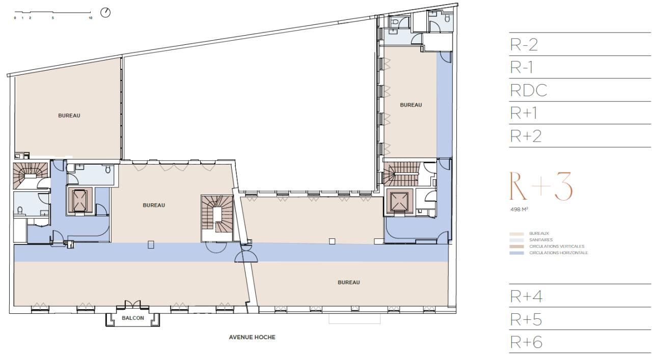
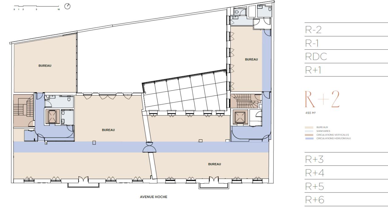
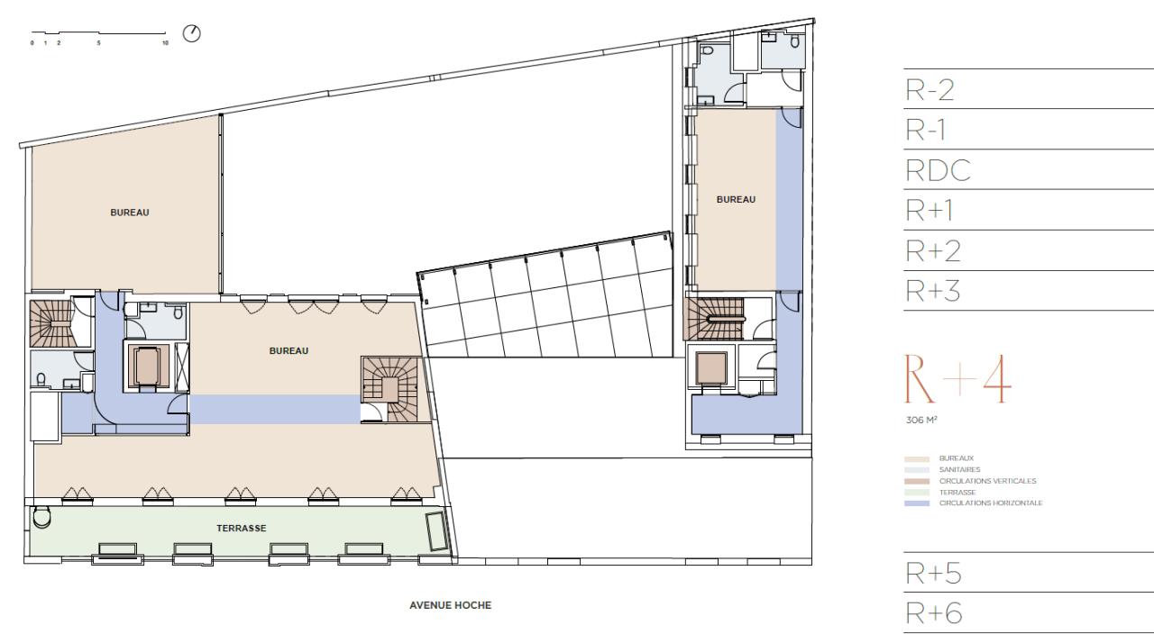
2 782 m2 SURFACE DE BUREAUX
environ 500 m2 SURFACE DES PLATEAUX
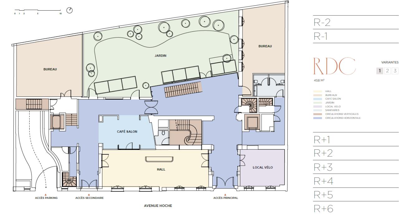
4 ESPACES EXTÉRIEURS
123 m2 SURFACE VÉGÉTALISÉE
80 m2 SURFACE DU ROOFTOP
320 personnes CAPACITAIRE
19 PLACES DE PARKING
16 EMPLACEMENTS POUR VÉLOS
Livraison rénové : au T1 2027
Services & prestations
Aménagements
-
Accueil : Hôtesses
-
Accès Pers. Mobilité Réduite
-
Complexe Salle de réunion
-
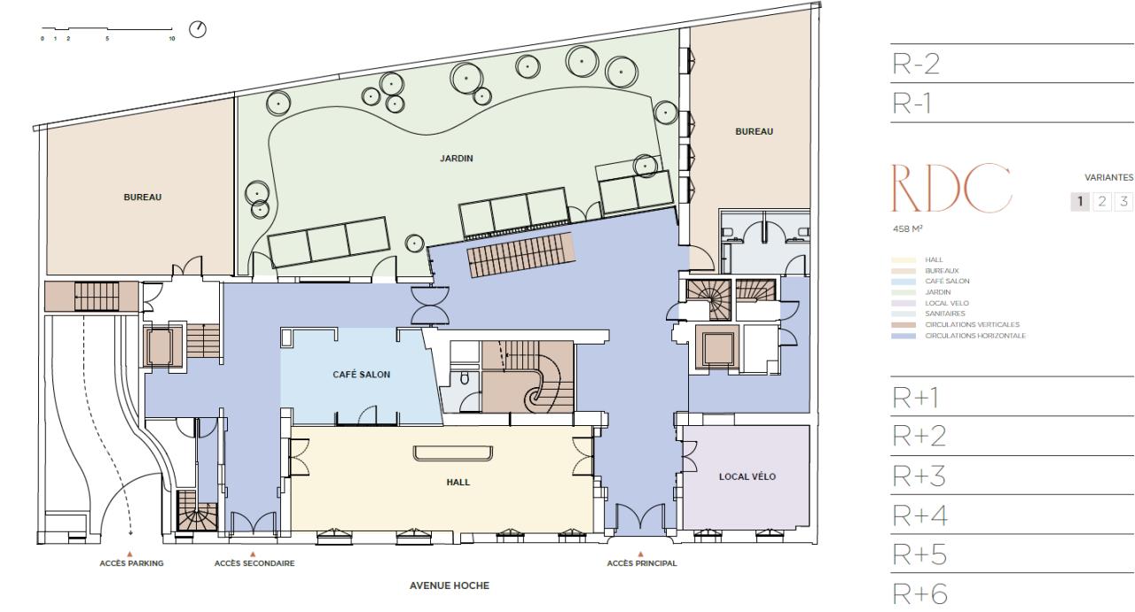
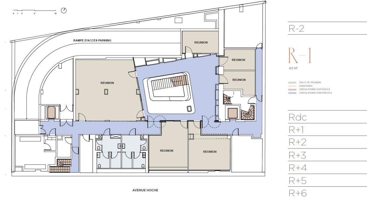
Effectif théorique : 499 personne(s) dont 290 pers. en ERP aux RDC et R-1
Equipements
-
Ascenseurs : 3
-
Climatisation : Air rafraîchi
-
Faux plafond
-
Faux plancher
Hauteurs
-
Hauteur sous-plafond : 2,60 mètre(s) entre 2,63 et 3,10 m
Prestations de service
-
Cafétéria
-
Parking : 22 Places
-
Sécurité : Contrôle d'accès
Extérieurs
-
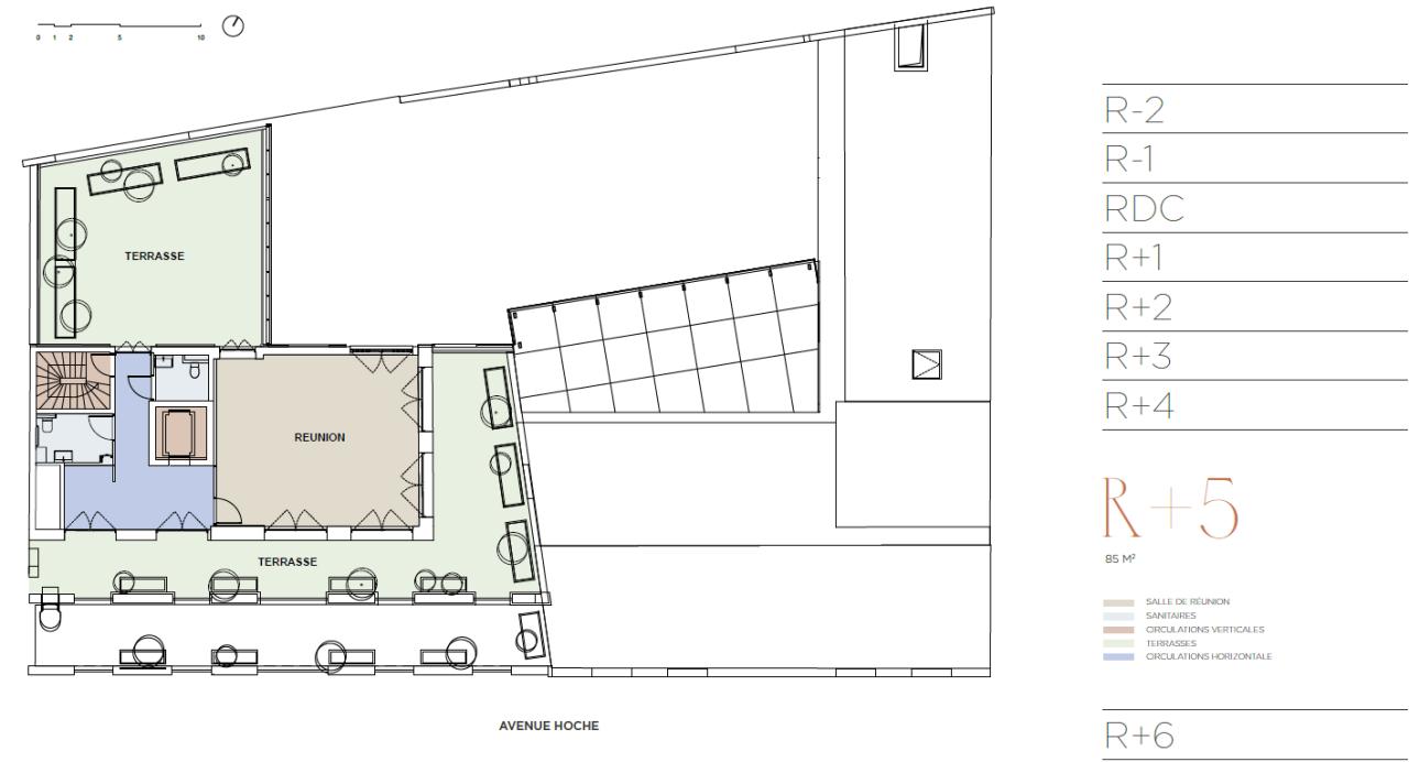
Terrasses - jardins : Cour privative végétalisée+terrasses aux 4 et 5e étages
Normes, Certifications et Labels
-
Catégorie ERP : 3 activité de type L et W
-
Label actuel : Breeam
Type / Etat du bâtiment
-
Etat de l'immeuble : Récent
-
IGH / Code du travail : Code du travail
-
Immeuble indépendant
-
Orientation façade : SUR RUE
-
Type d'immeuble : Hôtel particulier Haussmannien
Informations complémentaires
-
Entrée principale 20Hoche, secondaire au 20 bis, Parties communes de qualité
-
Cour privative végétalisée de 248 m²
-
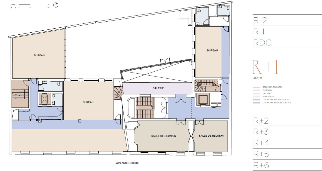
Salles historiques avec parquet et moulures au 1er étage










