




PARIS JOUBERT
22 Rue Joubert
75009 Paris
3 216 m²
Divisible dès 170 m²
à partir de 620 €
HT/HC/m²/an
Disponibilité : Immédiate

camille rousseau-busson
Description
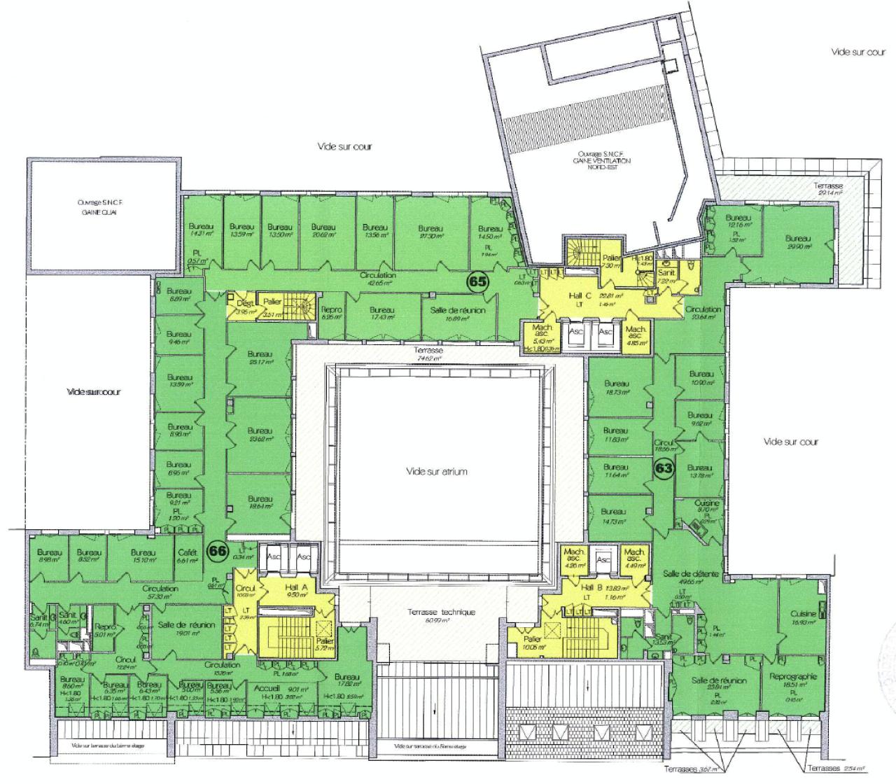
Quartier Central des Affaires, au cœur du 9ème arrondissement, entre Opéra et Saint Lazare, nous vous proposons à la location deux grands plateaux de bureaux situés aux 5ème et 6ème étages (en état d'usage) ainsi que 2 lots de bureaux rénovés situés au rez-de-chaussée.
L’accès à l’immeuble se fait en rez-de-chaussée depuis la rue Joubert vers un grand hall d’accueil sous atrium.
Quartier Central des Affaires
au coeur du 9ème arrondissement
entre Opéra et Saint Lazare,
GRANDS PLATEAUX
LOCATION DE BUREAUX RENOVES
3216 m² DIVISIBLES
DISPONIBILITE : I
Services & prestations
Aménagements
-
Accueil : Hôtesses 8h/20h 7j/7
-
Accès Pers. Mobilité Réduite
-
Effectif théorique
Equipements
-
Ascenseurs : Double batterie d'ascenseurs
-
Climatisation : Double flux
Prestations de service
-
Parking : Possibilité de parking
-
Sécurité : Contrôle d'accès + gardiennage
Type / Etat du bâtiment
-
Etat de l'immeuble : Rénové
-
Etat des locaux : Rénové
-
Type d'immeuble : Plateau Sup 1000m
Informations complémentaires
-
Atrium, Fibre optique, Jardin mutualisé, Racks à vélo dans le parking
-
Plateau lumineux avec triple exposition










