




Location Bureau 408 m²
75009 Paris
408 m²
400 €
HT/HC/m²/an
Disponibilité : Immédiate

Nicolas MOURAUD
Description
Dans un bel immeuble moderne situé à proximité de la Place Saint Georges, BNPPRE vous propose à la location des surfaces de bureaux fonctionnels.
Bail dérogatoire de 12/18 ou 24 mois.
Prestations immeuble :
Places de stationnement disponibles dans l'immeuble
Gardien sur site
Accès sécurisé (Vigik/Interphone)
Vidéosurveillance
Prestations bureaux :
Surfaces flexibles et lumineuses
Faux plancher technique
Moquette/parquet flottant
Chauffage électrique
Double vitrage
Cuisine
Sanitaires
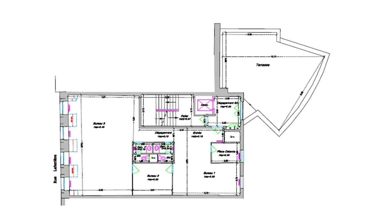
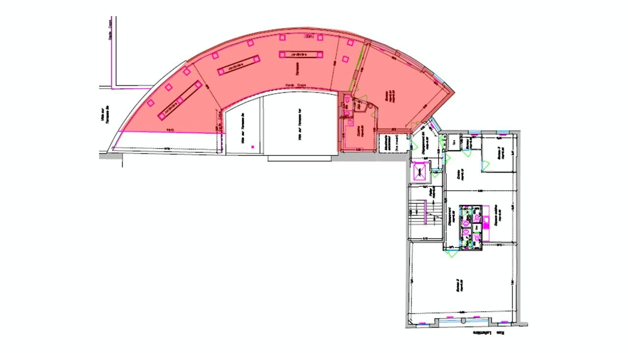
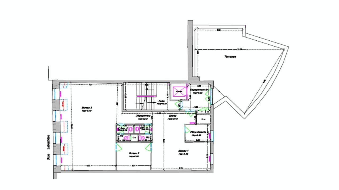
Terrasse privative de 150m², au R+4
Services & prestations
Aménagements
-
Salle informatique : Baie de brassage sur chaque lot
-
Sanitaires
Equipements
-
Ascenseurs : 2
-
Climatisation : Simple flux froid R+1 partiellement climatisé / R+2 salle informatique climatisée
-
Faux plancher
-
Fenêtres : Double vitrage
-
Sol bureaux : Moquette/Parquet
-
Source chauffage : Electrique
Prestations de service
-
Parking : Nombreuse places de parkings dans l'immeuble
-
Sécurité : Contrôle d'accès Vigik/Interphone, Gardiennage, Vidéo-surveillance
Informations complémentaires
-
Terrasse privative de 150m² au R+4
-
Cuisine existante au R+4, R+1 et RDC
-
Palier privatif au R+6 et R+1, Vues dégagées au R+6










