




10 Rue Chaptal
75009 Paris
698 m²
Divisible dès 210 m²
à partir de 684 €
HT/HC/m²/an
Disponibilité : 1 mois après accord

Alexis UNOULE
Description
BNPRE vous propose des surfaces de bureaux dans un très bel immeuble de standing.
A deux pas de la Place St Georges, BNPRE vous propose à la location 698,2 m² de bureaux divisibles à partir de 210 m², disponibles immédiatement :
- 277 m² au RDC avec une très belle hauteur sous plafond (5m) et une vitrine sur rue
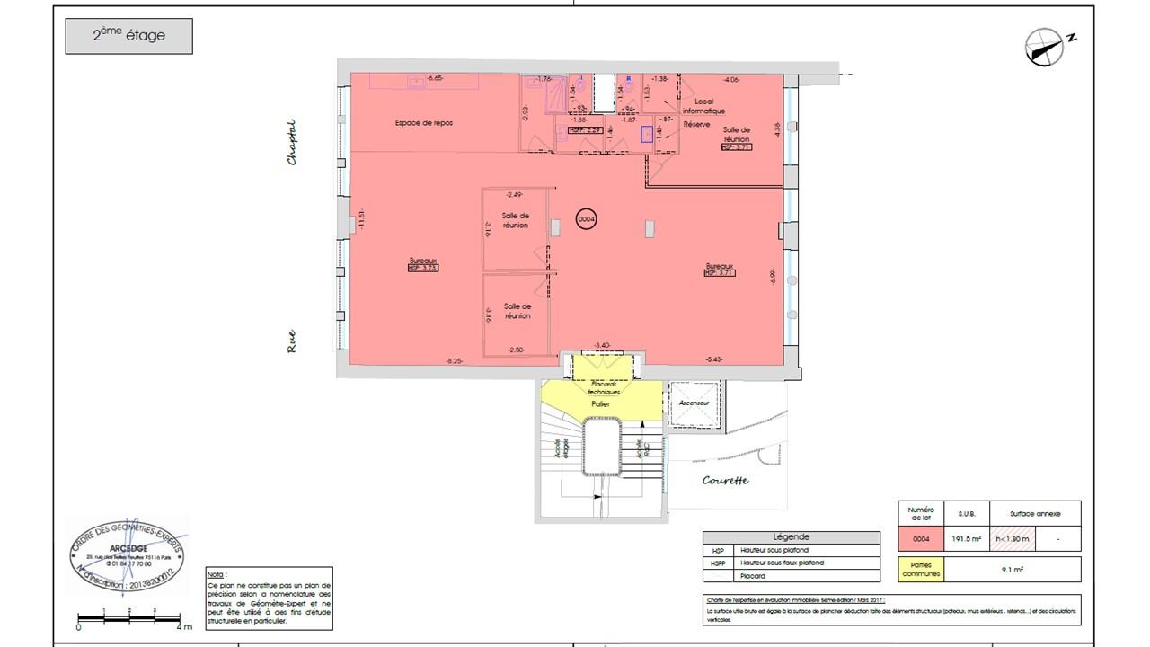
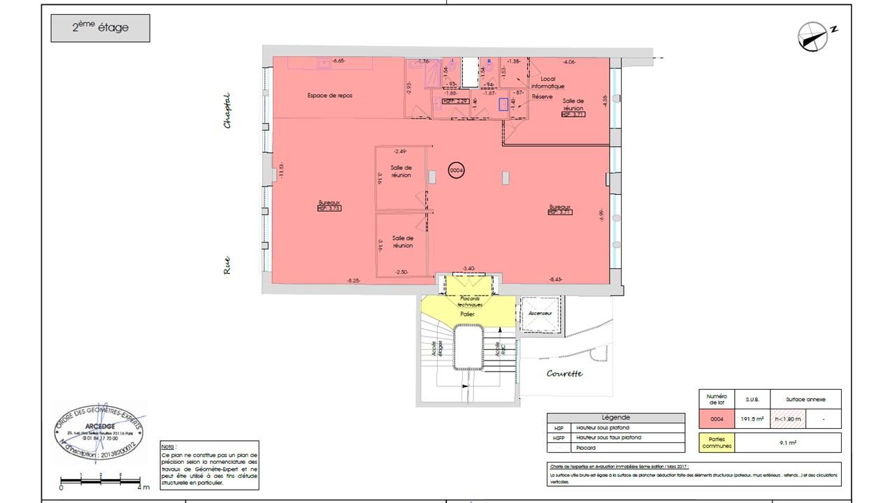
- 210 m² au 2ème
- 211 au 3ème étage
Les surfaces sont modernes, climatisées et avec un plan offrant une réelle flexibilité d'aménagement.
Très bon rapport qualité prix !
Style industriel, à visiter sans tarder !
Services & prestations
Aménagements
-
Aménagement des bureaux : Espaces Ouverts Type industriel
Equipements
-
Climatisation
-
Sol bureaux : Sol stratifié
Hauteurs
-
Hauteur sous-plafond : 5,00 mètre(s) Très belle hauteur sous plafond au RDC
Type / Etat du bâtiment
-
Etat de l'immeuble : Rénové
-
Orientation façade : SUR RUE
Informations complémentaires
-
Mix espaces cloisonnés et bureaux fermés
-
Très lumineux
-
Grande flexibilité d'aménagement










