




1 Rue Jules Lefebvre
75009 Paris
3 128 m²
950 €
HT/HC/m²/an
Disponibilité : 01/06/2026

Gregory ASSARAF
Description
Au cœur du 9ème arrondissement, à l’angle de la rue de Clichy, à proximité de la place Trinité d’Estienne d’Orves, nous vous proposons à la location ce bel immeuble haussmannien à usage de bureaux d’une superficie totale de 3 128 m² répartis du rez-de-chaussée au 7ème étage.
L’ensemble fera l’objet d’une restructuration pour une livraison prévisionnelle en Juin 2026
- Paris 9ème
- Entre la Place de Clichy et la Place d'Estienne d'Orves
- Bel immeuble haussmannien d'angle
- Bureaux livrés restructurés
- Rez de chaussée et 7 étages
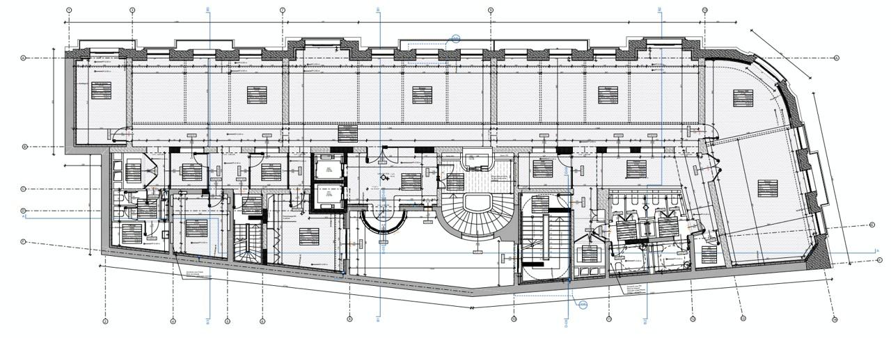
- Etage courant : environ 450 m²
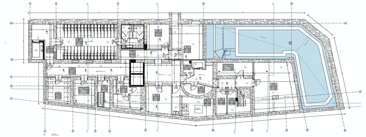
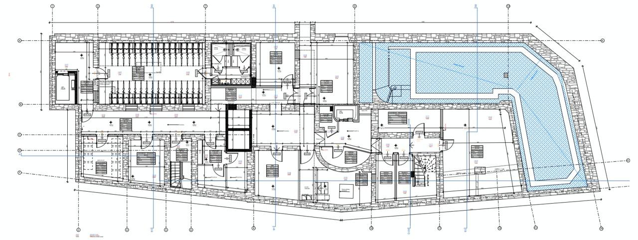
- Sous sol à usage d'archives et salles de réunions
- Vue exceptionnelle depuis la terrasse du R+77
- Accès PMR
- Contrôle d’accès sécurisé
- 2 ascenseurs (630 kg)
- Monte-charge (1000 kg)
- Climatisation réversible (CPCU, Fraîcheur de Paris)
- Faux plancher (10 cm) à l’exception du RDC et R+7
- Gestion technique du bâtiment
- Plafonniers de type LED suspendus ou en faux-plafond dans les espaces de bureaux et les salles de réunion
- Certification BREEAM RFO 2015 : niveau Excellent
- Certification WELL Core V2 : niveau Bronze (optimisé Silver)
- Certification Wiredscore : niveau Silver
- Label BBCA rénovation: niveau standard à minima
- Espace cafétéria double hauteur au rez-de-chaussée
- Salles de réunions
- Local vélos au R-1
- Douches et vestiaires
- Terrasses au R+5 et R+7
Services & prestations
Aménagements
-
Accueil
-
Accès Pers. Mobilité Réduite
-
Aménagement des bureaux : Cloisonnés/Ouverts
-
Effectif théorique
-
Hall d'accueil : Indépendant
Equipements
-
Ascenseurs : 2
-
Climatisation : Réversible
-
Distribution climatisation : Ventilo convecteur en plafonnier
-
Douche : Et vestiaires
-
Faux plancher : 10,00 cm
-
Gestion technique centralisée
-
Production climatisation : Réseau urbain Fraicheur de Paris
-
Type de chauffage : Urbain CPCU
Hauteurs
-
Hauteur sous-plafond : 2,60 mètre(s)
Prestations de service
-
Cafétéria : Espace cafétéria au RDC
-
Parking
-
Sécurité : Contrôle d'accès
Extérieurs
-
Terrasses - jardins : Cour intérieure de 60 m² environ
Normes, Certifications et Labels
-
Certification : BREEAM
Type / Etat du bâtiment
-
Etat de l'immeuble : Restructuré avec PC
-
Etat des locaux : Restructuré avec PC
-
Immeuble indépendant
Informations complémentaires
-
Local vélos au R-1










