




7 Rue de Liège
75009 Paris
1 940 m²
Loyer sur demande
Disponibilité : 01/09/2026

Camille ROUSSEAU-BUSSON
Description
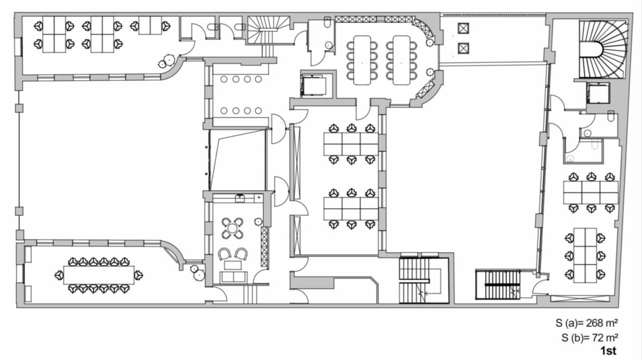
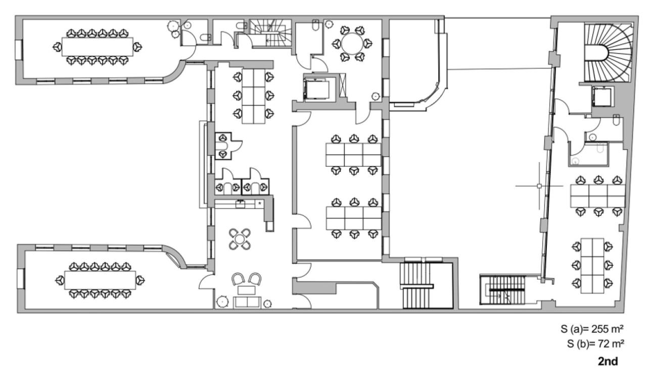
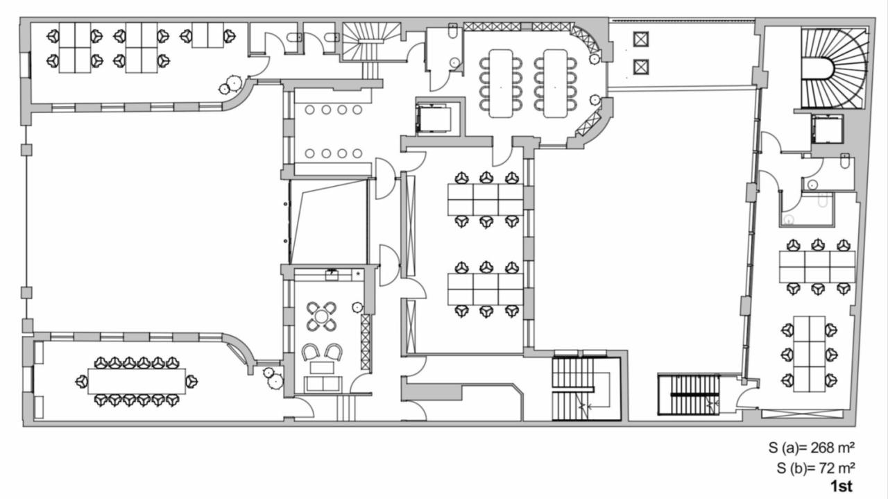
Au cœur du 9ème arrondissement - A proximité de la Gare Saint Lazare - Très bel hôtel particulier d'une superficie d'environ 1 940 m² offrant des prestations de qualité et deux espaces extérieurs. Le bâtiment bénéficie d’un excellent capacitaire, ERP 3 envisageable. L’ensemble du bâtiment fait l’objet d’une rénovation lourde comprenant les fenêtres et éléments techniques.
QUARTIER CENTRAL DES AFFAIRES
PARIS 9
LOCATION DE BUREAUX
IMMEUBLE INDEPENDANT
LIVRE RENOVE EN SEPTEMBRE 2026
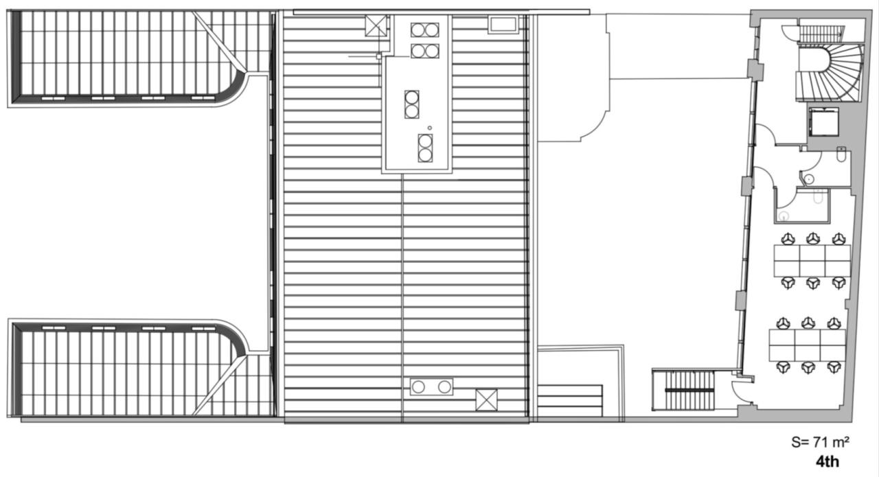
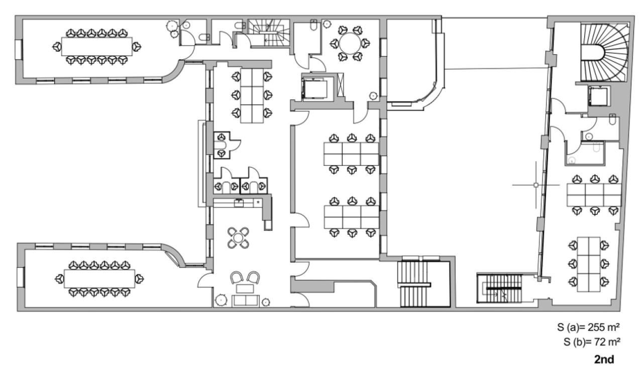
ENVIRON 1940 m² DE BUREAUX
Services & prestations
Aménagements
-
Accès Pers. Mobilité Réduite
-
Aménagement des bureaux : Cloisonnés/Ouverts
-
Effectif théorique : 188 personne(s)
-
Hall d'accueil : Indépendant
Equipements
-
Ascenseurs
-
Climatisation
-
Faux plafond
-
Sol bureaux : Moquette
Prestations de service
-
Parking : Dans la cour
Extérieurs
-
Terrasses - jardins : Cour pavée et jardin d'intérieur
Normes, Certifications et Labels
-
Catégorie ERP : 4 de type R avec activité de type N
Type / Etat du bâtiment
-
Etat de l'immeuble : Rénové
-
Etat des locaux : Rénové










