




51 BOULEVARD DE STRASBOURG
75010 Paris
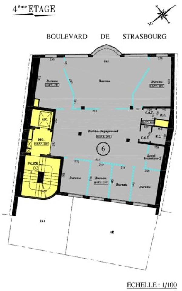
162 m²
1 600 000 €
HT/HD
Disponibilité : Nous consulter

Benjamin HECTOR
Description
A proximité du métro Château d'eau, BNP Paribas Real Estate vous propose d'acquérir des locaux d'une surface totale de 162 m² dans le 10ème arrondissement de Paris.
Les locaux se situent au 4ème étage d'un immeuble de bon standing de 1985.
Ces locaux, climatisés, sont composés d'espaces ouverts et de bureaux avec cloisonnement vitré amovible, d'une salle de réunion et de sanitaires. Ils offrent un plan efficace facilement modulable.
De plus, l'actif bénéficie de deux parkings en sous-sol en sus du prix : 20 000 /unité net vendeur.
Il dispose d'une bonne accessibilité à seulement 5 minutes à pied du métro Strasbourg Saint-Denis, à 6 minutes à pied de la Gare de l'Est et à 16 minutes en voiture de la Porte de Clignancourt.
N'hésitez plus et venez découvrir ce bien.
Services & prestations
Aménagements
-
Aménagement des bureaux : Cloisonnés/Ouverts Cloisonnement vitré amovible
-
Complexe Salle de réunion
-
Sanitaires
Equipements
-
Climatisation
-
Câblage informatique : Pré-câblage informatique
-
Eclairage Bureaux : Luminaires encastrés
-
Faux plafond : Dal. fibres minéral.
-
Sol bureaux : Moquette
Type / Etat du bâtiment
-
Etat de l'immeuble : Seconde main
-
Immeuble copropriété
Informations complémentaires
-
Digicode
-
Accès sécurisé par alarme










