




Location Bureau 1 582 m²
75010 Paris
1 582 m²
778 €
HT/HC/m²/an
Disponibilité : Immédiate

Raphael PICART
Description
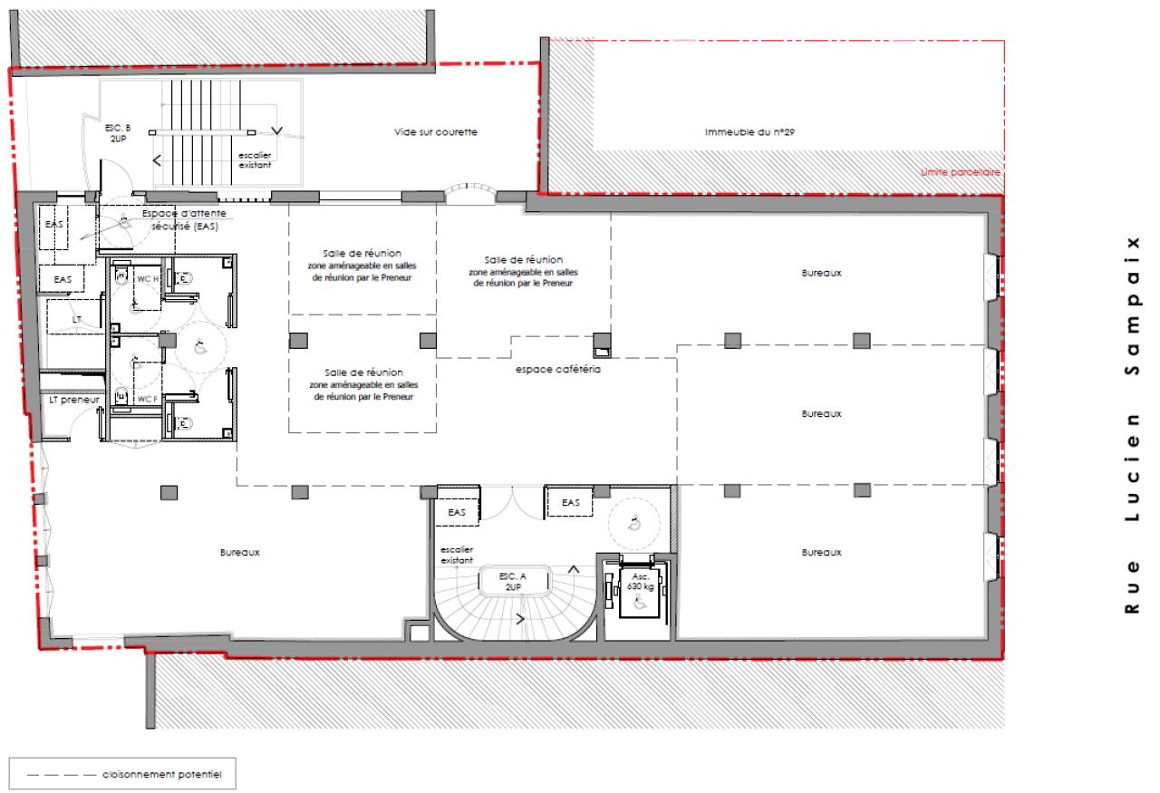
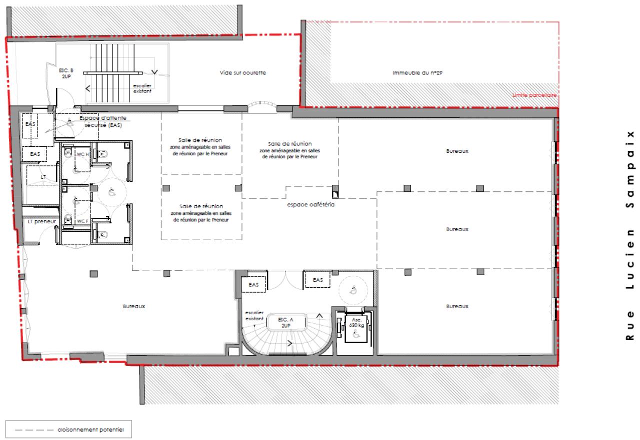
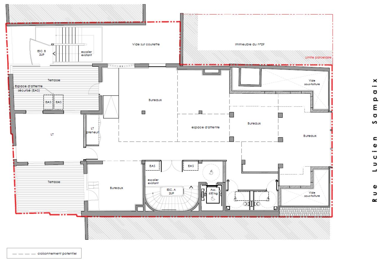
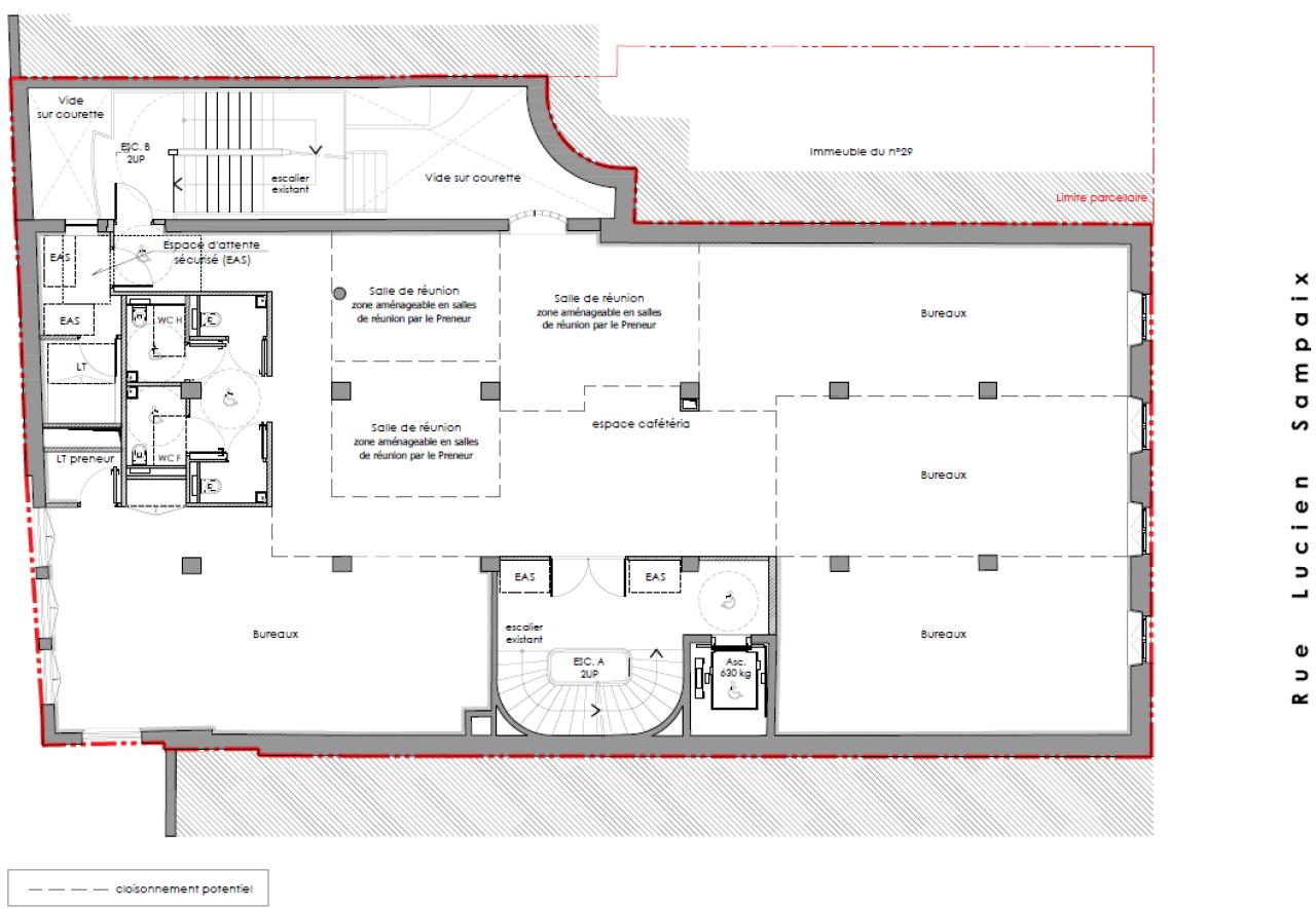
Immeuble de bureaux indépendant et restructuré
Situé à proximité immédiate de la place de la République, dans un quartier dynamique et connecté, nous vous proposons à la location un très bel immeuble restructuré et indépendant qui dispose d’un rooftop.
BNP Paribas Real Estate vous présente une opportunité unique de louer un bâtiment autonome de bureaux, idéalement situé dans le 10ème arrondissement. Ce bâtiment se trouve au pied des lignes de métro 4 et 5, et bénéficie d'une proximité immédiate avec les lignes 3, 8, 9, 11 du métro, ainsi qu'avec les RER B, D et E.
Cet immeuble, récemment restructuré sur quatre étages, offre tous les avantages recherchés sur le marché. Il se distingue par une capacité d'accueil exceptionnelle, une classification ERP3, des terrasses accessibles, une cour privative et un accès direct sur rue.
Les espaces de travail sont actuellement aménagés en open space, mais peuvent être cloisonnés selon vos besoins. Ils bénéficient de prestations techniques de haute qualité. Un espace poylvalent type amphiteatre, salle de conférence ou auditorium peut etre aménagé au rez de chaussée.
L'immeuble est certifié Breeam in Use, gage de son engagement en faveur de l'environnement et de la performance énergétique.
Cette offre remarquable est à saisir dès maintenant. Elle est particulièrement adaptée aux sociétés désireuses de s'implanter dans un immeuble indépendant, au cœur d'un quartier très prisé des entreprises et start-ips de la tech.
Services & prestations
Equipements
-
Ascenseurs : 1
-
Type de chauffage : Individuel
Extérieurs
-
Terrasses - jardins : Terrasse au R+4
Type / Etat du bâtiment
-
Etat de l'immeuble : Etat d'usage
-
Etat des locaux : Restructuré avec PC
-
Immeuble indépendant : Développé en R+4
Informations complémentaires
-
4 accès sur rue










