




Vente Bureau 207 m²
75003 Paris
207 m²
Prix sur demande
Disponibilité : Nous consulter

Benjamin HECTOR
Description
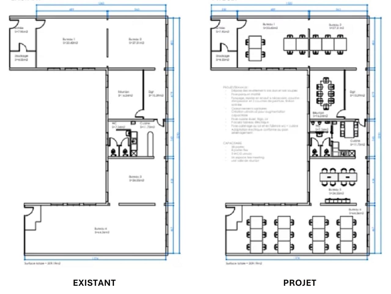
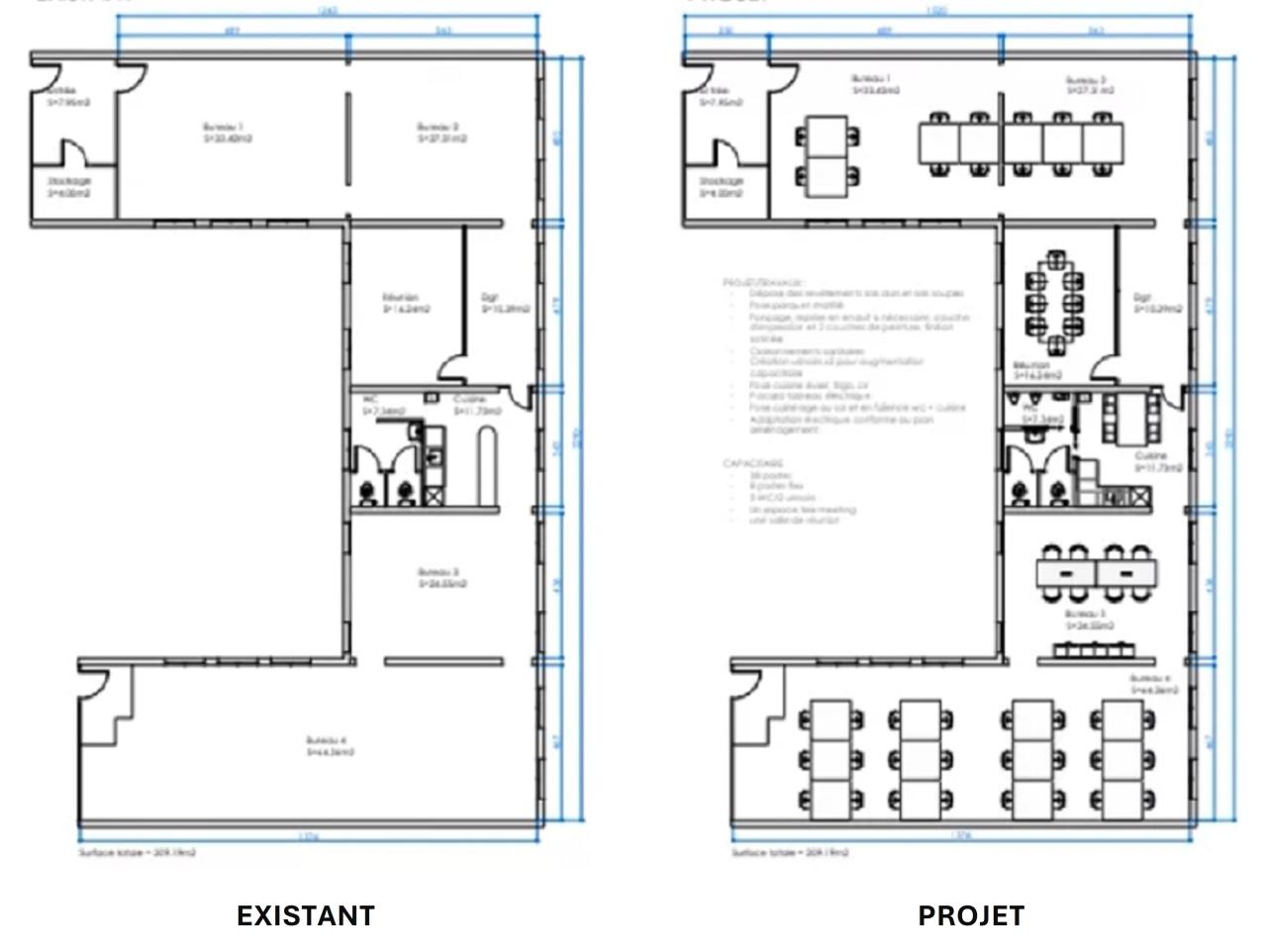
A proximité du métro République, nous vous proposons d'acquérir une surface située au 1er étage d'un ensemble avec double accès.
BNP Paribas Real Estate vous propose d'acquérir des locaux d'une surface d'environ 207 m² dans le 3ème arrondissement de Paris.
Les locaux se situent au 1er étage d'un immeuble de 1770, ils bénéficient d'une double entrée via le 29, boulevard Saint-Martin.
Vous y retrouverez un plan efficace offrant un bon capacitaire avec des espaces ouverts et cloisonnés, une salle de réunion, une cuisine et des sanitaires.
De plus, les locaux sont traversants, ils bénéficient d'une belle luminosité naturelle.
L'actif dispose d'une bonne accessibilité à seulement 6 minutes à pied des métros République et Strasbourg Saint-Denis et à deux stations de métro de la Gare de l'Est.
N'hésitez plus et venez découvrir ce bien.
Services & prestations
Aménagements
-
Aménagement des bureaux : Cloisonnés/Ouverts
-
Complexe Salle de réunion
-
Sanitaires
Equipements
-
Câblage informatique
-
Eclairage Bureaux : Luminaires encastrés
-
Faux plafond : Dal. fibres minéral.
Prestations de service
-
Cafétéria : Cuisine
-
Sécurité
Type / Etat du bâtiment
-
Etat de l'immeuble : Seconde main
-
Immeuble copropriété










