




6 Rue Serret
75015 Paris
103 m²
Divisible dès 38 m²
840 000 €
HT/HD
Disponibilité : Nous consulter

Benjamin HECTOR
Description
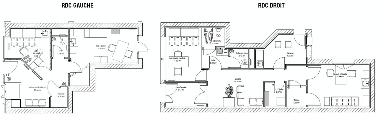
A proximité du métro Boucicaut, nous vous proposons d'acquérir une surface divisible avec accès P.M.R.
BNP Paribas Real Estate vous propose d'acquérir des locaux d'une surface divisible de 102,76 m² dans le 15ème arrondissement de Paris.
Les locaux se situent au rez-de-chaussée d'un immeuble ancien.
La surface est organisée en bureaux individuels avec espace d'attente et points d'eau.
De plus, l'actif bénéficie d'un accès P.M.R. et de deux caves en sous-sol.
Il dispose d'une bonne accessibilité à seulement 1 minute à pied du métro Boucicaut, à 10 minutes à pied du métro Convention et à 10 minutes en voiture de la Porte de Versailles.
N'hésitez plus et venez découvrir ce bien.
Services & prestations
Aménagements
-
Accueil : Espace d'attente
-
Accès Pers. Mobilité Réduite : Oui, Oui
-
Aménagement des bureaux : Cloisonnés
-
Sanitaires : Point d'eau
Equipements
-
Eclairage Bureaux : Luminaires encastrés
-
Faux plafond : Dal. fibres minéral.
-
Sol bureaux : Moquette
-
Source chauffage : Electrique, Electrique
-
Type de chauffage : Individuel
Prestations de service
-
Cafétéria : Cuisine
-
Sécurité
Type / Etat du bâtiment
-
Etat de l'immeuble : Seconde main
-
Immeuble copropriété










