




72 Rue des Grands Champs
75020 Paris
71 m²
640 000 €
HT/HD
Disponibilité : Nous consulter

Gauthier BOMPAIRE
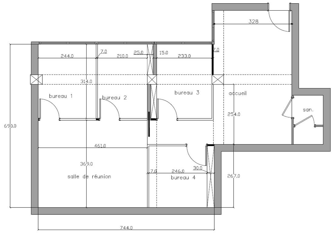
Description
A proximité du métro Buzenval, nous vous proposons d'acquérir une surface avec accès P.M.R. dans un ensemble mixte de bon standing.
Les locaux offre un plan efficace avec un espace d'attente, plusieurs bureaux, une salle de réunion et un coin cuisine.
Un emplacement de parking en sous-sol complète l'actif.
BNP Real Estate vous propose d’acquérir une surface totale d’environ 71 m² dans le 20ème arrondissement de Paris.
La surface se situe au rez-de-chaussée dans un environnement calme sur cour avec un accès PMR.
L’actif bénéficie de bureaux cloisonnés / salle de réunion, un sanitaire privatif, un câblage informatique et la fibre optique, du parquet, un faux-plafond avec luminaires suspendus et spots, une climatisation réversible, un chauffage collectif ainsi qu’une alarme, un interphone et un digicode.
De plus, un emplacement de parking en sous-sol complète le bien.
Idéalement situé à 4 minutes à pied du métro Buzenval, à 8 minutes à pied de Nation et à 8 minutes à pied de la Porte de Vincennes.
N’attendez plus et venez le découvrir.
Services & prestations
Aménagements
-
Accueil : Espace d'attente
-
Accès Pers. Mobilité Réduite
-
Aménagement des bureaux : Cloisonnés
-
Complexe Salle de réunion
-
Sanitaires
Equipements
-
Climatisation : Réversible
-
Câblage informatique : Fibre optique
-
Eclairage Bureaux : Luminaires encastrés & spots
-
Faux plafond
-
Sol bureaux : Parquet
-
Type de chauffage : Collectif
Prestations de service
-
Cafétéria : Coin cuisine
-
Sécurité : Contrôle d'accès Alarme, interphone et digicode
Type / Etat du bâtiment
-
Etat de l'immeuble : Seconde main
-
Immeuble copropriété










