




Vente Bureau 1 005 m²
75008 Paris
1 005 m²
Prix sur demande
Disponibilité : Nous consulter

Jesse CASSUTO
Description
A proximité de la place de l'Etoile, nous vous proposons d'acquérir un très bel Hôtel particulier du 19ème siècle entièrement restructuré avec PC purgé.
Très beaux volumes lumineux et élégants offrant des espaces de travail agréables.
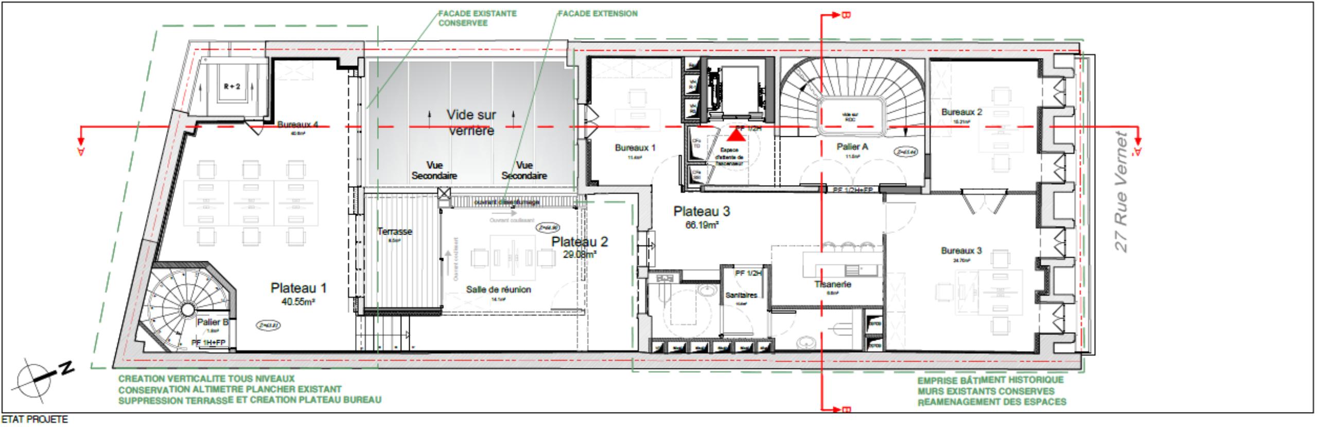
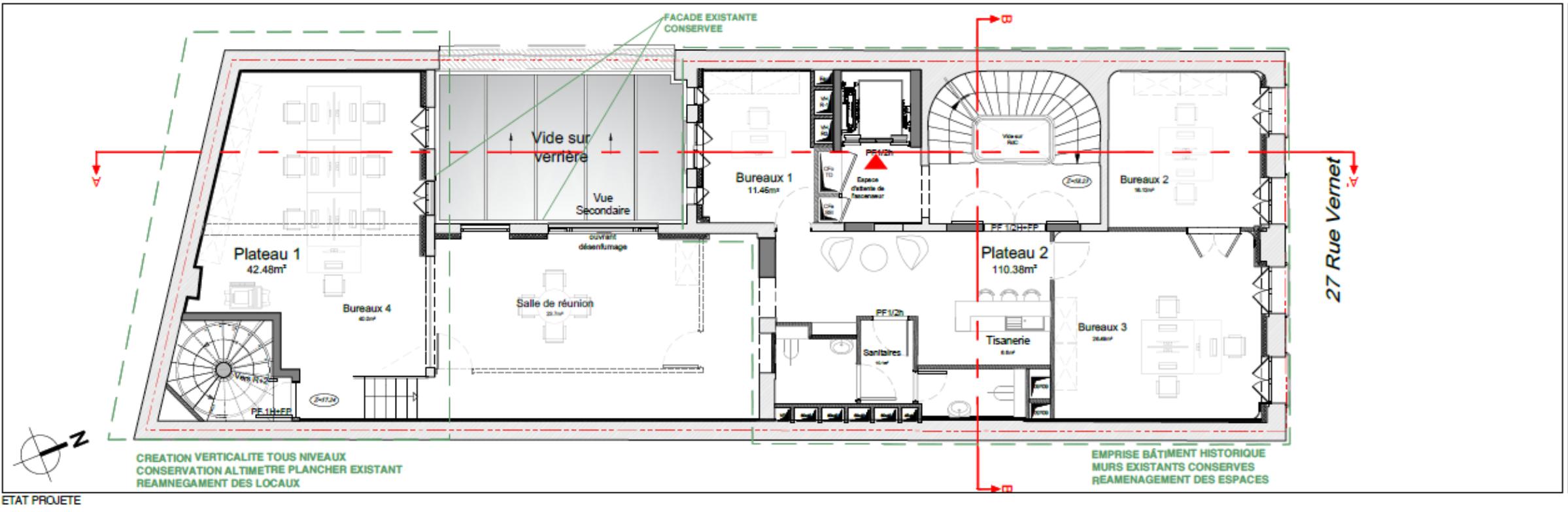
Hall d'accueil, espaces ouverts et cloisonnés, salles de réunion, ascenseur, terrasses.
BNP Paribas Real Estate vous propose d'acquérir un très bel hôtel particulier d'une surface de plancher totale d'environ 1 005 m² dans le 8ème arrondissement de Paris.
L'actif sera livré restructuré avec PC purgé au T1 2026. Les travaux comprennent le gros oeuvre, la toiture, les menuiseries extérieures, le ravalement, l'installation d'ascenseur et l'arrivée des fluides EDF, eau et Fraicheur de Paris.
Vous y retrouverez de très beaux volumes avec une partie sous verrière, un vaste hall d'accueil, plusieurs espaces ouverts et des salles de réunion.
De plus, l'actif bénéficiera d'une terrasse au 4ème étage.
Il dispose d'une excellente accessibilité à seulement 4 minutes à pied du métro George V, à 5 minutes à pied du métro et RER Charles de Gaulle - Etoile et à 8 minutes en voiture de la Porte Maillot.
Services & prestations
Aménagements
-
Accueil
-
Aménagement des bureaux : Cloisonnés/Ouverts
-
Complexe Salle de réunion
-
Hall d'accueil : Indépendant
Equipements
-
Ascenseurs : 1
-
Climatisation
-
Gestion technique centralisée : Oui, Oui
-
Production climatisation : Réseau urbain Fraicheur de Paris
-
Source chauffage : Géothermie CPCU
-
Type de chauffage : Collectif
Prestations de service
-
Parking
-
Sécurité : Contrôle d'accès
Extérieurs
-
Terrasses - jardins : Terrasses aux R+3 et R+4
Normes, Certifications et Labels
-
Certification : BREEAM
Type / Etat du bâtiment
-
Etat de l'immeuble : Restructuré avec PC
-
Immeuble indépendant
-
Type d'immeuble : Hôtel particulier fin du 19ème
Informations complémentaires
-
Local vélo au RDC










