




13 Rue du Docteur Lancereaux
75008 Paris
130 m²
Divisible dès 63 m²
Prix sur demande
Disponibilité : Nous consulter

Gauthier BOMPAIRE
Description
A proximité du métro Miromesnil, nous vous proposons d'acquérir une surface avec pierres apparentes située aux rez-de-chaussée et sous-sol dans un bel ensemble haussmannien.
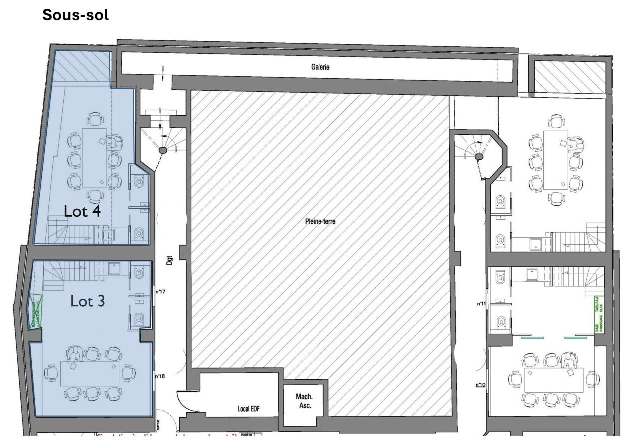
BNP Paribas Real Estate vous propose d'acquérir des locaux d'une surface totale de 130 m² divisibles dans le 8ème arrondissement de Paris.
Les locaux se situent aux rez-de-chaussée et sous-sol d'un bel ensemble immobilier.
L'actif est composé d'un espace ouvert au rez-de-chaussée et d'une salle de réunion avec sanitaires au sous-sol, il offre de beaux volumes avec vue sur une cour végétalisée récemment rénovée.
Possibilité de réunir les lots au rez-de-chaussée.
Il dispose d'une bonne accessibilité à seulement 7 minutes à pied du métro Monceau, à 8 minutes à pied du métro Miromesnil et à 14 minutes à pied de la gare Saint-Lazare.
Services & prestations
Aménagements
-
Aménagement des bureaux : Grande flexibilité d’aménagement
-
Complexe Salle de réunion : 1 salle(s)
-
Sanitaires
Equipements
-
Fenêtres : Double vitrage
-
Sol bureaux : Carrelage
Prestations de service
-
Sécurité : Contrôle d'accès Interphone
Type / Etat du bâtiment
-
Etat de l'immeuble : Etat d'usage
-
Type d'immeuble : Haussmannien
Informations complémentaires
-
Cour intérieure végétalisée, Parties communes récemment rénovées, Pierres apparentes










