




13 Rue du Docteur Lancereaux
75008 Paris
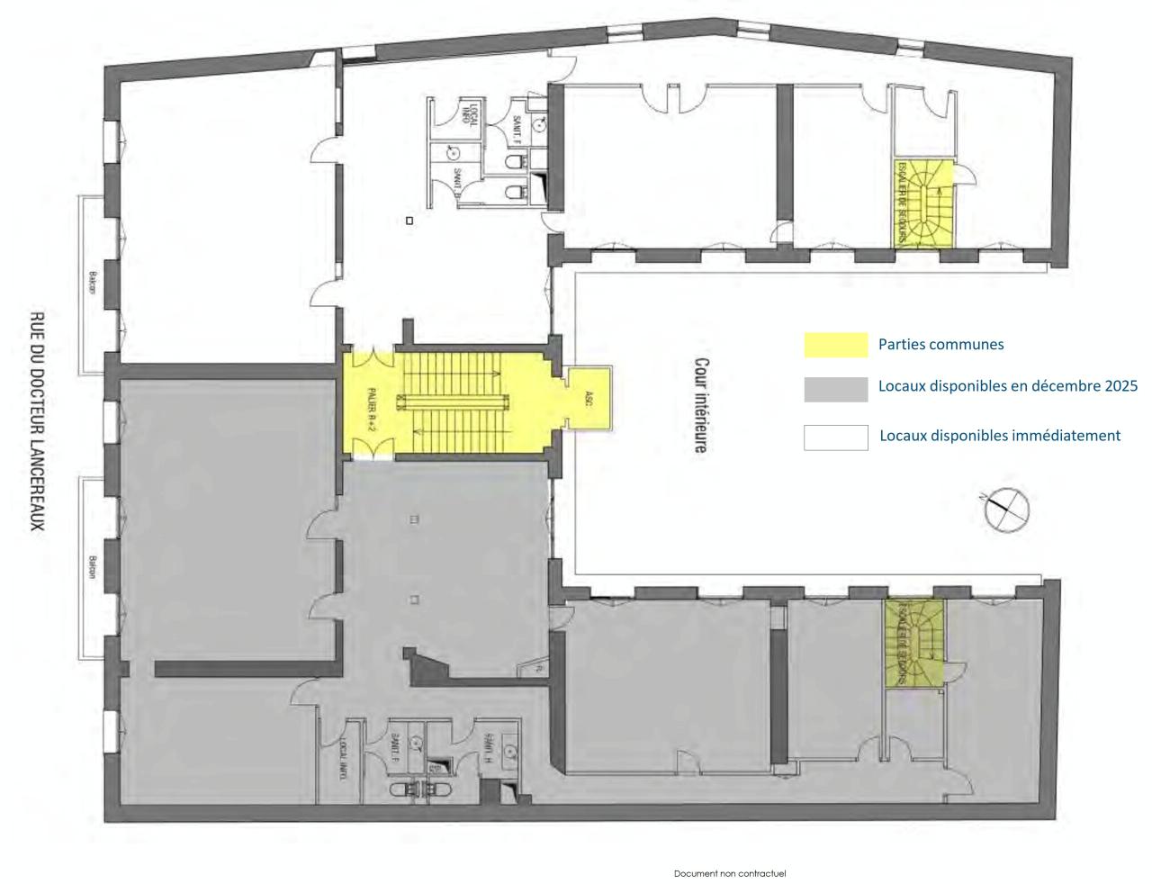
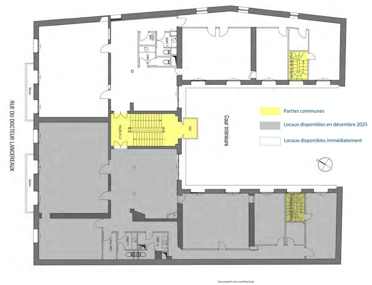
921 m²
Divisible dès 223 m²
850 €
HT/HC/m²/an
Disponibilité : Immédiate

Gautier BASCOU
Description
A toute proximité du Parc Monceau dans un immeuble Haussmannien de très bon standing, nous vous proposons à la location plusieurs surfaces de bureaux divisibles.
Locaux en excellent état, prestations haut de gamme sur l'ensemble de l'immeuble.
Plan efficace et rationnel.
A toute proximité du Parc Monceau dans un immeuble Haussmannien de très bon standing, nous vous proposons à la location plusieurs surfaces de bureaux divisibles.
Locaux en excellent état, prestations haut de gamme sur l'ensemble de l'immeuble.
Plan efficace et rationnel.
Services & prestations
Aménagements
-
Accueil : Une entrée
-
Aménagement des bureaux : Cloisonnés Beaux volumes
-
Bureaux cloisonnés : 6
-
Complexe Salle de réunion : 1 salle(s)
-
Sanitaires
Equipements
-
Ascenseurs
-
Climatisation : Réversible
-
Fenêtres : Double vitrage
-
Sol bureaux : Parquet
Prestations de service
-
Sécurité : Contrôle d'accès Interphone
Extérieurs
-
Terrasses - jardins : Cour arborée
Type / Etat du bâtiment
-
Etat de l'immeuble : Etat d'usage
-
Type d'immeuble : Pierre de Taille
Informations complémentaires
-
Moulures et cheminées










