




148 Boulevard Haussmann
75008 Paris
1 897 m²
Divisible dès 337 m²
920 €
HT/HC/m²/an
Disponibilité : 15/10/2026

Sophie HENON
Description
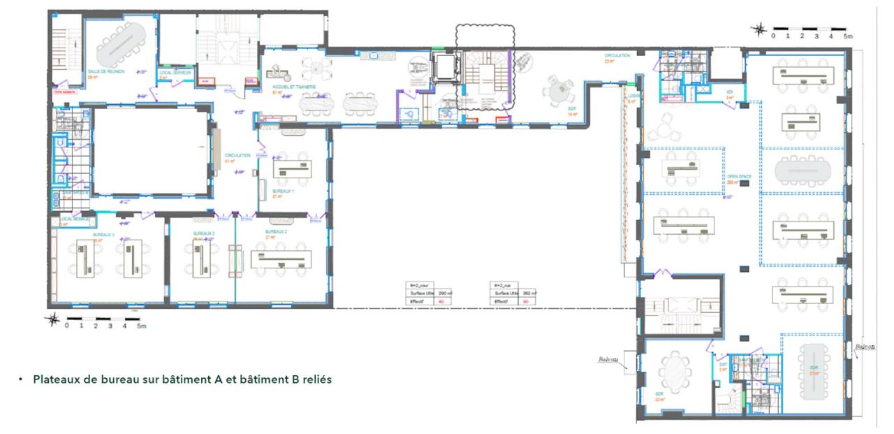
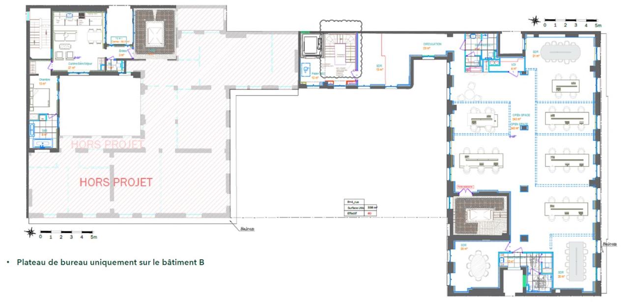
Au cœur du Quartier Central des Affaires, Paris 8ème, entre l’avenue de Messine et la rue de Courcelles, nous vous proposons au sein d’un immeuble haussmannien situé au 148 boulevard Haussmann 1 897 m² à usage de bureaux. Double accès par le Square Beaujon et le 148 Bd Haussmann.
Une lourde rénovation est prévue pour une livraison en janvier 2027
L’accès au hall d’accueil et à un espace de réunion « prime » se fera par la cour principale qui sera arborée. Les plateaux sont divisible sà partir de
Au cœur du Quartier Central des Affaires, Paris 8ème, entre l’avenue de Messine et la rue de Courcelles, nous vous proposons au sein d’un immeuble haussmannien situé au 148 boulevard Haussmann 1 897 m² à usage de bureaux. Double accès par le Square Beaujon et le 148 Bd Haussmann.
Une lourde rénovation est prévue pour une livraison en janvier 2027
L’accès au hall d’accueil et à un espace de réunion « prime » se fera par la cour principale qui sera arborée. Les plateaux sont divisible sà partir de 337m².
- Location de bureaux
- Quartier Central des Affaires
- 75008 PARIS
- Proximité Parc Monceau
- Entre l'avenue de Messine et la rue de Courcelles
- Voisin du Musée Jacquemart- André
- Métro Miromesnil
L'IMMEUBLE
- Bel immeuble haussmannien
- Bureaux livrés rénovés
- bureaux à louer Environ 1897 m²
- Etage courant : entre 280 et 350 m²
- Cour intérieure entièrement revalorisée et végétalisée
- Climatisation
PROGRAMME TRAVAUX :
- Rénovation et végétalisation des 2 cours intérieures
- Rénovation complète du hall côté BD et création d'un hall côté cour.
- Rénovation complète des espaces de bureau
- Remise aux normes techniques et PMR
- Raccordement fraîcheur de Paris et CPCU
- Remplacement partiel des menuiseries si nécessaire
- Etudes en cours pour l'obtention d'une certification HQE (coté boulevard)
LIVRAISON PREVISIONNELLE : JANVIER 2027
Services & prestations
Aménagements
-
Accès Pers. Mobilité Réduite
-
Effectif théorique : 230 personne(s)
-
Hall d'accueil : Indépendant privatif Bureaux
Equipements
-
Ascenseurs : 1
-
Climatisation
-
Faux plafond : Batiment rue
-
Faux plancher : Batiment Rue
-
Production climatisation : Réseau urbain Fraîcheur de Paris
-
Sol bureaux : Moquette batiment rue
-
Source chauffage : Géothermie CPCU
Extérieurs
-
Terrasses - jardins : Jardin certifié EFFINATURE, Valorisation et végétalisation de la cour
Normes, Certifications et Labels
-
Certification : HQE
Type / Etat du bâtiment
-
Etat de l'immeuble : Rénové
-
Etat des locaux : Rénové
-
Orientation façade : RUE & COUR
Informations complémentaires
-
Parquet ,moulures , cheminées - bat Cour
-
Attente pour kitchenette/tisanerie (une par étage)










