




38 Rue du Louvre
75001 Paris
312 m²
650 €
HT/HC/m²/an
Disponibilité : Nous consulter

Elliott KASBY
Description
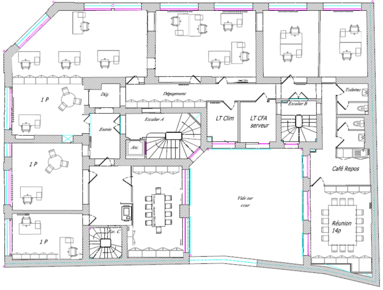
Bureaux à louer - Louvre x Bourse de Commerce
Au coeur d'un emplacement Premium, BNPP RE vous propose des bureaux parfaitement fonctionnels et exploitables.
Le plan optimisé offre une organisation efficace des espaces de travail, adaptée à une équipe exigeante recherchant rationalité et performance.
Localisation centrale, dynamique et très bien desservie, à proximité immédiate des commerces, transports et services.
Un atout supplémentaire : un loyer attractif pour le secteur, offrant un excellent rapport qualité / emplacement.
Immeuble d'angle de standing.
Accès sécurisé
Surface entièrement climatisée
Bureaux cloisonnés et espaces ouverts
Cuisine + espace déjeunatoire
Caves
Remise en état prévu par le locataire principal, sols, peintures et faux plafonds.
Services & prestations
Aménagements
-
Aménagement des bureaux : Cloisonnés/Ouverts Open et bureaux doubles
-
Complexe Salle de réunion
-
Salle informatique
Equipements
-
Ascenseurs : 1
-
Câblage informatique
-
Distribution climatisation : Ventilo convecteur en plafonnier
-
Faux plafond : Dal. fibres minéral.
-
Sol bureaux : Moquette
-
Type de chauffage : Individuel
Prestations de service
-
Parking : Moins de 5mn à pied
Type / Etat du bâtiment
-
Etat de l'immeuble : Etat d'usage
-
Etat des locaux : Rénové
-
Orientation façade : SUR RUE
Informations complémentaires
-
Cuisine
-
Locaux livrés rafraichis
-
Bureaux en 1er jour










