




14 Rue de Richelieu
75001 Paris
1 194 m²
Loyer sur demande
Disponibilité : 01/12/2026

Sophie HENON
Description
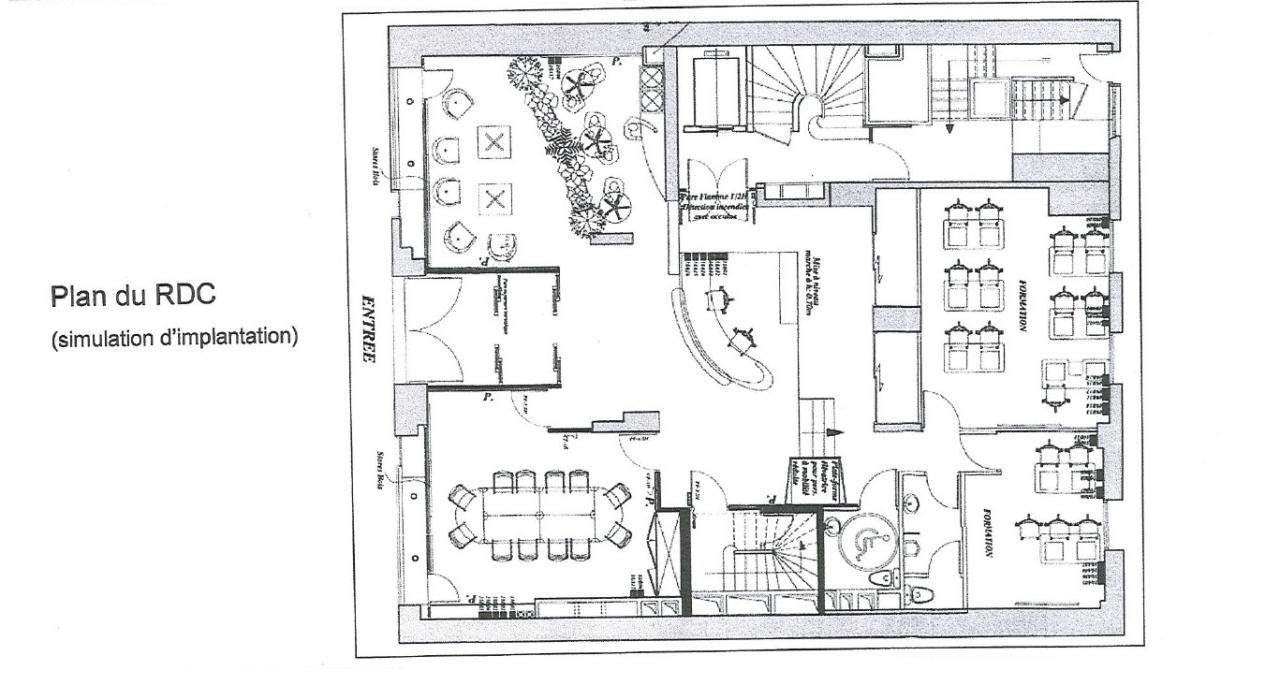
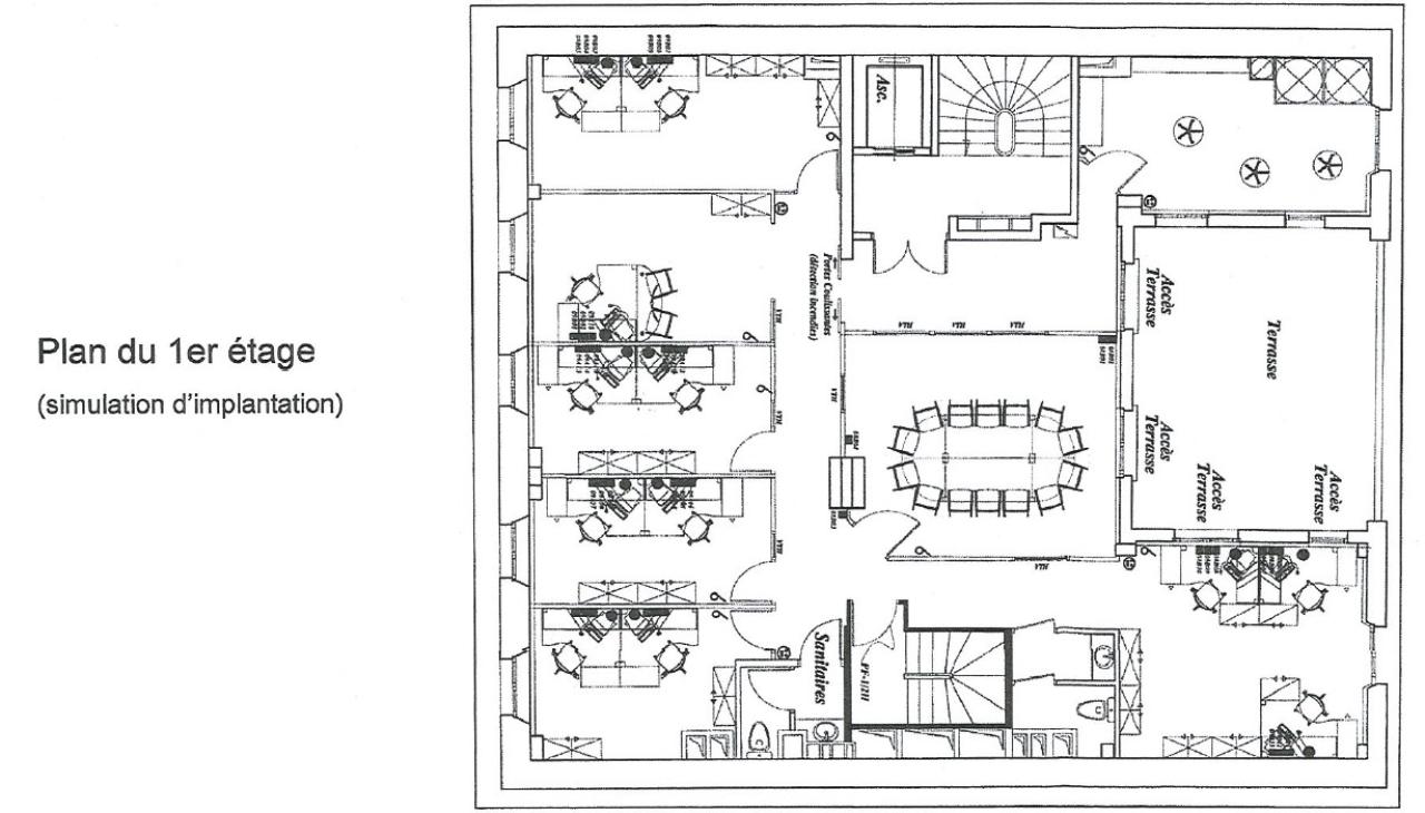
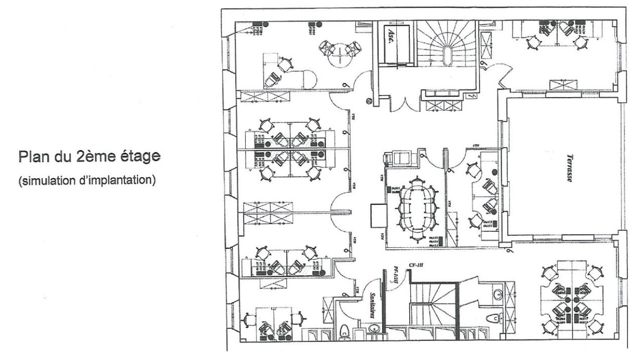
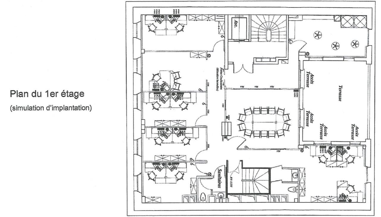
Quartier Central des Affaires, au cœur du 1er arrondissement, emplacement exceptionnel : Jardin du Palais Royal , double adresse : rue de Montpensier, nous vous proposons à la location un immeuble indépendant d'environ 1194 m² de bureaux répartis du rez-de-chaussée au 6ème étage sur deux niveaux de sous-sols à usage d'archives et de parking (10 emplacements) Terrasse d'environ 30 m²
LOCATION DE BUREAUX
QUARTIER CENTRAL DES AFFAIRES
EMPLACEMENT EXCEPTIONNEL PALAIS ROYAL
IMMEUBLE INDEPENDANT
Bureaux en très bon état
1194 m² de bureaux à louer
terrasse au R+1
Services & prestations
Equipements
-
Ascenseurs : 1
-
Climatisation : Ventilation mécanique
-
Type de chauffage : Individuel Ventilo-convecteurs
Extérieurs
-
Terrasses - jardins
Type / Etat du bâtiment
-
Etat de l'immeuble : Etat d'usage Bon standing
-
Etat des locaux : Très bon état










