




92 Rue de Richelieu
75002 Paris
6 700 m²
Divisible dès 1 102 m²
Loyer sur demande
Disponibilité : Immédiate

Alix GATAULT-KOLB
Description
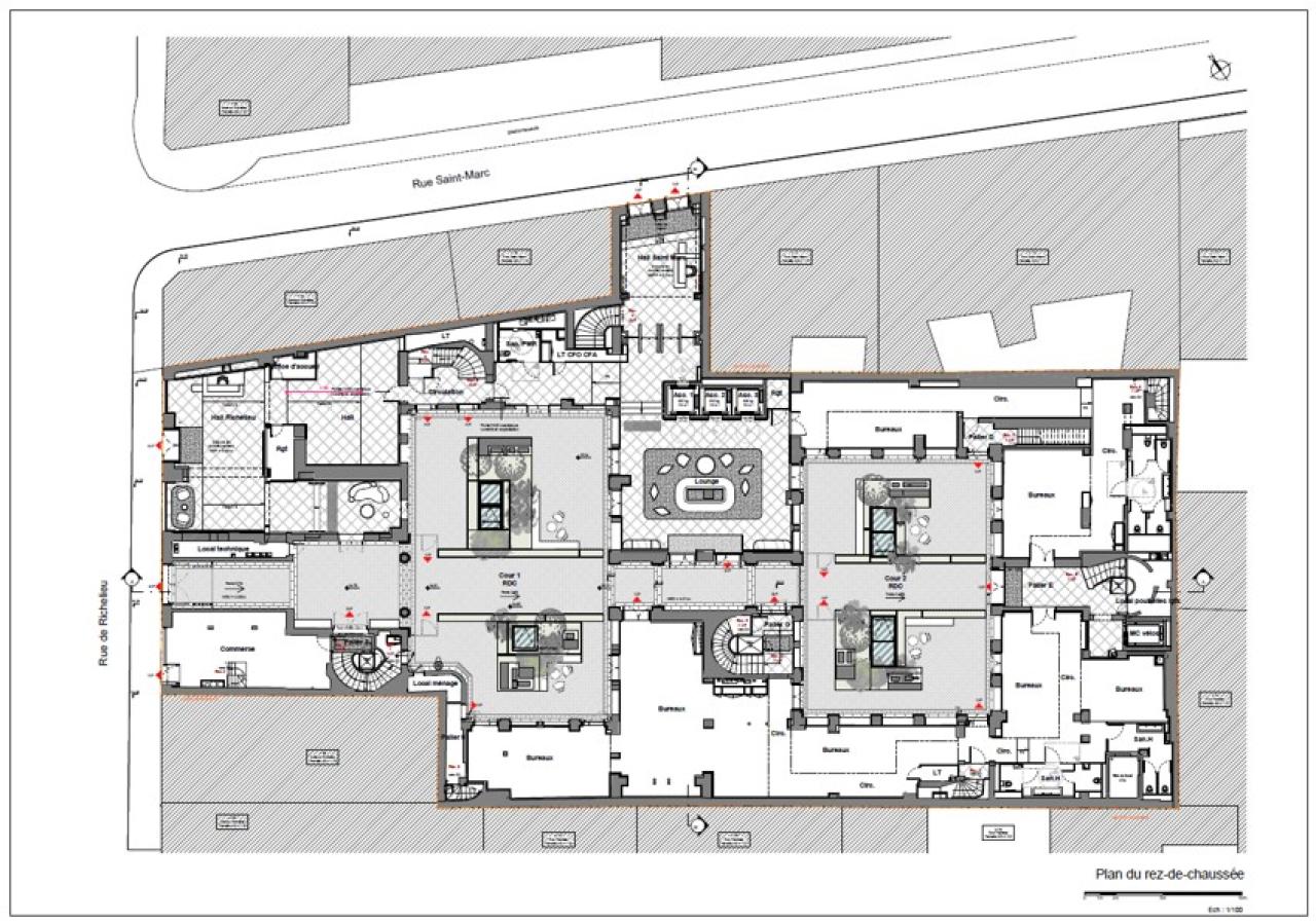
A proximité de la Place de la Bourse, nous vous proposons un bel immeuble ancien indépendant de bon standing, qui va être entièrement rénové avec de très beaux volumes, flexibilité d'aménagement et disposant de 2 belles cours intérieures.
Immeuble restructuré de bureaux : un havre de paix au cœur de Paris
Découvrez un immeuble de bureaux d'exception au 92 rue de Richelieu, dans le 2ème arrondissement de Paris. Ce joyau architectural, signé par le célèbre YMA, offre un environnement de travail unique, pensé pour le bien-être et la performance de ses occupants.
Un écrin de verdure en plein cœur de la ville
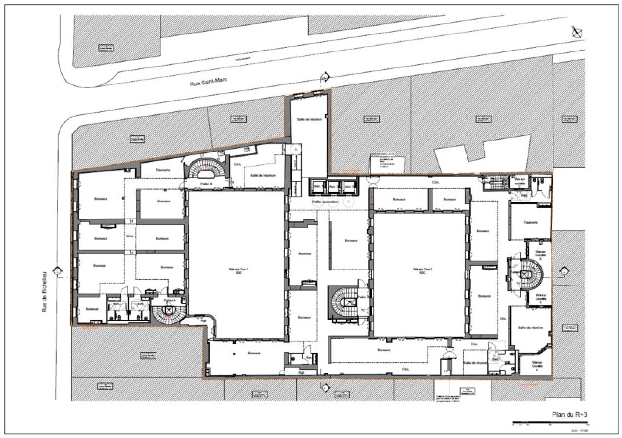
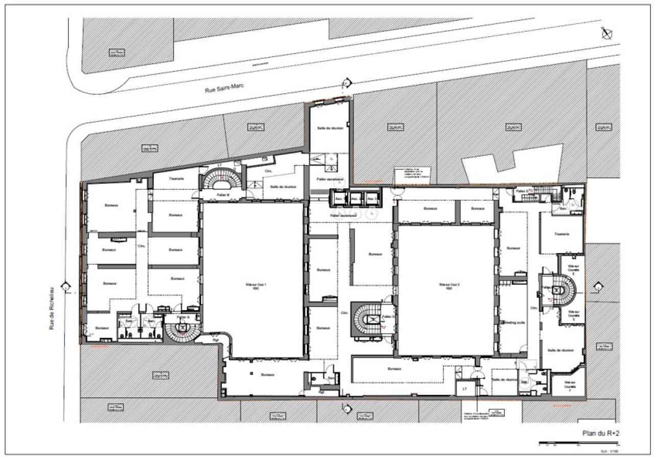
L'immeuble se distingue par ses jardins paysagés, aménagés autour d'une cour pavée privative. Ces espaces verts, véritables oasis de fraîcheur, offrent un cadre idéal pour se détendre, se ressourcer et favoriser la créativité.
Des espaces lumineux et spacieux
Profitez de belles hauteurs libres sous plafond qui baignent les bureaux de lumière naturelle. Cette conception favorise un sentiment d'espace et de bien-être, tout en stimulant la productivité.
Un engagement fort pour le développement durable
L'immeuble est labélisé BREEAM, WIRED SCORE et BBCA, attestant de son engagement en faveur du développement durable. Des solutions innovantes ont été mises en œuvre pour réduire l'impact environnemental du bâtiment et garantir le confort de ses occupants.
Un emplacement idéal
Situé au cœur du 2ème arrondissement, l'immeuble bénéficie d'un emplacement d'exception. À proximité immédiate des transports en commun (ligne 3 « Bourse », ligne 8 & 9 « Richelieu-Drouot ») et des commerces, il offre un accès facile à toutes les commodités.
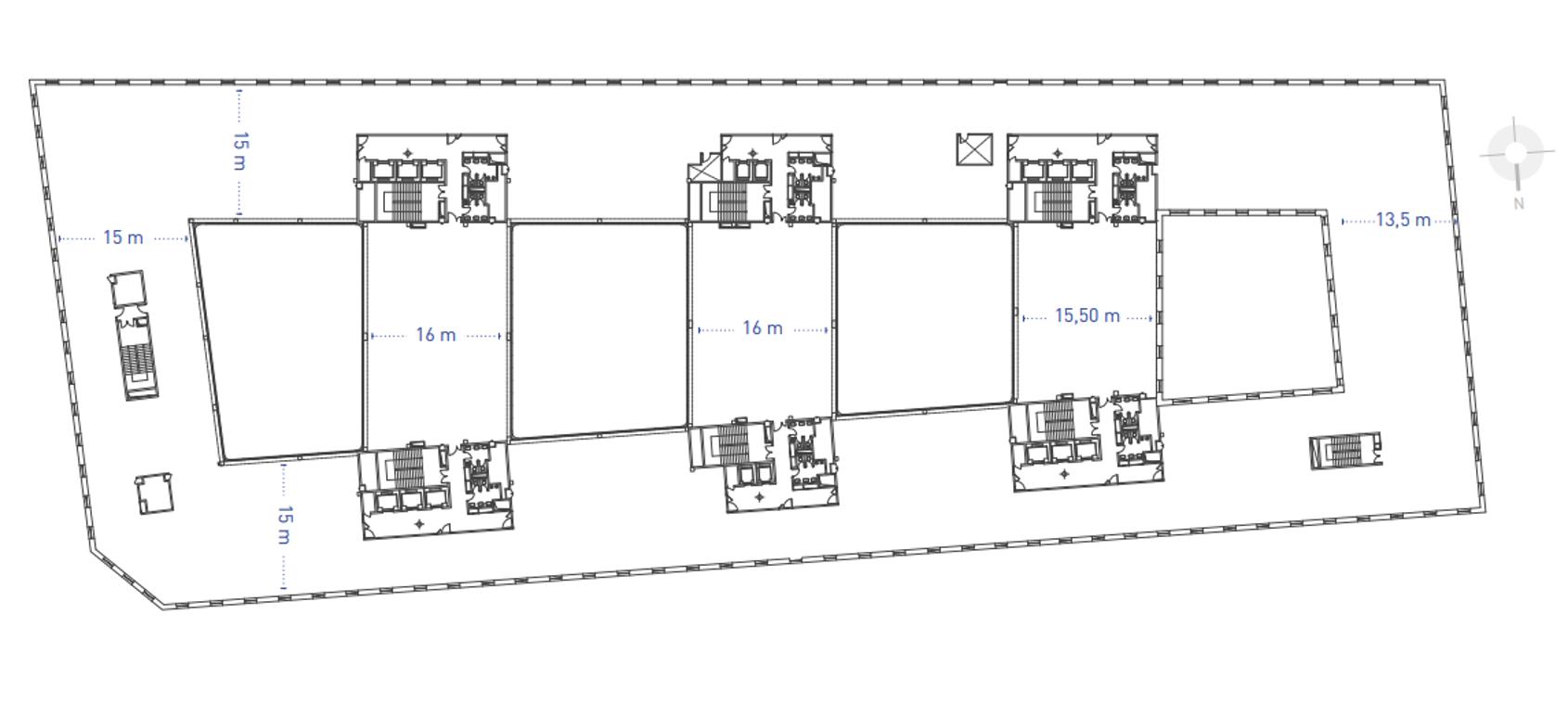
Une surface modulable pour répondre à vos besoins
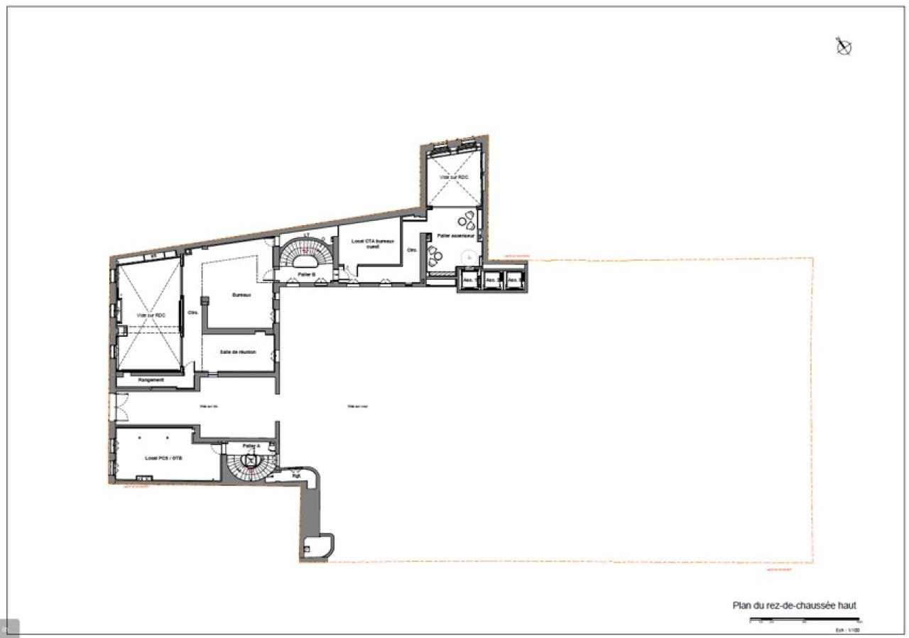
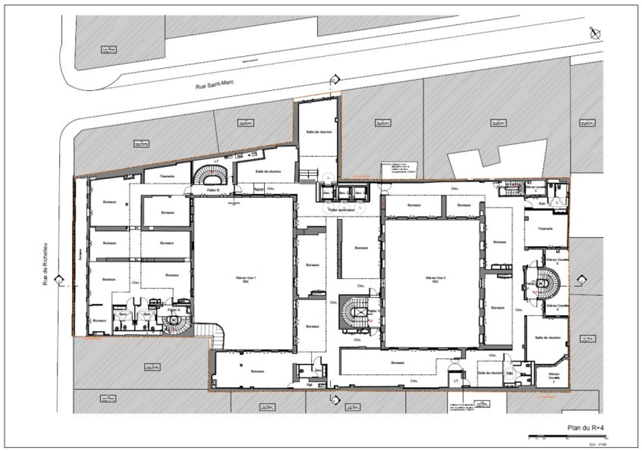
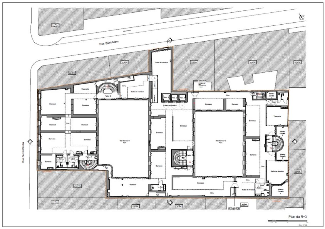
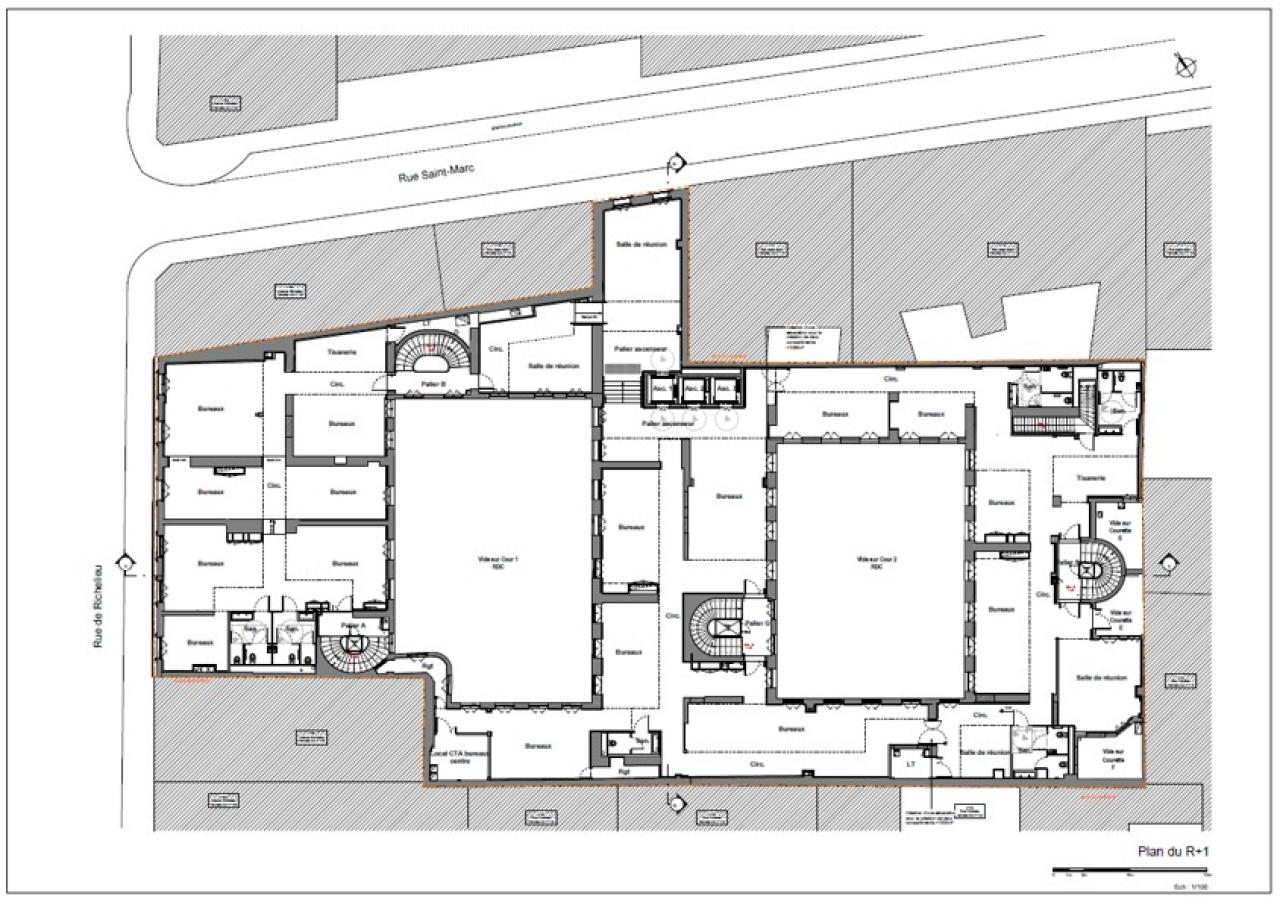
Avec ses 6 700 m² de surface modulable et ses grands plateaux d’environ 1 000 m², l'immeuble répond aux besoins des entreprises de toutes tailles. Que vous recherchiez des bureaux en open-space ou des espaces cloisonnés, vous trouverez la configuration idéale pour votre activité.
Un environnement de travail propice à la performance
En plus de ses espaces verts, de ses volumes généreux et de son engagement pour le développement durable, l'immeuble propose une salle de fitness entièrement équipée. Un atout supplémentaire pour favoriser le bien-être et la performance de vos équipes.
Services & prestations
Equipements
-
Ascenseurs : 1
Prestations de service
-
Sécurité
Type / Etat du bâtiment
-
Etat de l'immeuble : Rénové Autour de 2 cours intérieures
-
Etat des locaux : Restructuré avec PC
Informations complémentaires
-
2 belles cours intérieures










