




Location Bureau 1 475 m²
75010 Paris
1 475 m²
Divisible dès 197 m²
à partir de 690 €
HT/HC/m²/an
Disponibilité : Immédiate

Quentin THORE
Description
Location bureau Paris 10 La Fayette Standing Verrière Moulures Climatisation Terrasse
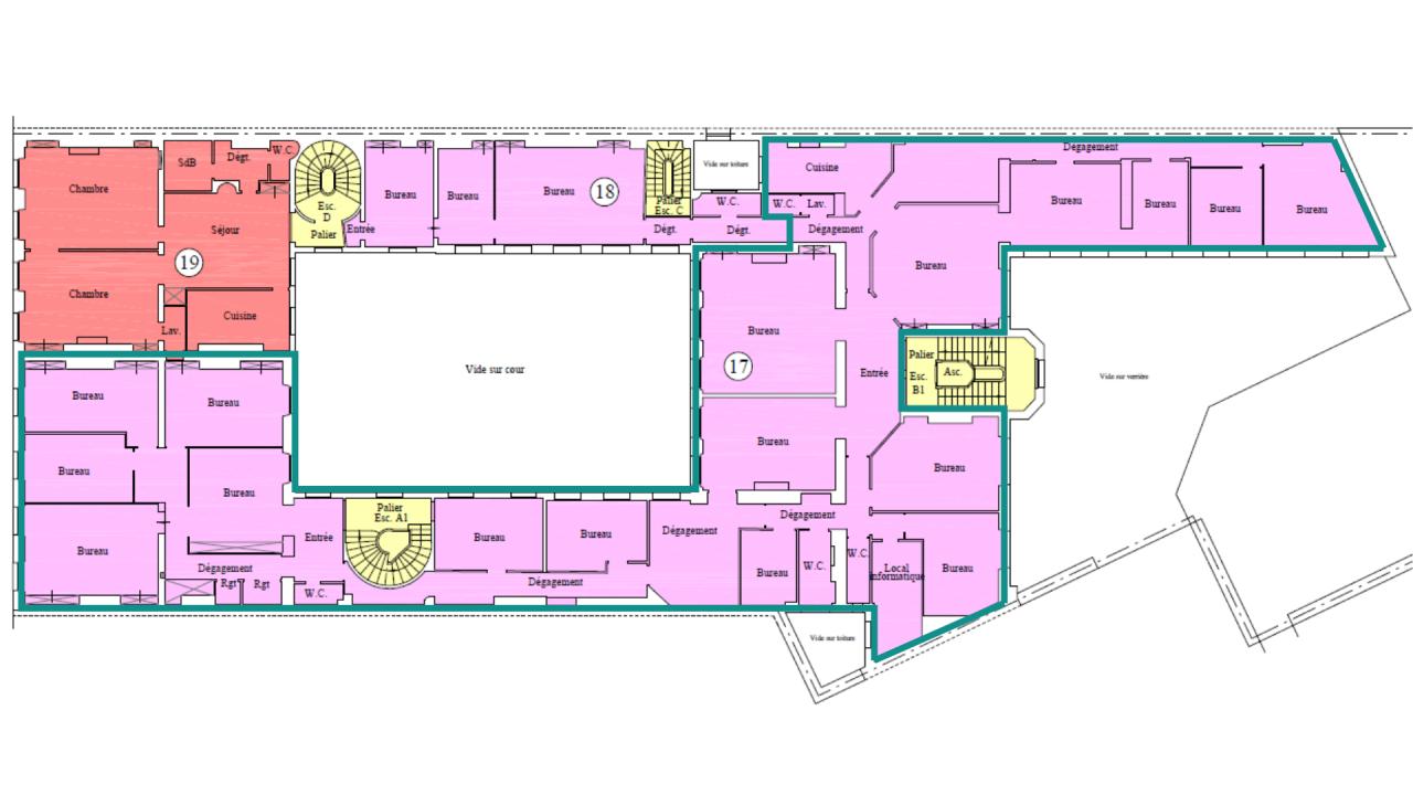
BNPPRE a le plaisir de vous proposer en tri ex, un magnifique local sous verrière de 828 à 1 025 m², aménagé avec plusieurs open spaces, bureaux fermés, salles de réunion, cuisine, douches, et mobilier disponible. Un plateau indépendant de 450 m² entièrement rénové est également disponible. Idéal pour entreprises à la recherche de volume, de cachet et de fonctionnalité.
Bureaux à louer Paris 10e Espaces lumineux & rénovés
Dans un immeuble de qualité avec cour partagée et parking vélos, nous proposons à la location un ensemble de bureaux sous verrière d'environ 1 025 m², divisibles à partir de 828 m² en RDC/R+1.
Paris 10e Secteur central & dynamique
Capacité : 70 à 100 postes
3 open spaces, 5 bureaux fermés
4 salles de réunion (densifiables), cuisine équipée
Sanitaires + 3 douches
Mobilier disponible en reprise
Plateau de 450 m² disponible au 3e étage avec ascenseur privatif :
Rénové récemment
Parquet massif en point de Hongrie
4 open spaces de 6 postes
Grande salle de réunion (12 postes)
Cuisine indépendante
Loyer 690/m²/an HT HC
Espaces clés en main, lumineux, modulables, parfaits pour une entreprise en croissance !
Contactez-nous pour organiser une visite ou obtenir plus d'informations.
Services & prestations
Aménagements
-
Aménagement des bureaux : Cloisonnés/Ouverts
-
Bureaux cloisonnés
-
Salle informatique
-
Sanitaires : Privatif(s)
Equipements
-
Ascenseurs : 1
-
Climatisation : Réversible Lot 17 climatisé, lot 4/5/6/10 climatisable
-
Câblage informatique
-
Douche : 3
-
Eclairage Bureaux : Luminaires suspendus
-
Plinthes techniques périphériques
-
Production climatisation : Autonome
-
Sol bureaux : Parquet
-
Source chauffage : Gaz
-
Type de chauffage : Individuel
Prestations de service
-
Parking : Rack à vélos actuellement, local vélo en 2026
-
Sécurité : Gardiennage Gardienne à demeure
Extérieurs
-
Terrasses - jardins : Terrase partagée dans la cour
Type / Etat du bâtiment
-
Etat de l'immeuble : Seconde main Très bon état, parties communes rénovées en 2026
-
Etat des locaux : Rénové
-
Orientation façade : SUR RUE










