




65 Rue de Reuilly
75012 Paris
610 m²
450 €
HT/HC/m²/an
Disponibilité : 20/07/2026

Sophie HUYNH
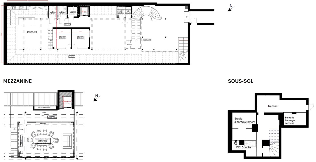
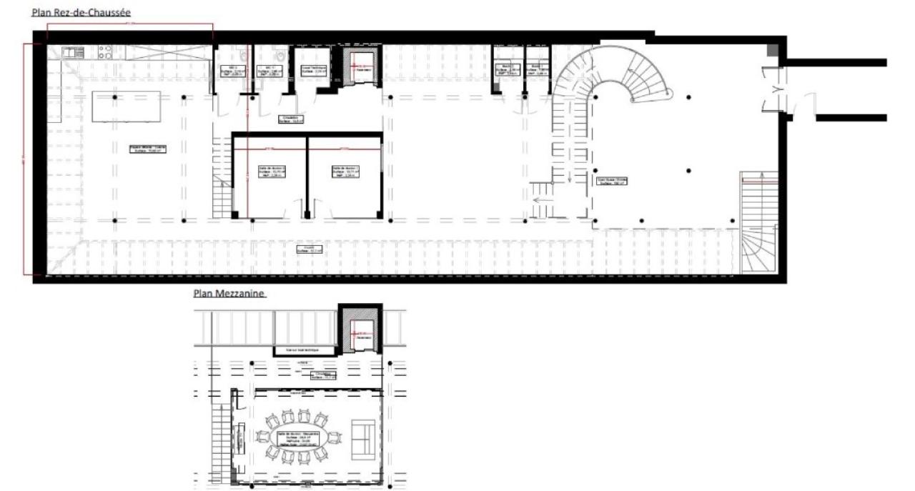
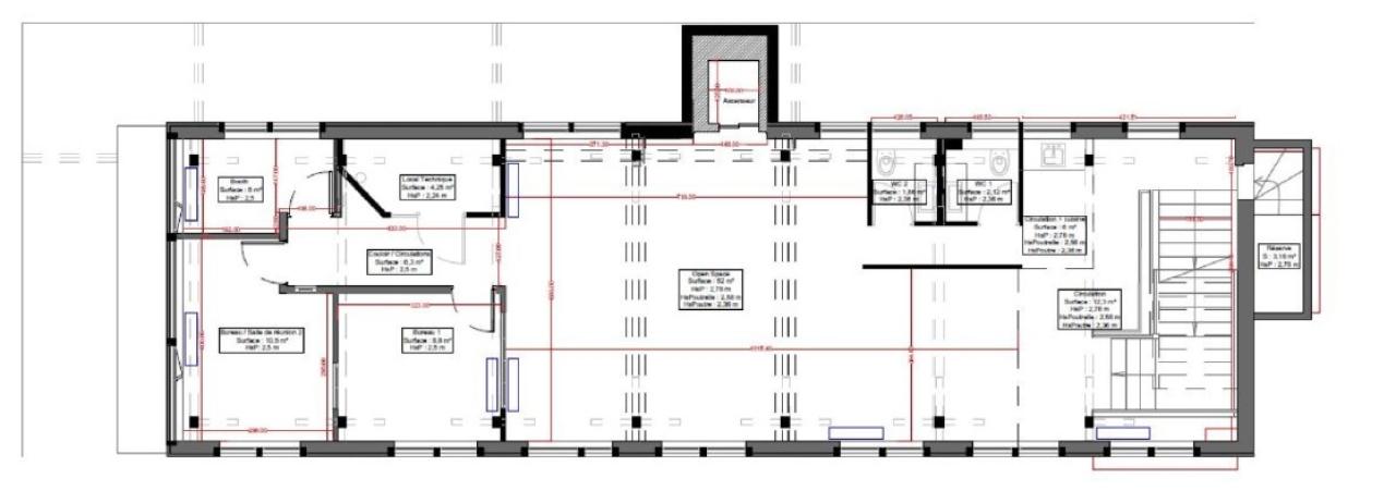
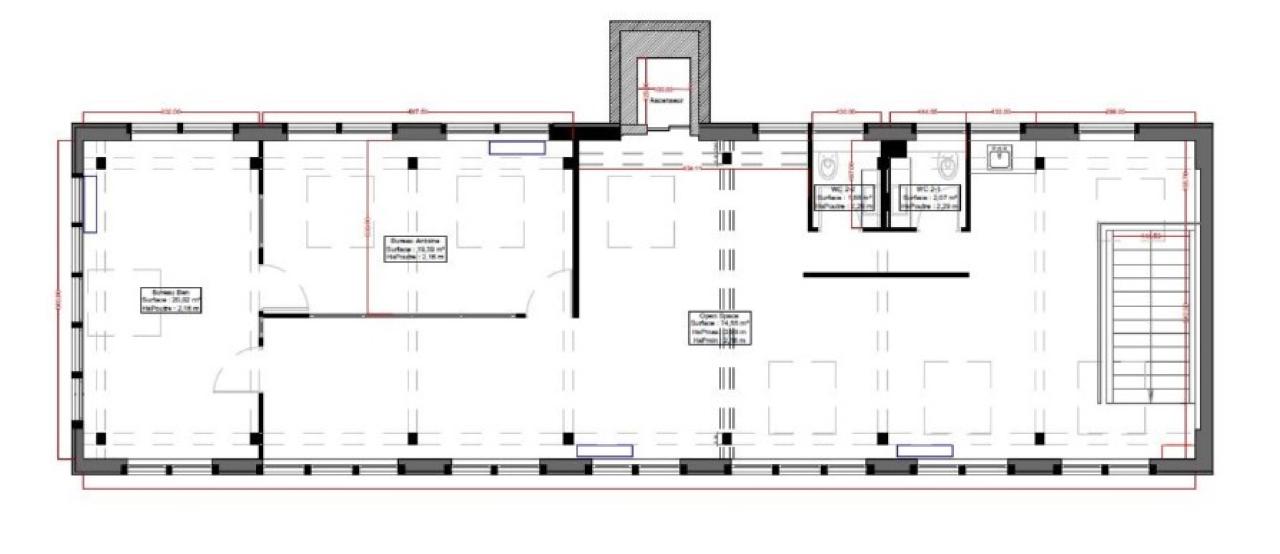
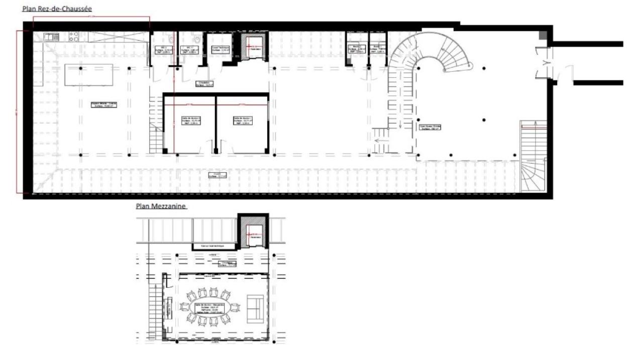
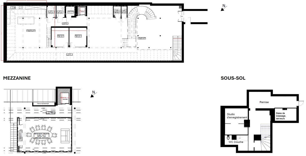
Description
Découvrez le Grand Lavoir, bâtiment atypique entièrement restructuré en bureaux, niché dans une cour pavée.
Ce loft de style industriel bénéficie d'une belle luminosité apportée par la verrière et de 5m de hauteur sous plafond.
Le bâtiment est organisé autour de grands open spaces, de salles de réunion ou de bureaux privatifs et de 3 phonebooths et d'un studio d'enregistrement.
Services & prestations
Aménagements
-
Aménagement des bureaux : Cloisonnés/Ouverts
-
Sanitaires
Equipements
-
Ascenseurs
-
Câblage informatique
Hauteurs
-
Hauteur sous-plafond : 5,00 mètre(s)
Prestations de service
-
Sécurité : Badge
Type / Etat du bâtiment
-
Etat des locaux : Très bon état
Informations complémentaires
-
Douche
-
Poutres métalliques et bois apparentes, Poutres métalliques et bois apparentes










