




HORACE
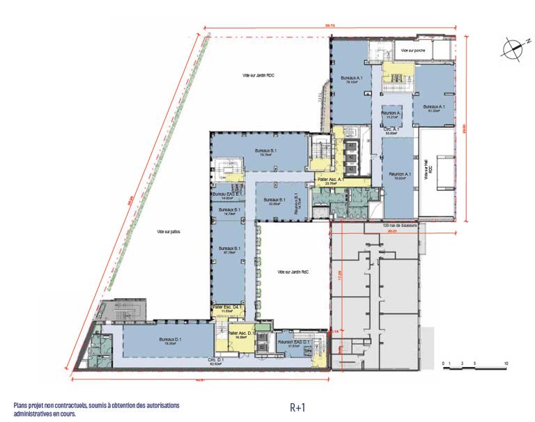
141 Rue de Saussure
75017 Paris
6 248 m²
Divisible dès 220 m²
à partir de 675 €
HT/HC/m²/an
Disponibilité : Immédiate

Benoit FEUILLADE
Description
Immeuble de bureaux situé au cœur du 17ème arrondissement et une localisation stratégique à proximité des Batignolles, pôle tertiaire majeur dans Paris Intramuros. Il bénéficie d'une dizaine de terrasses, patios et jardins à des niveaux différents, avec des ambiances différentes, avec plus de 700m² de surfaces végétalisées et visant une certification HQE, référentiel BD 2016, niveau Excellent.
Le 141 rue de Saussure à Paris 17ème, est un immeuble de bureaux proposé à la location et accessible par le tramway T3b "Porte d'Asnières", la ligne 14 du métro et la ligne L "Pont Cardinet".Il bénéficie de patios végétalisés, d'un potager urbain et d'une terrasse au niveau de la cafétéria. Des espaces extérieurs paysagers sur 9 des 13 niveaux du projet et un roof top avec vue panoramique sur Paris.
Services & prestations
Aménagements
-
Effectif théorique : 740 personne(s)
Equipements
-
Climatisation : Plafonds rayonnants
-
Faux plafond
-
Faux plancher
-
Production climatisation : Réseau urbain CPCU
Hauteurs
-
Hauteur sous-plafond : 2,50 mètre(s)
Prestations de service
-
Fitness
-
Restauration : 400 Places 604 m²
Normes, Certifications et Labels
-
Certification : HQE
Type / Etat du bâtiment
-
Etat de l'immeuble : Restructuré avec PC
-
Etat des locaux : Restructuré avec PC
-
Immeuble indépendant










