




101 Rue de Richelieu
75002 Paris
2 027 m²
Divisible dès 552 m²
à partir de 830 €
HT/HC/m²/an
Disponibilité : Immédiate

Sophie HENON
Description
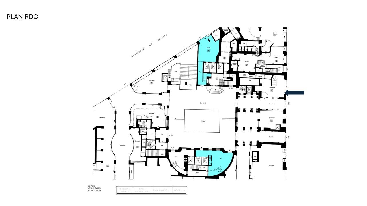
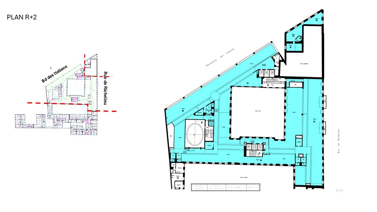
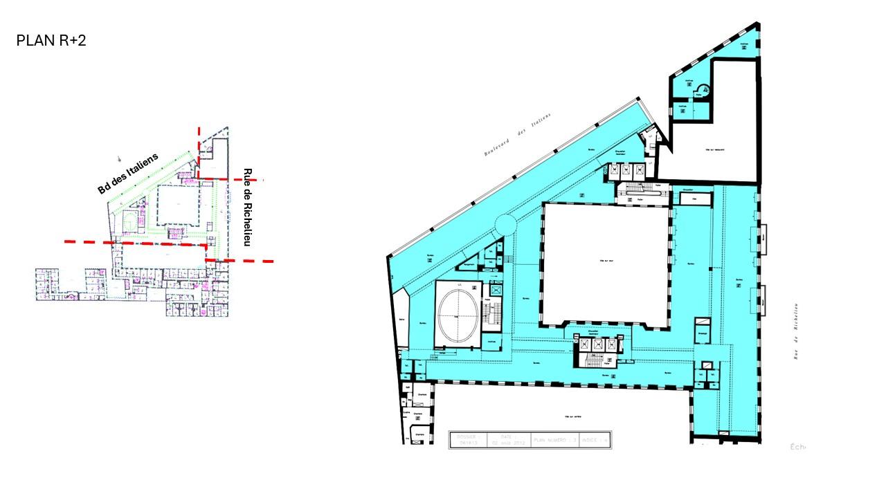
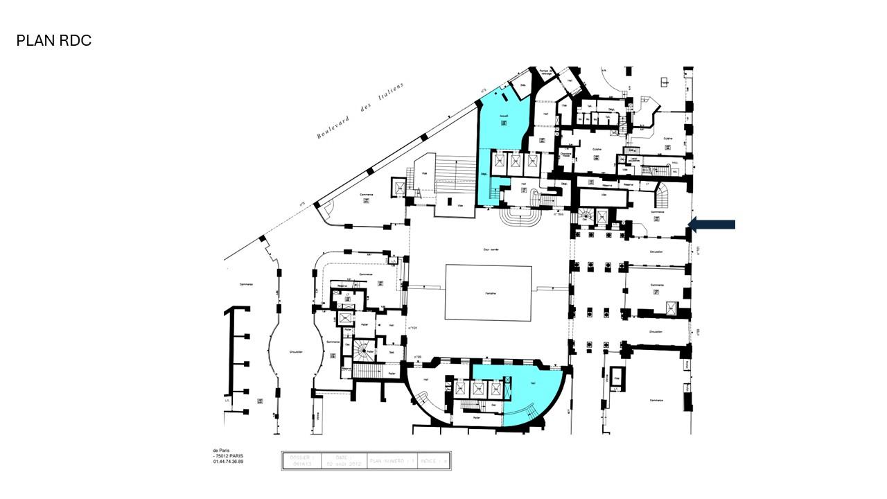
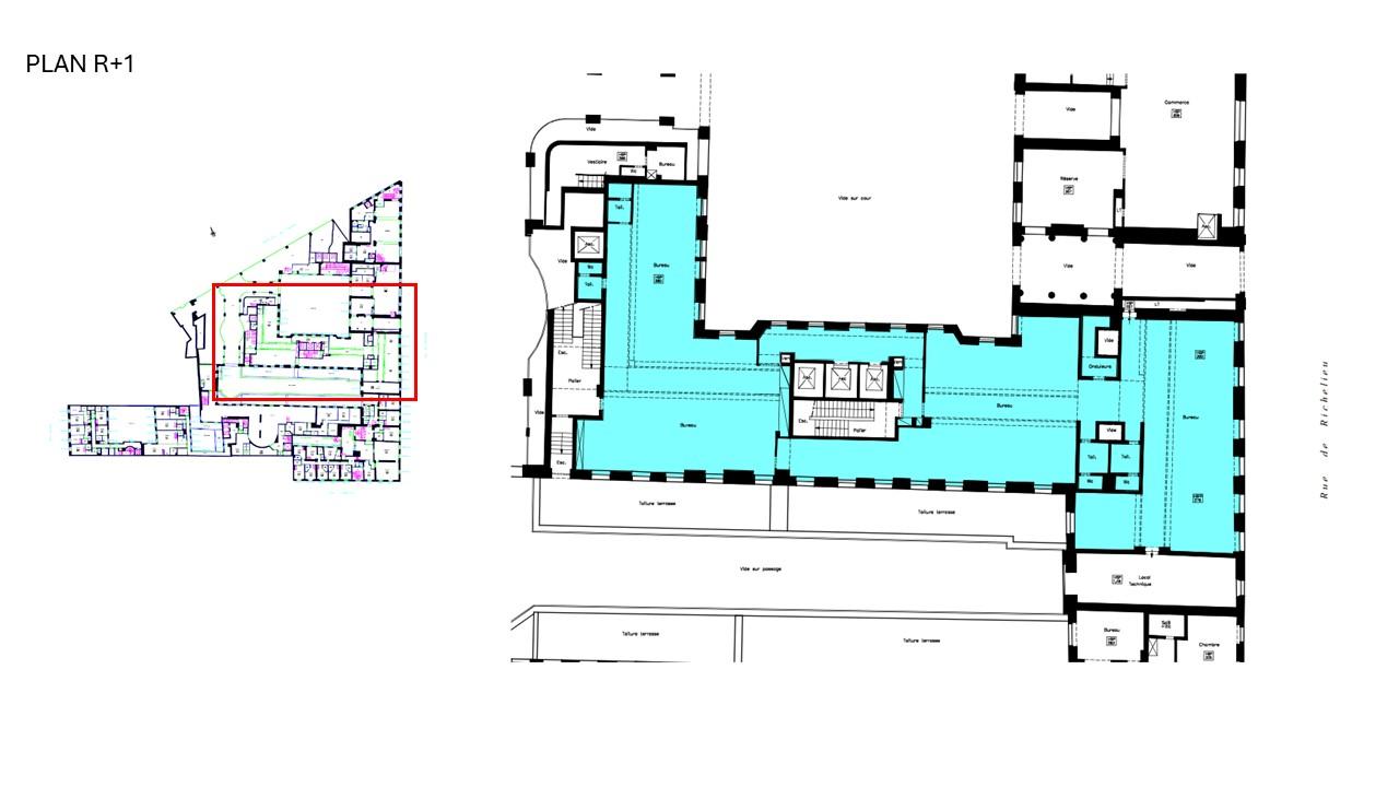
Au pied du Métro Richelieu-Drouot, à proximité de la Place de l’Opéra et de la Bourse, au 101 rue de Richelieu, nous vous proposons à la location 2 027 m² de bureaux situés aux 1er et 2ème étage de cet ensemble immobilier.
LOCATION DE BUREAUX PARIS 2
GRANDS PLATEAUX
2027 m² de BUREAUX A LOUER
Faux plancher
Climatisation
Poste de sécurité 24/24
Parkings en s/sol
Entrée Principale sur le 3 Bd des Italiens avec 3 ascenseurs
Hall secondaire sur la cour du Passage des Princes avec 3 ascenseurs
certification BREEAM niveau Good
Disponibilité : IMMEDIATE
Services & prestations
Aménagements
-
Accès Pers. Mobilité Réduite
-
Effectif théorique : 200 personne(s)
-
Hall d'accueil
Equipements
-
Ascenseurs
-
Climatisation : Réversible
-
Distribution climatisation
Prestations de service
-
Parking
-
Sécurité : PC Sécurité 24h/24
Extérieurs
-
Terrasses - jardins : Cour intérieure
Normes, Certifications et Labels
-
Certification : BREEAM
Type / Etat du bâtiment
-
Etat des locaux : Rénové
-
Orientation façade : SUR RUE
Informations complémentaires
-
Faux plancher










