




22 Rue de Provence
75009 Paris
3 297 m²
Divisible dès 192 m²
à partir de 890 €
HT/HC/m²/an
Disponibilité : Immédiate

Pascaline HARRELCOURTES
Description
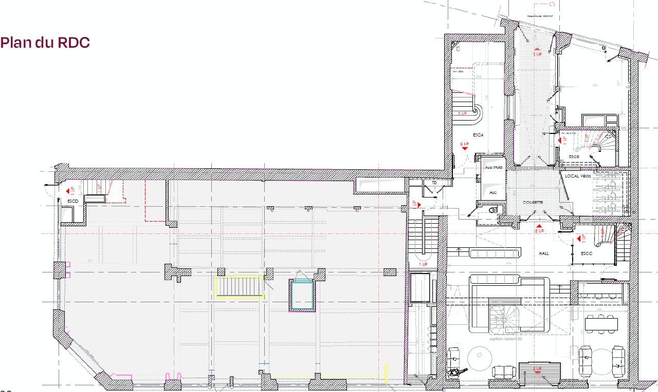
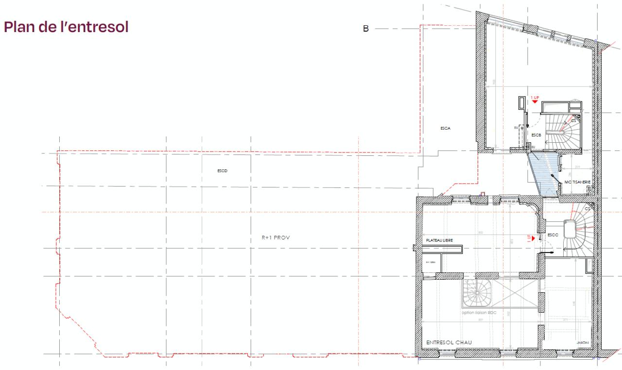
Au cœur du 9ème arrondissement, au pied du métro Le Peletier, au 22 rue de Provence, nous vous proposons ce bel immeuble traversant entre la rue Le Peletier, la rue Chauchat et la rue de Provence. Il développe une superficie de bureaux d'environ 3 280 m² répartis du rez-de-chaussée au 7ème étage .
Un projet de restructuration ambitieux est en cours, visant la réunion de 3 bâtiments aux styles architecturaux distincts dont un immeuble Art Déco au cachet unique.
- Paris 9ème
- Immeuble indépendant
- 3 280 m² de bureaux restructurés
- Capacitaire sécuritaire : 400 personnes
- Disponibilité : Mars 2025
- Double accès au bureau (19 rue Chauchat et 32 rue Le Peletier)
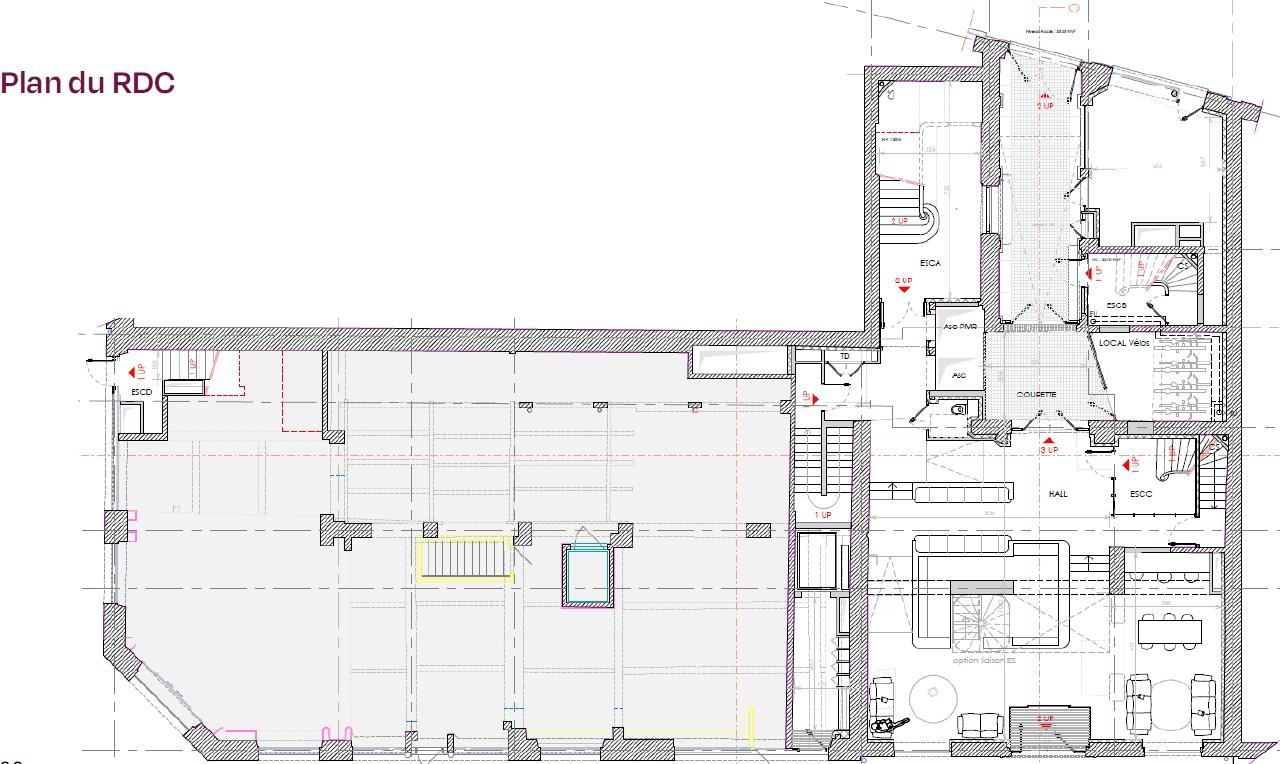
- Accès PMR
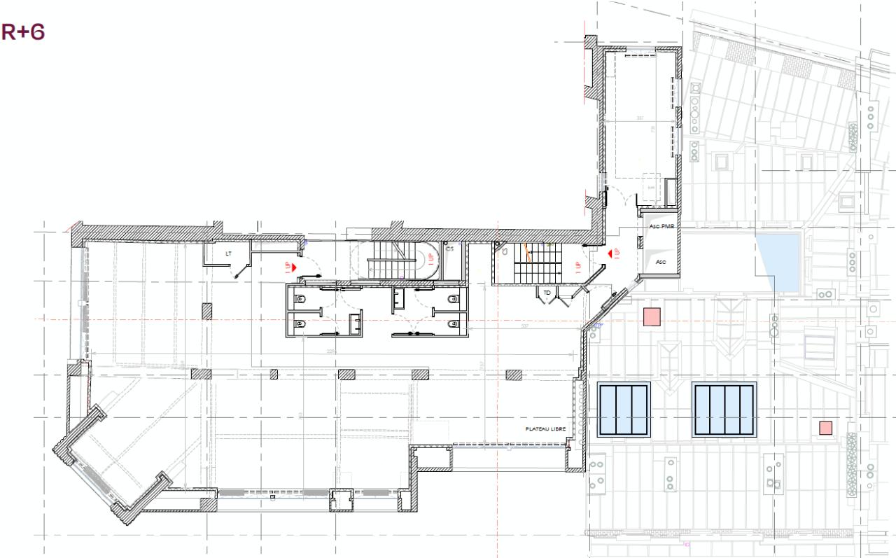
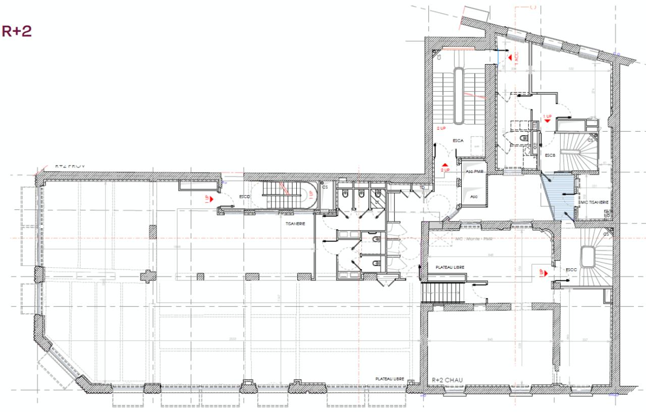
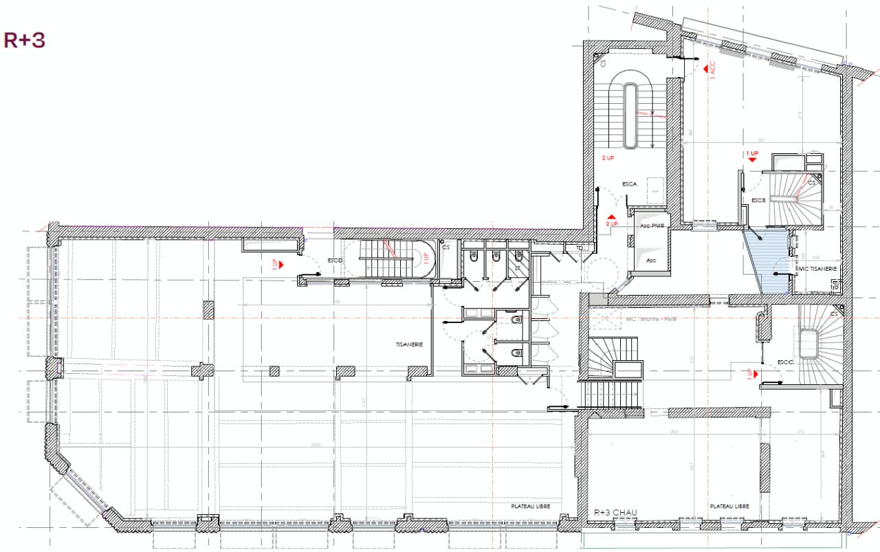
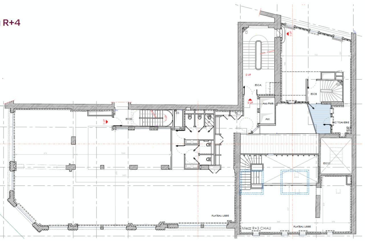
- 2 ascenseurs dont un PMR
- Climatisation, CTA, ventilation naturelle
- CPCU et Fraicheur de Paris
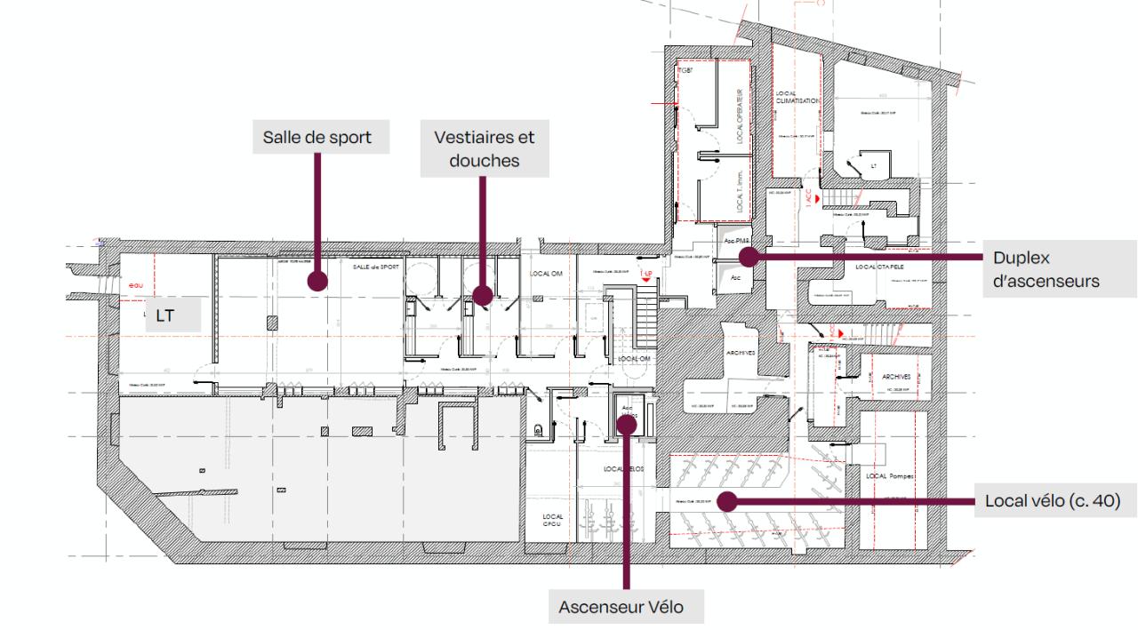
- Vestiaires/douches
- Local vélos de 44 m² au R-1
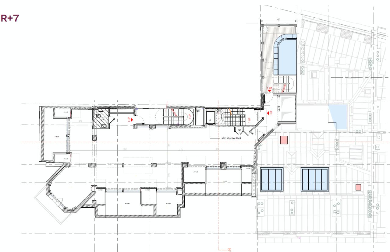
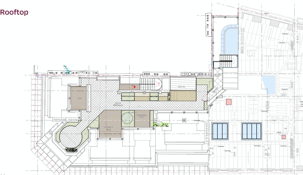
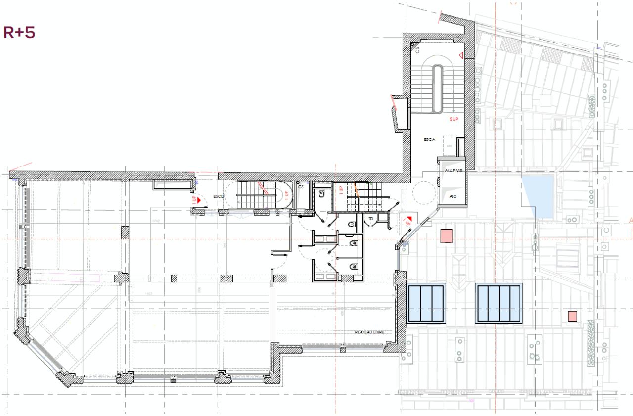
- Terrasse au R+7
- Terrasse au R+8 de 150 m² (effectif 50 personnes)
- Labels et certifications visés : décret tertiaire 2040, Breeam Excellent, WiredScore Gold, Osmoz
Services & prestations
Aménagements
-
Accueil : Hall traversant Rue Le Peletier Rue Chauchat
-
Accès Pers. Mobilité Réduite
-
Aménagement des bureaux : Espaces Ouverts
-
Effectif théorique : 400 personne(s)
-
Hall d'accueil : Indépendant
Equipements
-
Ascenseurs : 2 dont 1 PMR
-
Climatisation
-
Douche : Et vestiaires au sous-sol
-
Eclairage Bureaux : Luminaires encastrés
-
Type de chauffage : Individuel
Hauteurs
-
Hauteur sous-plafond : 3,50
Prestations de service
-
Cafétéria : Workcafé au Rdc
-
Sécurité : Contrôle d'accès
Extérieurs
-
Linéaire de façade : 60,00 mètre(s) sur rue
-
Terrasses - jardins : Rooftop au R+8 et terrasse au R+7 (soit plus de 150 m²)
Normes, Certifications et Labels
-
Certification : BREEAM
Type / Etat du bâtiment
-
Etat de l'immeuble : Restructuré avec PC
-
Immeuble indépendant : Au style Art Déco
-
Orientation façade : RUE & COUR
Informations complémentaires
-
Local vélo au R-1 (rnv. 44 m²)
-
3 accès, 3 adresses possibles (22 rue de Provence, 32 rue Le Peletier, 19 rue Chauchat)










