




2 Rue Lamennais 75008 Paris
2 Rue Lamennais
75008 Paris
3 633 m²
950 €
HT/HC/m²/an
Disponibilité : 01/07/2026

Caroline DE MONCAN
Description
Quartier Central des Affaires, Paris 8ème, à proximité des Champs-Elysées, à l’angle de la rue Washington, au 2 rue Lamennais, nous vous proposons à la location ce bel immeuble indépendant alliant une façade d’architecture récente et une façade haussmannienne en pierre de taille. Il développe une superficie d’environ 3 633 m² de bureaux répartis du rez-de-chaussée au 6ème étage ainsi qu’un entresol et R-1. L'ensemble sera livré entièrement rénové. La surface par niveau comprend une QPPC et services.
Location de bureaux
Quartier Central des Affaires
Paris 8ème
proximité des Champs-Elysées
Métro George V ligne 1
RER A Charles de Gaulle Etoile
bel immeuble indépendant livré entièrement rénové
PRESTATIONS :
Climatisation
Contrôle d'accès
CPCU
Faux plafond
Faux plancher
GTC
Accès PMR
2 Ascenseurs
Grande flexibilité d'aménagement
hauteur sous plafond : 2,60 m
Balcons aux R+2, R+5
Terrasse au R+6
Salles de réunions
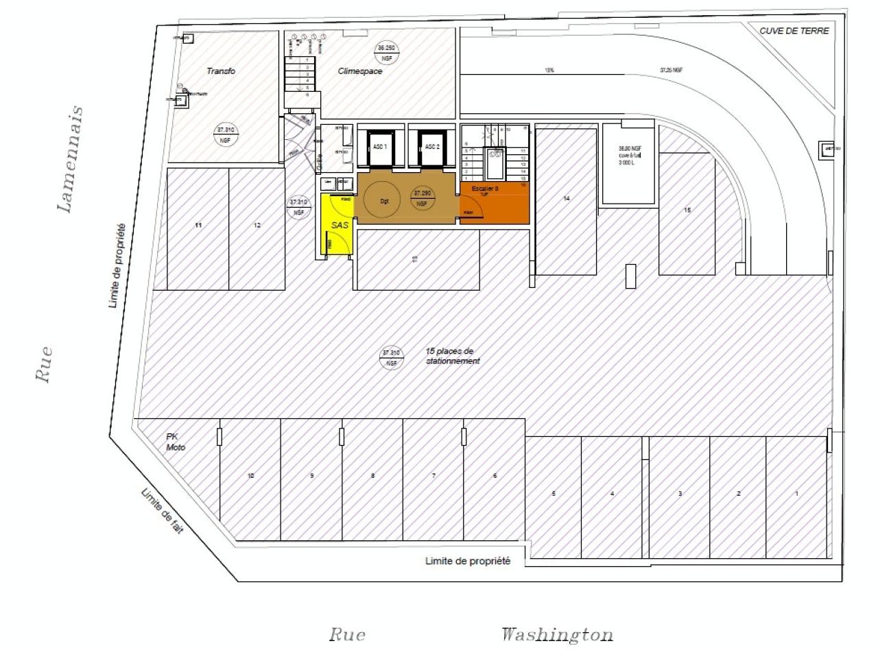
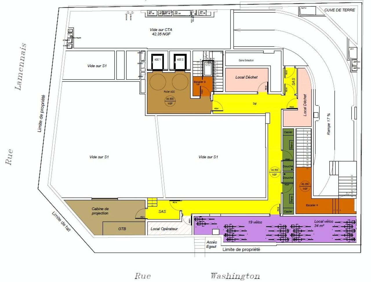
Parkings sous l'immeuble (voitures, 2 roues et vélos)
DISPONIBIITE : Février 2026
Services & prestations
Aménagements
-
Accueil
-
Accès Pers. Mobilité Réduite
-
Aménagement des bureaux : Espaces Ouverts sans aucune contrainte porteuse
-
Auditorium
-
Complexe Salle de réunion : Au RDCB et 1SS
-
Effectif théorique : 500 personne(s)
Equipements
-
Ascenseurs : 2
-
Climatisation : Réversible (120W/m²) et renouvellement d'air 30 m3 h/pers (base 7 m3/pers)
-
Faux plafond
-
Faux plancher : 7,00 cm entre 5 et 7 cm
-
Groupe électrogène : 300 kVA
-
Production climatisation : Réseau urbain Climespace
-
Source chauffage : Géothermie CPCU
Hauteurs
-
Hauteur sous-plafond : 2,60
Prestations de service
-
Parking : 2 Places, 24 Places, 34 Places Entresol
-
Sécurité : Vidéo-surveillance
Extérieurs
-
Terrasses - jardins : Balcons R+2 et R+5, Cour privative, Terrasse R+6
Normes, Certifications et Labels
-
Certification : BREEAM
Type / Etat du bâtiment
-
Etat de l'immeuble : Rénové
-
Etat des locaux : Etat d'usage, Rénové
-
Immeuble indépendant : R+6










