




60 Rue de la Chaussée d'Antin
75009 Paris
2 264 m²
Divisible dès 1 000 m²
820 €
HT/HC/m²/an
Disponibilité : Immédiate

Olivier MACON
Description
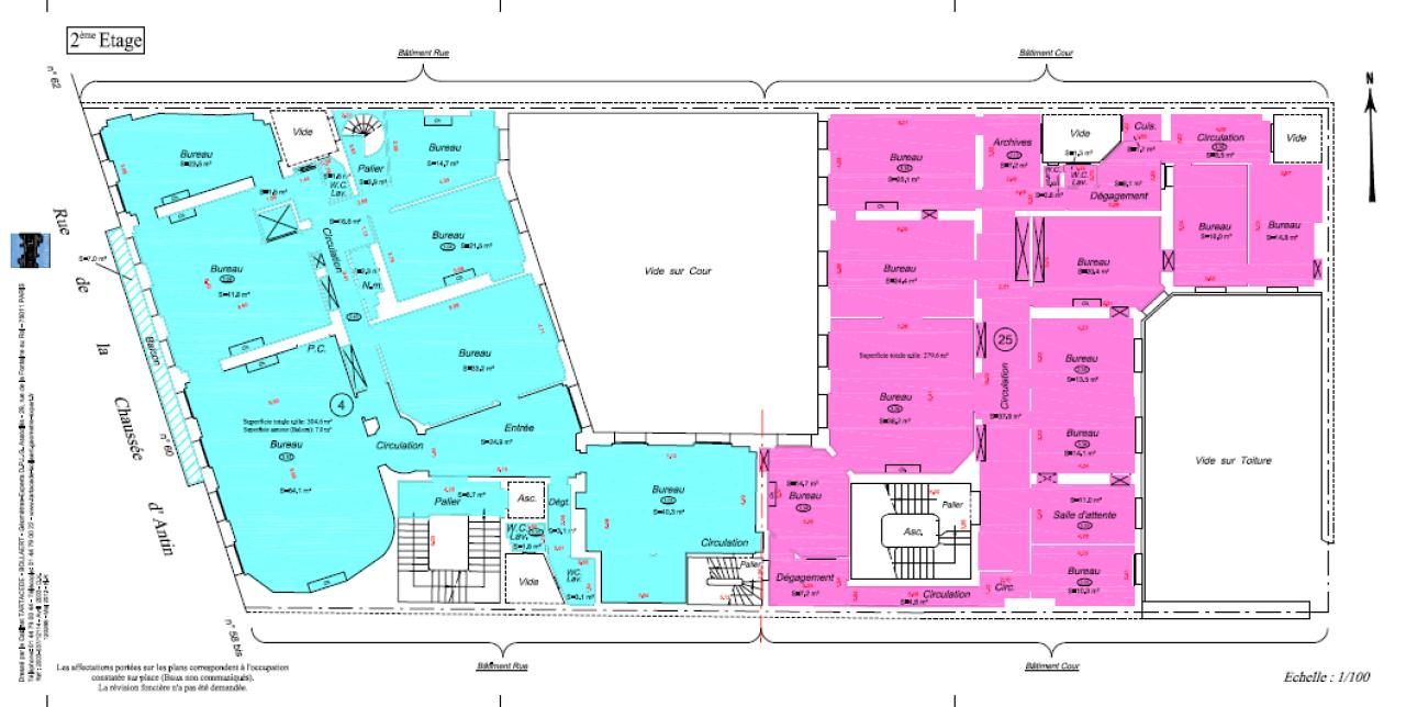
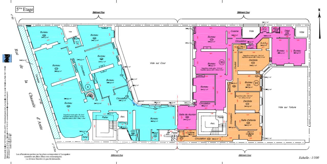
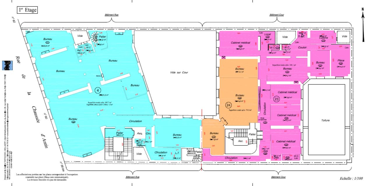
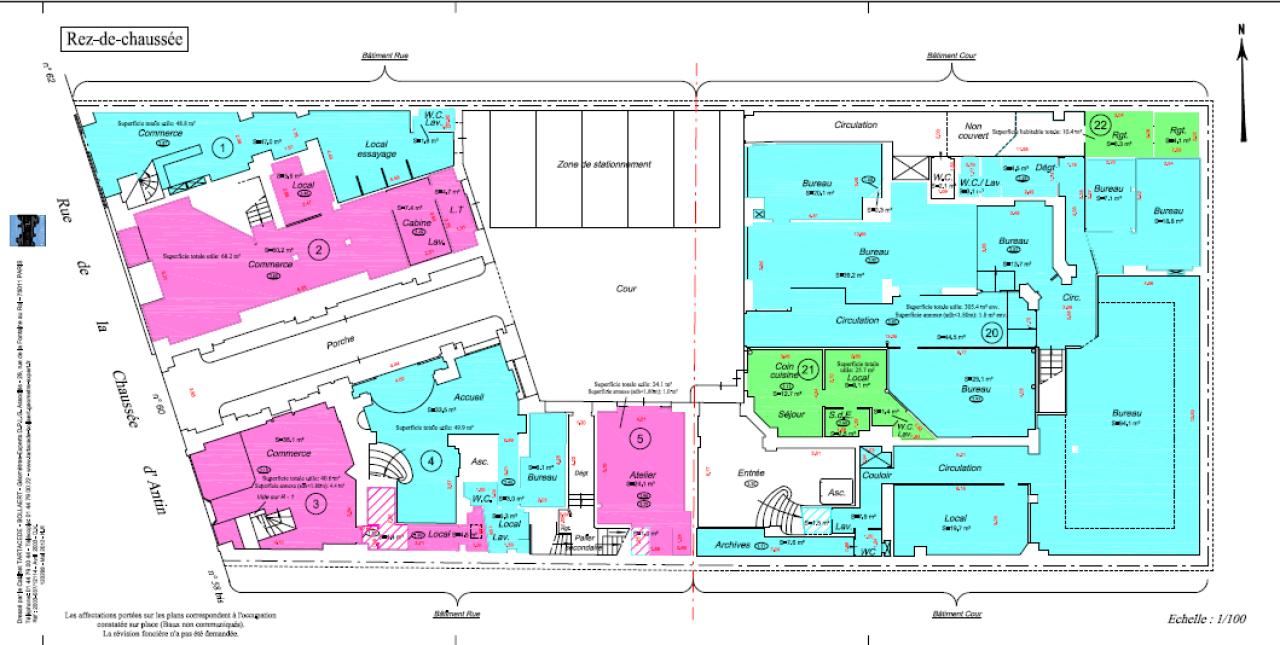
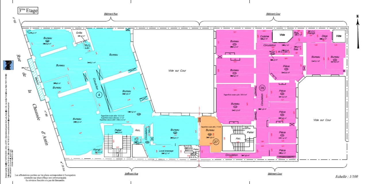
Quartier Central des Affaires, à proximité de la place d’Estienne d’Orves, entre la rue de la Victoire et la rue de Provence, nous vous proposons ce bel immeuble haussmannien indépendant et développant au total 2 264 m² composés de 2 bâtiments répartis du rez-de-chaussée au R+6 sur rue ainsi qu’un rez-de-chaussée sur cour de 331 m². L’ensemble sera livré rénové.
Dans le cadre de la rénovation, il est prévu de viser l’obtention de certifications/labels type BREEAM, pour améliorer les qualités énergétiques du bâtiment et optimiser les surfaces locatives.
- Belle façade haussmannienne
- Plateau courant d’environ 300 m² offrant de beaux volumes
- Belles Hauteur sous plafond
- Parquets, moulures, cheminées selon les étages
- Climatisation - chauffage CPCU
- Faux plafonds selon les étages
- Un ascenseur PMR
- Bel escalier d’honneur
- RDC sur cour : 331 m² avec salle polyvalente sous verrière
- Effectif : 300 personnes
- 3 emplacements de parkings dans la cour
- Local vélos
- Vestiaires
Services & prestations
Aménagements
-
Aménagement des bureaux : Espaces Ouverts 1 grand open
-
Effectif théorique : 300 personne(s)
Equipements
-
Ascenseurs
-
Climatisation : Réversible
-
Câblage informatique : Existant
-
Douche : Fitness/vestiaires
-
Eclairage Bureaux : Lumineux
-
Sol bureaux : Parquet
-
Type de chauffage : Urbain CPCU
Prestations de service
-
Fitness : Douches/vestiaires
-
Sécurité : Contrôle d'accès
Extérieurs
-
Linéaire de façade : 5,00 mètre(s)
Type / Etat du bâtiment
-
Etat des locaux : Rénové
-
Orientation façade : SUR RUE
-
Type d'immeuble : Pierre de taille
Informations complémentaires
-
Double vitrage, Moulures,cheminées
-
Contrôle d'accès










