




8 Rue Lamartine
75009 Paris
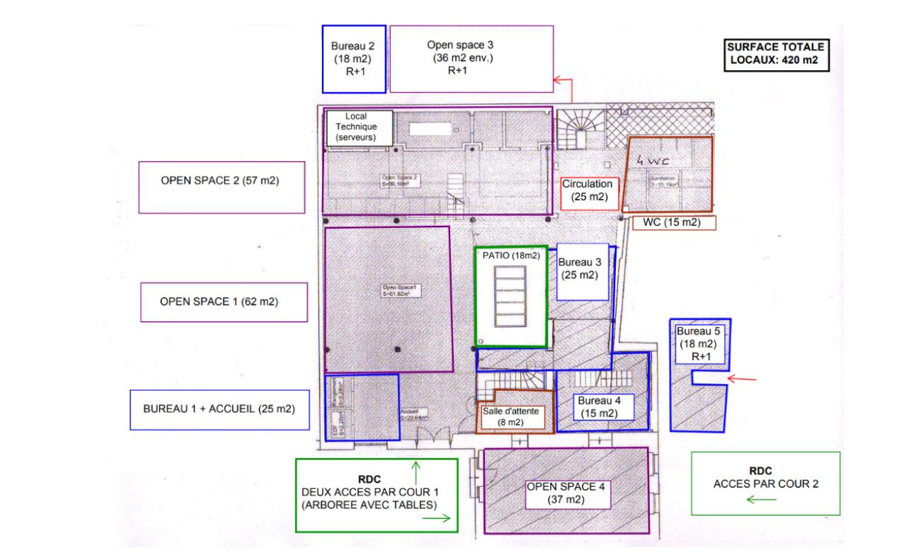
420 m²
500 €
HT/HC/m²/an
Disponibilité : Immédiate

Alexia DE LAMBILLY
Description
Nous vous proposons des locaux à la location ERP de 420 m², disponible immédiatement. Les bureaux sont situés dans une cour calme proche de la rue des martyrs. La surface est climatisée, open-space et bureaux cloisonnés.
Type de bail : 3/6/9 ans ou bail dérogatoire avec possibilité d'avoir du mobilier (tables et chaises).
Sanitaires dont un PMR, mix open space et bureaux cloisonnées, mezzanines autour d'un patio central/terrasse, 2 salles de réunion en sous sol dont une éclairée par un puit de lumière, 1 douche.
Services & prestations
Type / Etat du bâtiment
-
Etat de l'immeuble : Etat d'usage
-
Orientation façade : RUE & COUR
Informations complémentaires
-
Mix open space - bureaux cloisonnés - mezzanines autour d'un patio central/terrasse
-
Bureaux cloisonnés | Climatisation réversible |ERP |Espace d'accueil |Espaces ouverts |Fibre optique
-
2 salles de réunion en sous-sol dont une éclairée par un large puit de lumière Coin cuisine, Sanitaires dont 1 PMR Triple accès Flexibilité d'aménagement Climatisation réversible










