




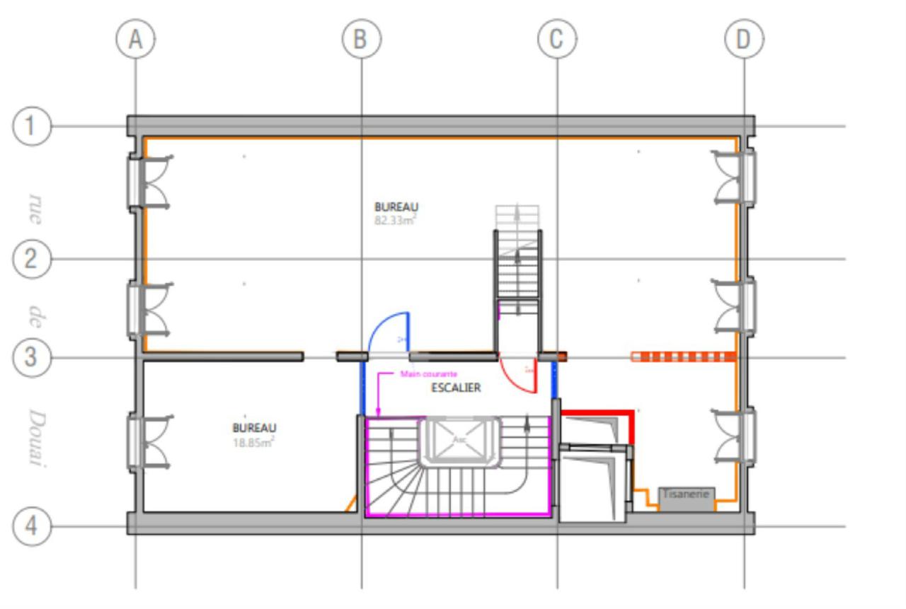
Location Bureau 861 m²
75009 Paris
861 m²
700 €
HT/HC/m²/an
Disponibilité : 1 mois après accord

Alice GINOLHAC
Description
BNPPRE vous propose un hôtel particulier de bureaux indépendant et plug & Play restructuré et climatisés il y a 1 an. Cet immeuble est organisés en open space, salles de réunion, espace détente et dispose d’une grande verrière ainsi que d’espaces extérieurs aménagés.
Services & prestations
Aménagements
-
Accès Pers. Mobilité Réduite
-
Espace bien-être : Salle de sport accessible au sous-sol (4 machines)
Equipements
-
Climatisation : Réversible
-
Câblage informatique : Fibre optique
-
Sol bureaux : Parquet
Type / Etat du bâtiment
-
Type d'immeuble : Hôtel particulier indépendant
Informations complémentaires
-
Espaces extérieurs privatifs, Immeuble plug & play, Parties communes de très bon standing, Possible reprise du mobilier à l’euro symbolique
-
Locaux en excellent état, Verrières










