




61 Avenue de Tavaux
21800 Chevigny-Saint-Sauveur
826 m²
73 €
HT/HC/m²/an
Disponibilité : Immédiate

Edouard CHADAN
Description
DIJON EST -
CHEVIGNY SAINT SAUVEUR
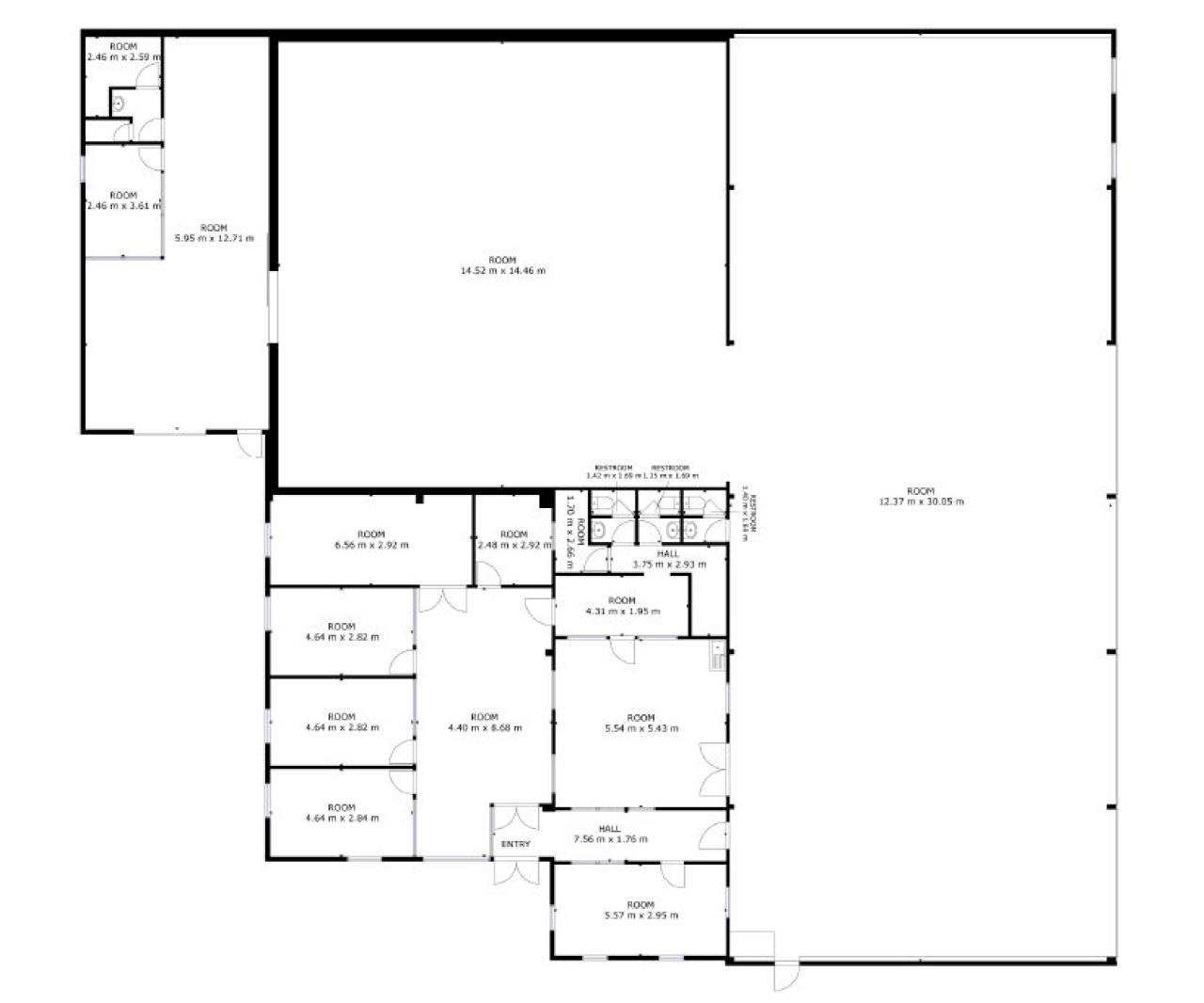
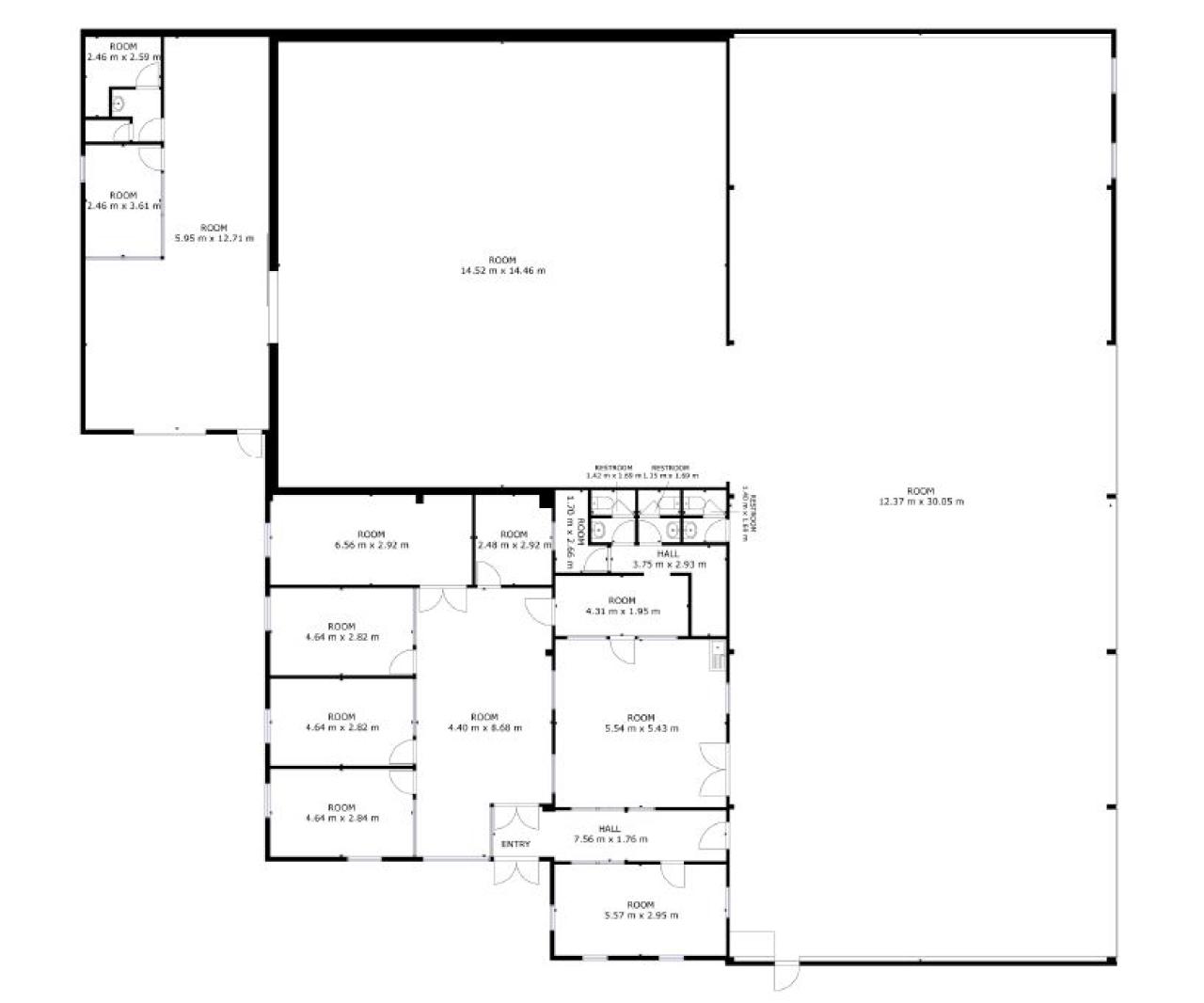
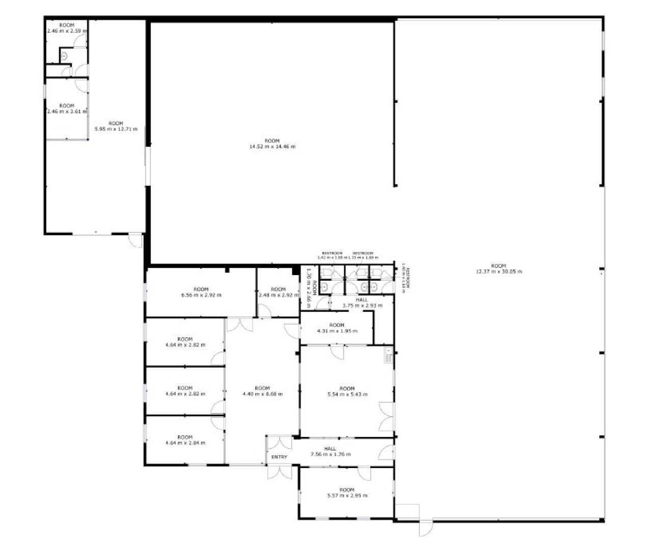
Sur un terrain de 5.169 m², 826 m² env. comprenant entrepôt et bureaux.
Dans un bâtiment au coeur de la zone industrielle Excellence 2000 à CHEVIGNY SAINT SAUVEUR, une surface de 826 m² env. à la location, édifié sur un terrain de 5.169 m² env.
Ce bâtiment est composé d'une partie entrepôt de 641 m² env. et d'une partie bureaux de 185 m² env.
La partie entrepôt comprend un quai de chargement et 4 portes sectionnelles de plain-pied.
Accessibilité :
- Réseau de bus urbain DIVIA : L7 arrêt Pasteur à 15 minutes
- Rocade à proximité immédiate
Services & prestations
Accès véhicules
-
Accessibilité type véhicules : Tous porteurs
Equipements
-
Eclairage Bureaux : Luminaires encastrés
-
Eclairage intérieur : Rampes tubes fluo.
-
Faux plafond : Dal. fibres minéral.
-
Porte d'accès plain-pied : 4
-
Porte d'accès à quai : 1
-
Sol bureaux : Moquette / thermoplastique
-
Sols du bâtiment : Béton
Type / Etat du bâtiment
-
Immeuble indépendant
Structure du bâtiment
-
Charpente : Métallique
-
Couverture : Bac acier non isolé + panneaux sandwich
-
Murs : Bardage simple peau + panneaux sandwich
Aménagements
-
Aménagement des bureaux : Cloisonnés/Ouverts
-
Sanitaires : Privatif(s)
Extérieurs
-
Aire de manoeuvre
-
Aire de stockage extérieure
Informations complémentaires
-
Terrain de 5.169 m² environ










