




20 RUE DU PONT NEUF
75001 Paris
166 m²
512 €
HT/HC/m²/an
Disponibilité : Immédiate

Alexia DE LAMBILLY
Description
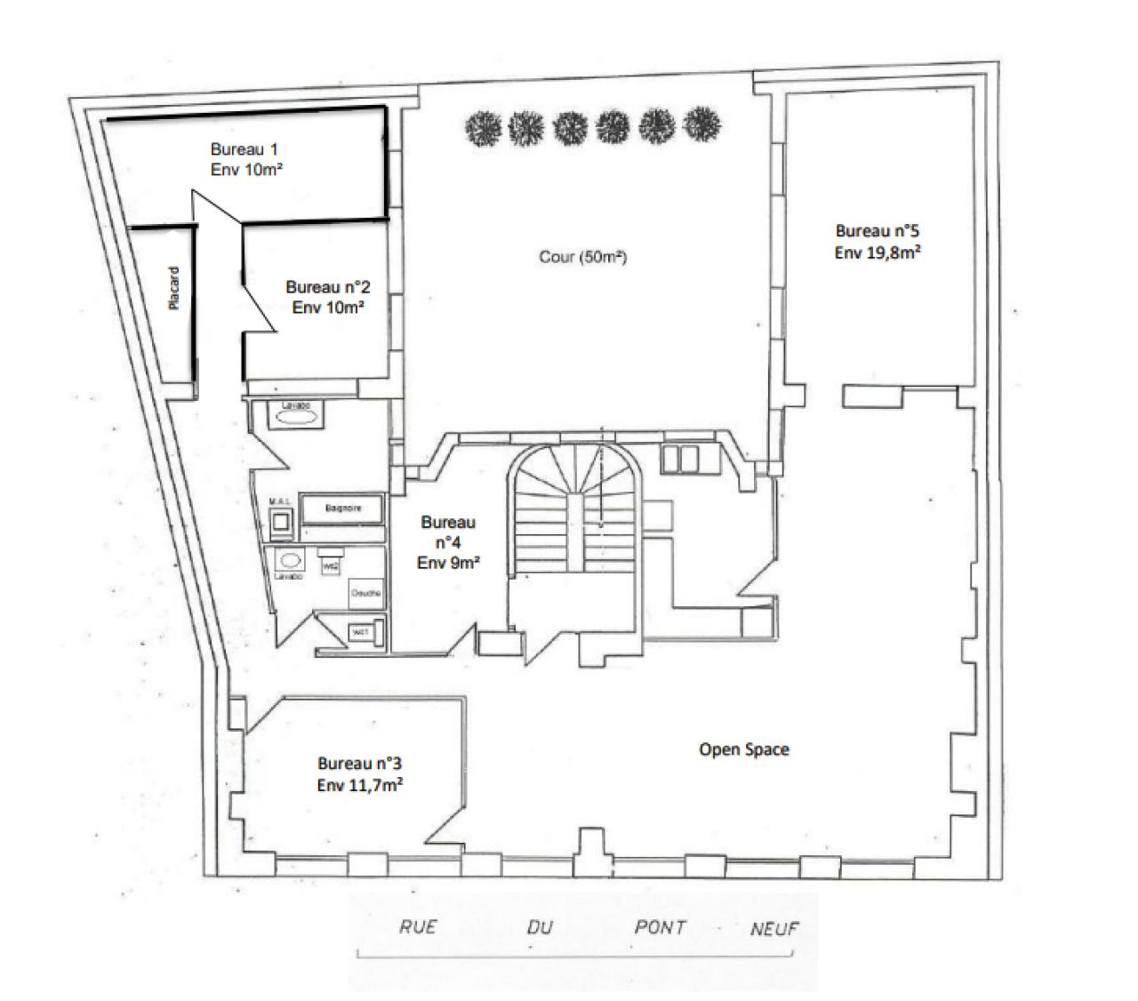
BNPPRE vous propose à la location un plateau de bureaux d’une surface de 153,7 m² au R+1 agrémenté d’une terrasse privative de 46m² et d'un cave de 11,5m².
Bail professionnel uniquement.
Services & prestations
Type / Etat du bâtiment
-
Etat des locaux : Etat d'usage Bon
-
Orientation façade : SUR RUE
Informations complémentaires
-
- 1 open space - 5 bureaux - 1 cuisine - 2 sanitaires - 1 salle de bains - 1 salle de douche, - Bel immeuble - Plateau en très bon état - Parquet d’origine, cuisine équipée - Accès sécurisé - Terrasse privative de 50m² - 1 cave










