




5 RUE ETIENNE MARCEL
75001 Paris
99 m²
660 €
HT/HC/m²/an
Disponibilité : Immédiate

Elliott KASBY
Description
Loft industriel - Bureaux
Au sein d'un bel immeuble , BNP Paribas RE vous propose une superbe surface de bureaux à louer très lumineuse, de type loft industriel.
Taxe foncière comprise dans le loyer et exonération de taxe bureaux.
Atypique et plein de charme.
Taxe foncière inclus dans le loyer. Exonéré de taxe bureaux.
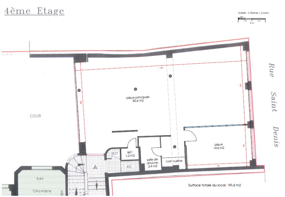
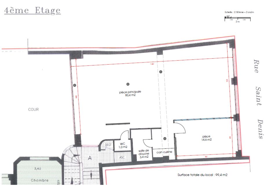
Distribution des locaux :
Un très grand open-space
Une salle de réunion
Une cuisine équipée
2 sanitaires
Cabine de douche
Très bonne flexibilité d'aménagement, surface efficace.
Récemment rénovée, excellent état général.
Belle exposition (Est-Ouest) Locaux traversants.
Flexibilité de contrat :
Bail commercial / Bail professionnel ou dérogatoire
Services & prestations
Aménagements
-
Aménagement des bureaux : 1 bureau + 1 open space
-
Sanitaires : Privatif(s)
Equipements
-
Ascenseurs : 1
-
Distribution chauffage
-
Douche
-
Fenêtres
-
Sol bureaux : Parquet
-
Source chauffage : Electrique
-
Type de chauffage : Individuel
Type / Etat du bâtiment
-
Etat de l'immeuble : Etat d'usage
-
Etat des locaux : Etat d'usage Très bon
-
Immeuble copropriété
Informations complémentaires
-
Kitchenette










