




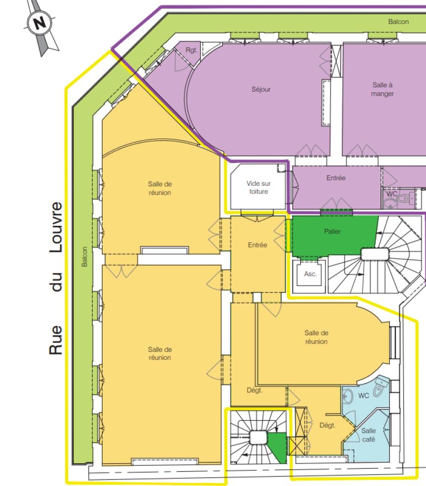
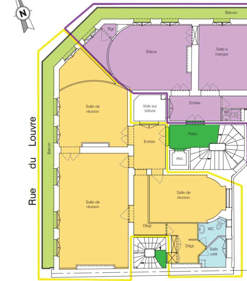
Location Bureau 314 m²
75001 Paris
314 m²
Divisible dès 114 m²
Loyer sur demande
Disponibilité : 01/04/2026

Alexia DE LAMBILLY
Description
Dans un immeuble standing, nous vous proposons une surface de 108 m² au 4ème étage. La surface lumineuse dispose d'un balcon filant, d'une vue dégagée, 3 bureaux (possibilité d'en avoir 4), une cuisine. Disponibilité début d'année après travaux (remise en peinture, remplacement de la moquette par du parquet, révision de l’installation électrique (courants forts), rénovation des sanitaires et de la cuisine, révision des menuiseries). Possibilité d'avoir une cave dans l'immeuble.
Services & prestations
Aménagements
-
Accueil
-
Aménagement des bureaux : Cloisonnés/Ouverts Open et bureaux doubles
-
Complexe Salle de réunion
Equipements
-
Ascenseurs : 1
-
Climatisation : Réversible
-
Câblage informatique
-
Type de chauffage : Individuel
Prestations de service
-
Parking : Moins de 5mn à pied
Type / Etat du bâtiment
-
Etat de l'immeuble : Etat d'usage
-
Etat des locaux : A rénover
-
Orientation façade : SUR RUE
Informations complémentaires
-
Cuisine
-
Locaux livrés rafraichis
-
Bureaux en 1er jour










