




25 RUE COQUILLIERE
75001 Paris
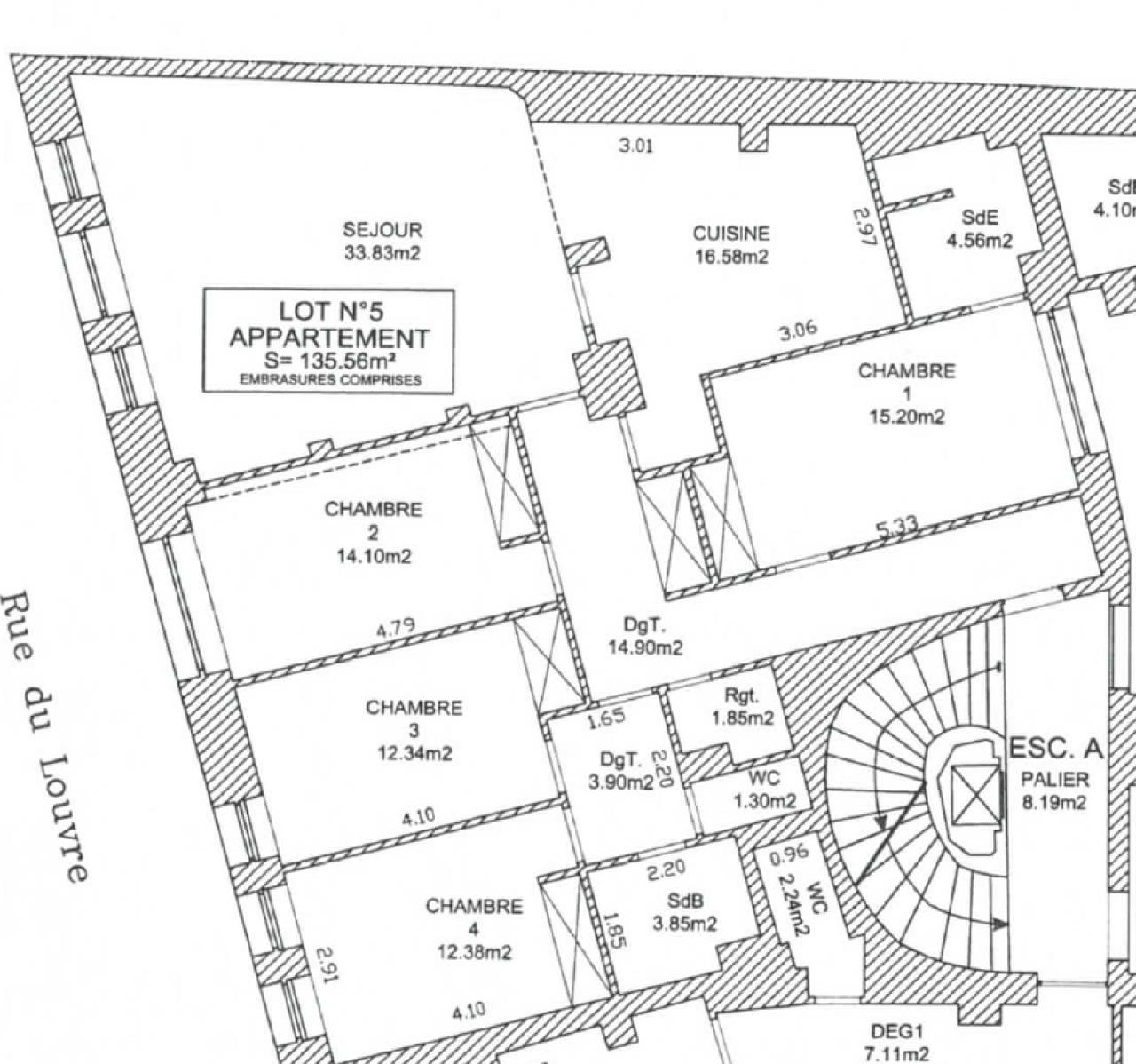
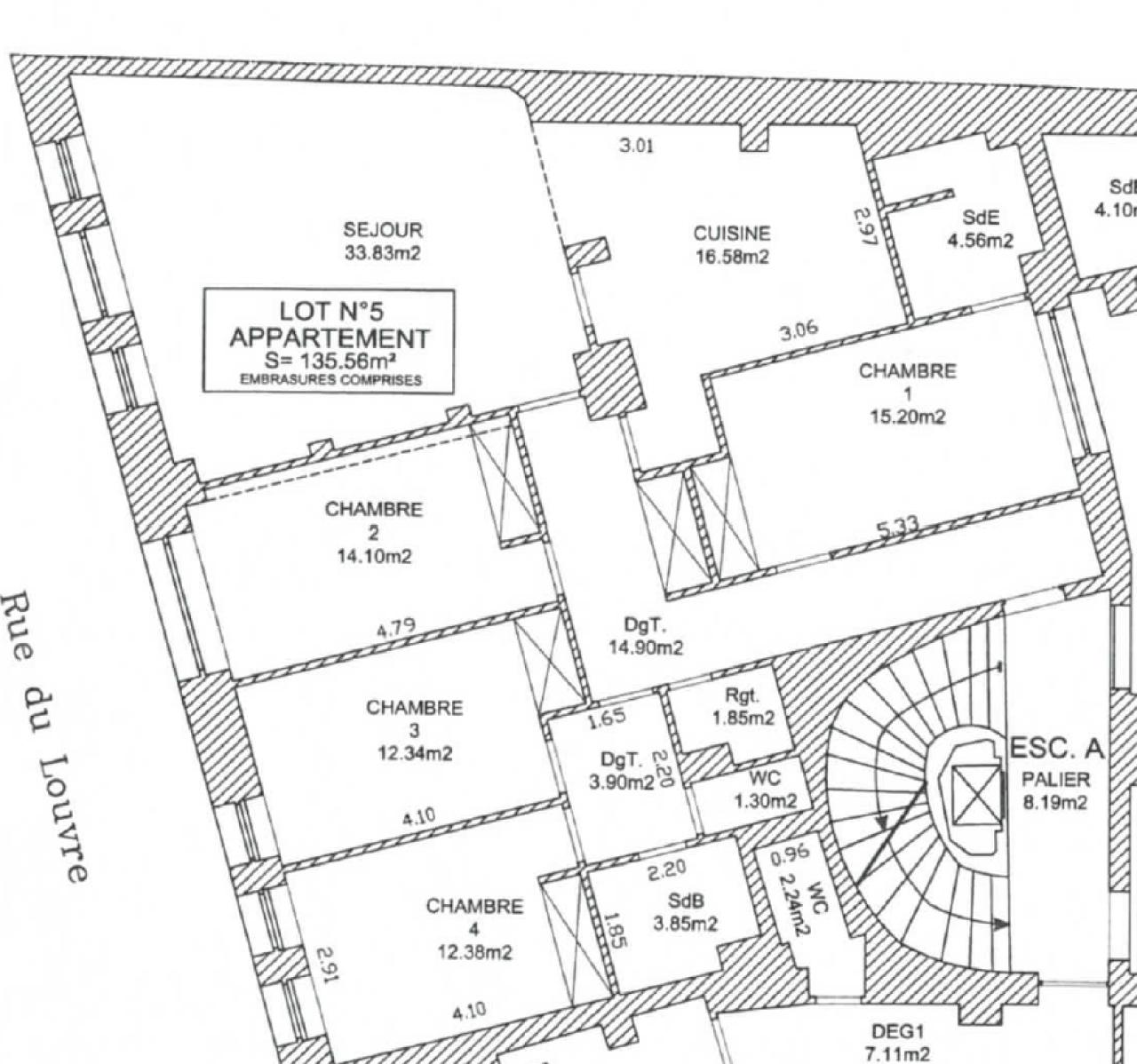
135 m²
450 €
HT/HC/m²/an
Disponibilité : Immédiate

Elliott KASBY
Description
BNP PRE vous propose à la location des bureaux en bail professionnel au sein d'un bel immeuble Haussmannien en plein coeur de Paris. Idéal profession libérale, prix particulièrement attractif. Prestigieux, fonctionnel, luminosité agréable, excellent confort au quotidien.
Espace accueil/réception
5 espaces de travail
1 grande salle de réunion/open-space
2 salle de bains
1 coin cuisine
2 sanitaires
Services & prestations
Aménagements
-
Sanitaires : 2 Privatif(s) + 2 salles de bain
Equipements
-
Ascenseurs
-
Sol bureaux : Parquet
-
Source chauffage : Gaz
-
Type de chauffage : Individuel
Prestations de service
-
Sécurité : Contrôle d'accès
Type / Etat du bâtiment
-
Orientation façade : SUR RUE
Informations complémentaires
-
Cuisine










