




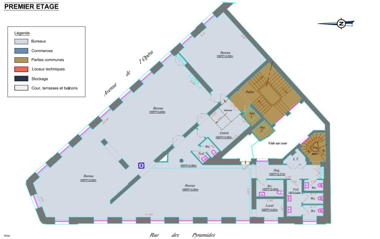
Location Bureau 383 m²
75001 Paris
383 m²
925 €
HT/HC/m²/an
Disponibilité : Immédiate

Alexis UNOULE
Description
19 Opéra
Située au cœur de la prestigieuse avenue de l'Opéra, nous vous proposons 1 magnifique étage de bureaux de 383m² dans un immeuble aux prestations de très haut standing.
Les locaux ont été entièrement rénovés par le propriétaire (remise en peinture, décloisonnement, remplacement de l'intégralité des faux plafond, installation d'un faux plancher, CVC CFO à neuf, Bloc sanitaires neufs. GTB, revêtement sol à charge preneur)
Les parties communes ont également été rénovées :
Création d'un espace commun au RDC avec offre de restauration connectée
Mise aux normes PMR (ascenseurs et rampe d'accès)
Végétalisation de la cour intérieure
Installation de racks à vélos en sous-sol
Locaux d'archives disponibles
A visiter sans tarder !
Services & prestations
Aménagements
-
Accueil
-
Complexe Salle de réunion : 1 salle(s)
Equipements
-
Ascenseurs : 2
-
Climatisation : Réversible
Prestations de service
-
Sécurité : Vidéo-surveillance
Type / Etat du bâtiment
-
Etat de l'immeuble : Rénové Locaux entierrement rénovés
-
Type d'immeuble : Type Haussmannien/Pierre de T.










