




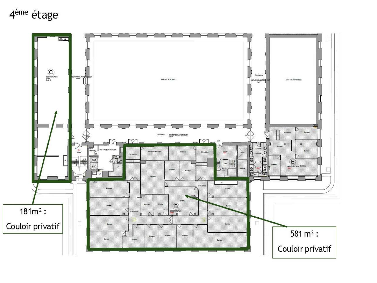
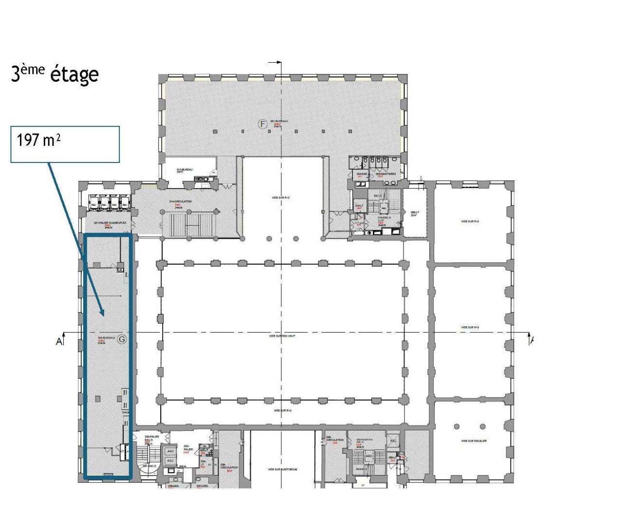
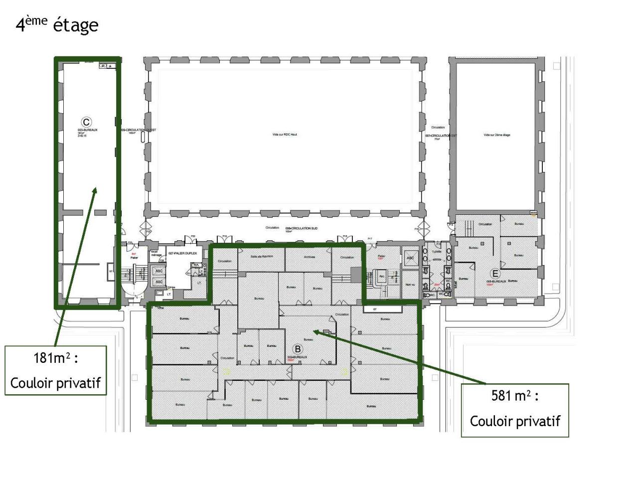
Location Bureau 1 114 m²
75002 Paris
1 114 m²
Divisible dès 155 m²
600 €
HT/HC/m²/an
Disponibilité : 01/07/2026

Nicolas MOURAUD
Description
EXCLUSIVITE - Au coeur du silicon Sentier et de l'emblématique palais Brongniart BNP Paribas Real Estate vous propose à la location plusieurs surfaces de bureaux flexibles et climatisées.
Parking public et métro au pied de l'immeuble.
Services & prestations
Aménagements
-
Aménagement des bureaux : Surface flexible
-
Salle informatique
-
Sanitaires : 4 Privatif(s)
Equipements
-
Ascenseurs : 1
-
Climatisation : Partielle
-
Faux plafond : Dal. fibres minéral.
-
Plinthes techniques périphériques
-
Sol bureaux : Dls.thermoplastiques
-
Type de chauffage : Individuel
Prestations de service
-
Parking : Au pied du Palais Brongniart
-
Sécurité : Contrôle d'accès Accès sécurisé - PC sécurité 24/24










