




43 Bd Haussmann
75009 Paris
150 m²
653 €
HT/HC/m²/an
Disponibilité : Immédiate

Nicolas MOURAUD
Description
Secteur Opera - Galeries La Fayette
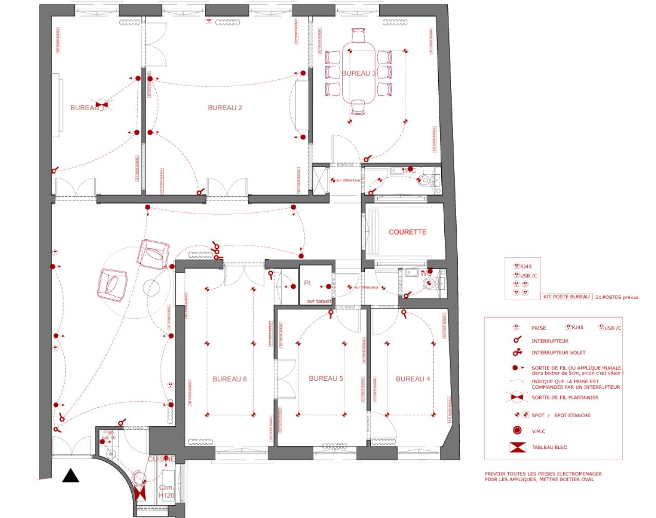
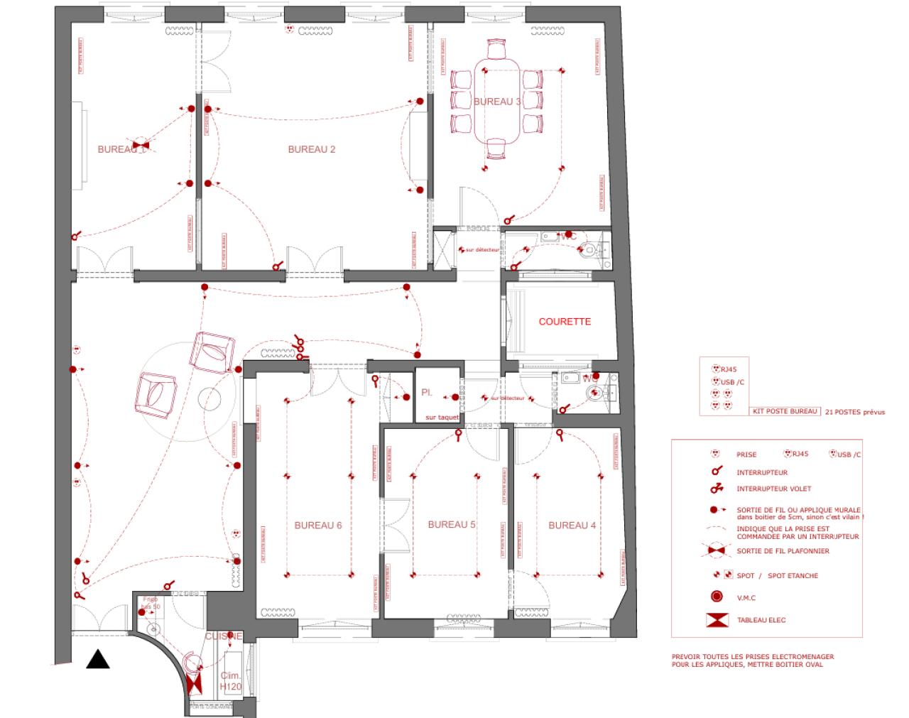
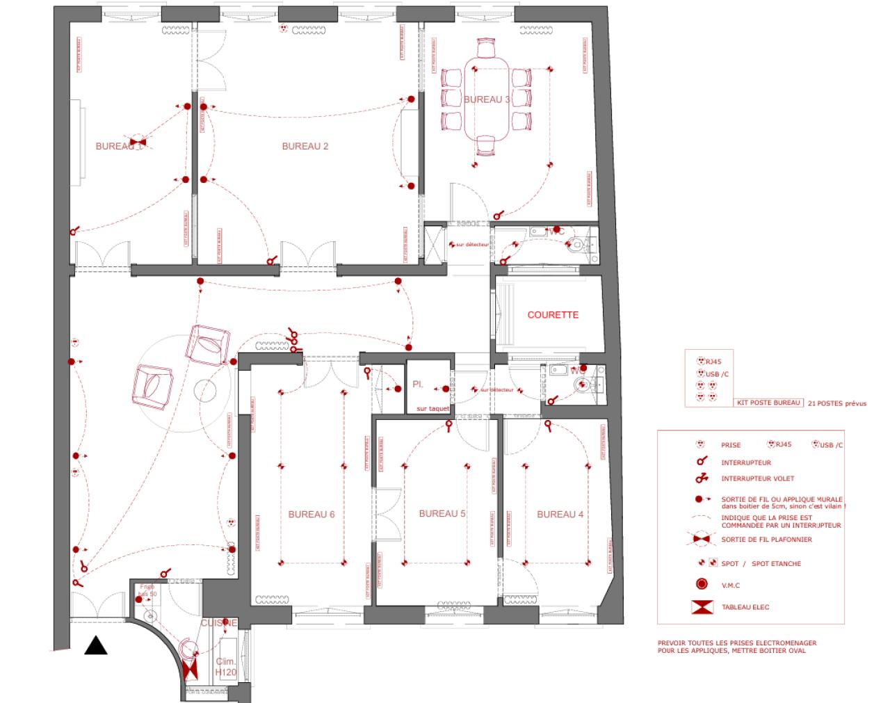
BNP Paribas Real Estate vous propose à la location au sein d'un immeuble haussmannien, une surface de bureaux rénovée et climatisée, composée d'une entrée, 6 bureaux et une cuisine.
Accès sécurisé et gardien.
Prestations immeuble :
Accès sécurisé (Vigik, digicode et gardien)
Ascenseur
Fibre optique
Prestations bureaux :
Surface de bureaux rénovée
Parquet flottant - Moulures/faux plafond
Cuisine
2 sanitaires
Chauffage collectif
Climatisation
Belle hauteur sous plafond
Services & prestations
Aménagements
-
Salle informatique
-
Sanitaires : 2
Equipements
-
Ascenseurs : 1
-
Climatisation
-
Plinthes techniques périphériques
-
Sol bureaux : Parquet
-
Type de chauffage : Collectif
Hauteurs
-
Hauteur sous-plafond : Belle hauteur sous plafond
Prestations de service
-
Parking : Au pied de l'immeuble
-
Sécurité : Contrôle d'accès Interphone + Vigik + gardien
Informations complémentaires
-
Moulures et cheminées
-
Cuisine
-
Surface rénovée










