




31bis Rue Bergère
75009 Paris
2 108 m²
850 €
HT/HC/m²/an
Disponibilité : 30/06/2026

Gregory ASSARAF
Description
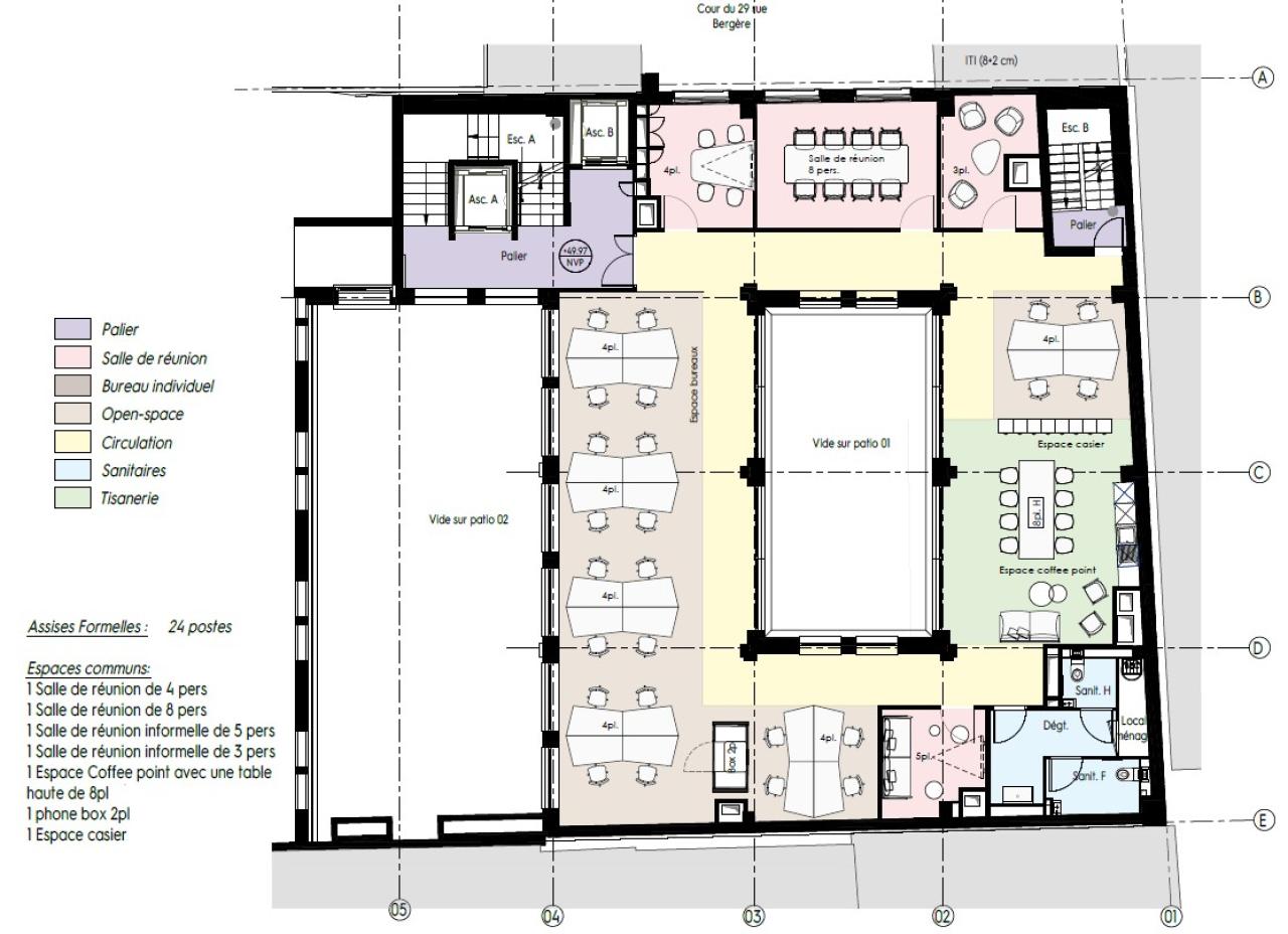
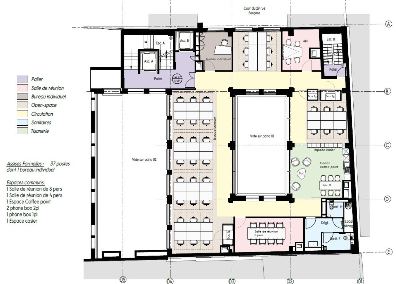
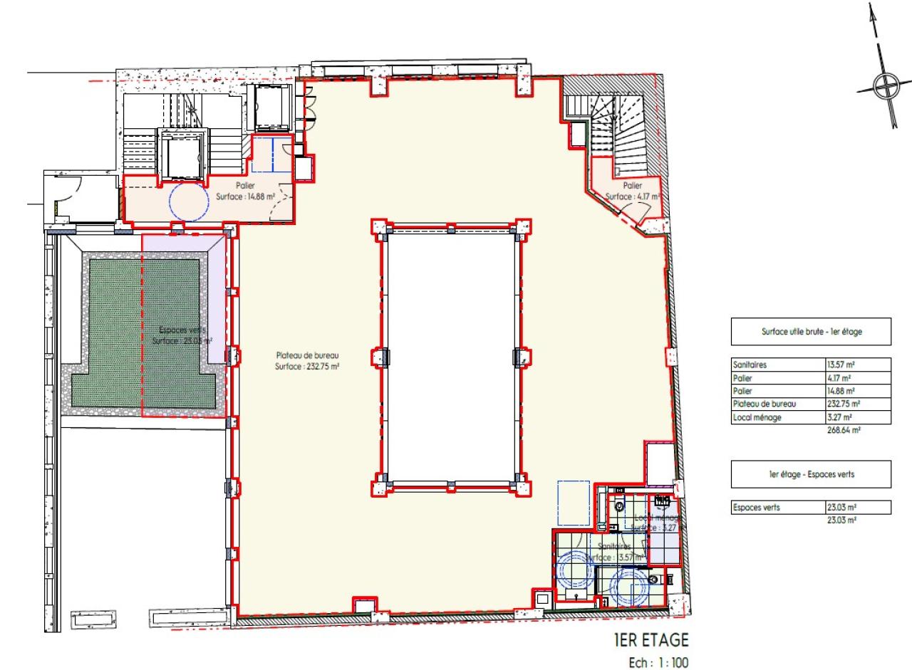
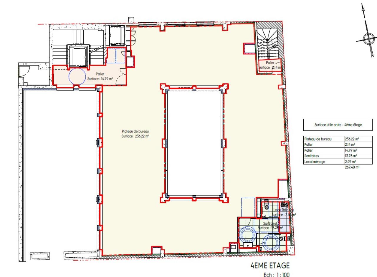
Au cœur du 9ème arrondissement, à toute proximité des Grands Boulevards, nous vous proposons à la location un immeuble indépendant en cours de restructuration développant environ 2 108 m² de bureaux répartis sur un rez-de-chaussée et 6 étages ainsi que 22 m² environ d’archives réparties aux R-1 et R-2. Beau rooftop.
Paris 9ème
Proximité Grands Boulevards
2 181 m² environ de bureaux et archives
Immeuble indépendant
22 parkings en sous-sols (R-2 et R-3)
Disponibilité : nous consulter
Services & prestations
Type / Etat du bâtiment
-
Etat de l'immeuble : Restructuré avec PC
-
Etat des locaux : Restructuré avec PC
-
Immeuble indépendant
Informations complémentaires
-
Archives : 125 m²










