




ICONE OPERA
21 Boulevard Haussmann
75009 Paris
2 517 m²
Divisible dès 1 088 m²
à partir de 920 €
HT/HC/m²/an
Disponibilité : 01/01/2027

Olivier MACON
Description
Quartier Central des Affaires, à proximité immédiate de l'Opéra, au sein de cet immeuble emblématique du 9ème arrondissement "Icône Opéra", nous vous proposons à la location deux plateaux de bureaux situés au 1er et 5ème étage. Les bureaux seront livrés entièrement rénovés pour Janvier 2027. Le socle de services de l'immeuble a fait l'objet d'une rénovation complète récente.
LOCATION DE BUREAUX
Quartier Central des Affaires
Paris 9ème
Boulevard Haussmann
Une adresse centrale, vivante et ultra connectée
Sa proximité avec l'Opéra Garnier en fait un actif incontournable sur un secteur en plein essor.
Un superbe immeuble haussmannien alliant élégance et efficacité
15.000 m² de bureaux
De beaux volumes avec une belle hauteur sous plafond et lumière naturelle
Près de 1 000 m² de services (dont 360 m² dédiés au coworking au rez-de-chaussée & 1er étage et 350 m² dédiés au bien-être)
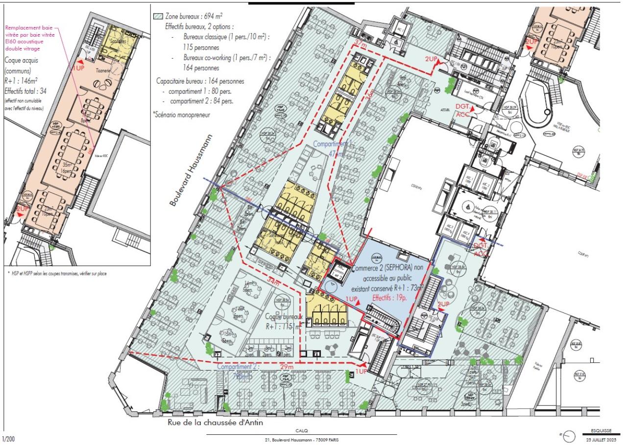
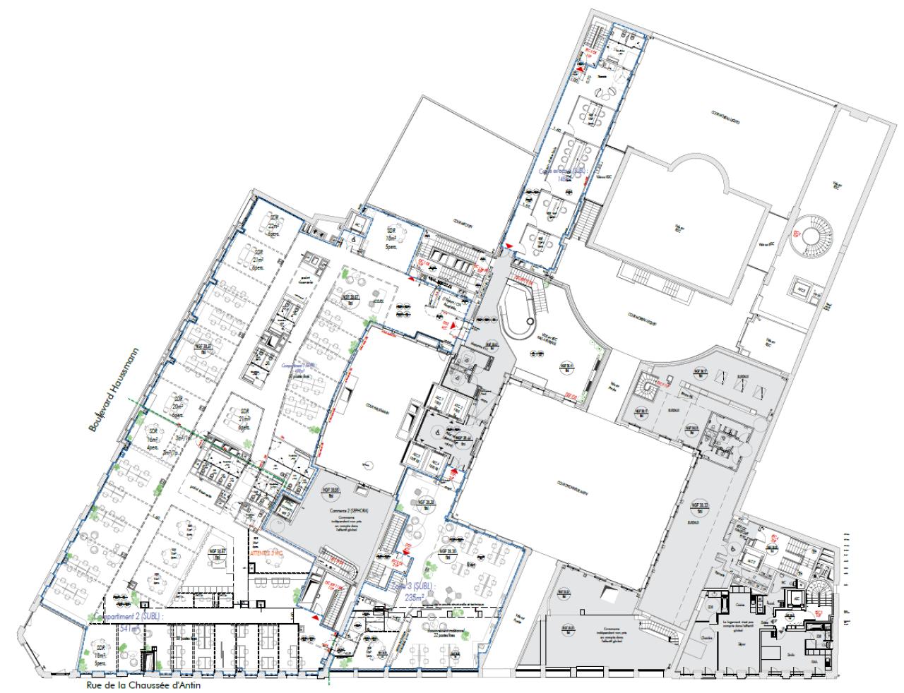
2517 m² de bureaux à louer
1er et 5ème étage
DIVISIBLES
Bureaux livrés rénovés
Disponibilité : JANVIER 2027
Services & prestations
Aménagements
-
Accueil : Hôtesses
-
Aménagement des bureaux : Espaces Ouverts
-
Effectif théorique : 225 personne(s) 190 R+2 et 35 R+5
-
Espace bien-être
-
Espaces Co-working
-
Hall d'accueil : Collectif, Indépendant 350m2 avec double hauteur
Equipements
-
Ascenseurs : 4
-
Climatisation : Réversible
-
Gestion technique centralisée
-
Monte-charge : 1, 2 1000kg
-
Type de chauffage
Hauteurs
-
Hauteur sous-plafond : 2,70
Prestations de service
-
Conciergerie
-
Fitness
-
Parking : 10 Places en sous-sol, 17 Places intérieur RDC, 177 Places
-
Sécurité : Contrôle d'accès, Vidéo-surveillance, Vidéo-surveillance et interphonie
Extérieurs
-
Façade d'angle : Bld Hausmann et rue d'Antin
-
Terrasses - jardins : Cours aménagées intérieures
Normes, Certifications et Labels
-
Certification : BREEAM
Type / Etat du bâtiment
-
Etat de l'immeuble : Restructuré avec PC
-
Etat des locaux : Rénové
-
Immeuble indépendant : Pierre de taille
-
Orientation façade : SUR RUE
-
Type d'immeuble
Informations complémentaires
-
16 bornes électriques pour VE, Accès secondaire Rue de la Chaussée d'Antin










