




28 Rue de Châteaudun
75009 Paris
985 m²
Divisible dès 135 m²
à partir de 746 €
HT/HC/m²/an
Disponibilité : 01/09/2026

Alexia DE LAMBILLY
Description
Au sein d'un bel immeuble de bureaux, nous vous proposons des surfaces en sous-location loyer TOUT compris:
R+1 : 430m² à 26 250€ HT/mois et charges incluses, actuellement 13 bureaux avec 76 postes
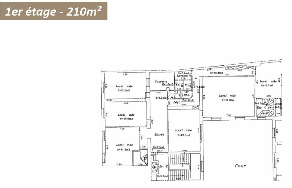
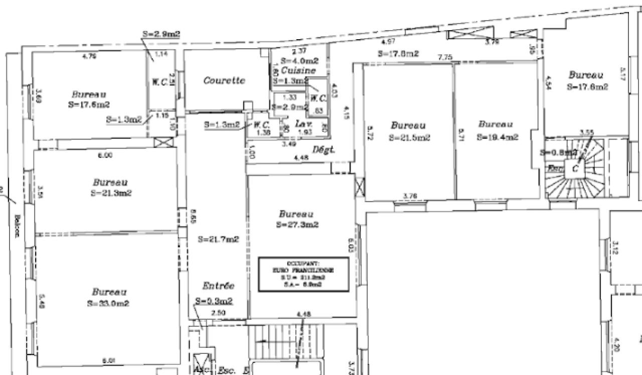
R+1 : 210m² à 13 125 € HT/mois, actuellement 6 bureaux avec 38 postes
R+2: 210m² à 13 650 € HT/mois actuellement 4 bureaux avec 35 postes
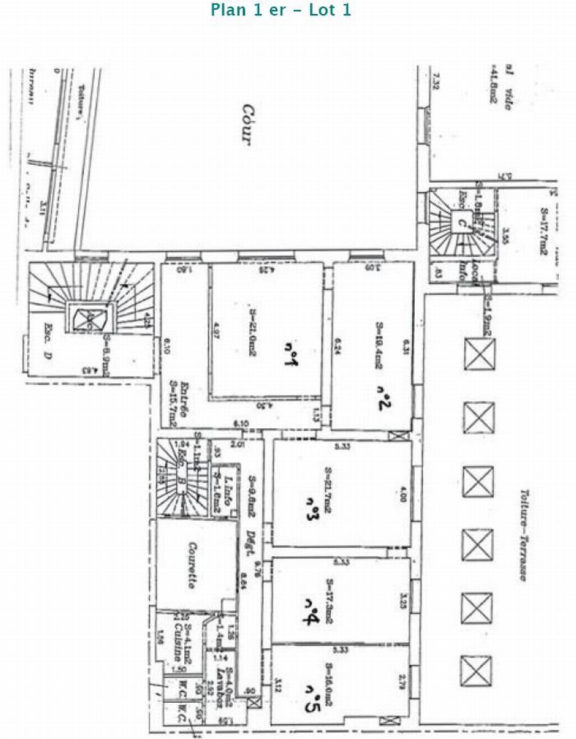
R+4: 135m² à 9000 € HT/mois, 5 bureaux environ 25 postes
Services compris: ménage x5/semaine, Wifi, 1 machine à café, 1 fontaine, consommables wc, mobilier
Services & prestations
Aménagements
-
Aménagement des bureaux : Moulures et cheminées
Equipements
-
Ascenseurs : 1
-
Sol bureaux : Parquet
-
Type de chauffage : Collectif
Prestations de service
-
Sécurité : Gardiennage
Extérieurs
-
Façade d'angle : Rue Lafitte
-
Linéaire de façade : 14,00 mètre(s)
Type / Etat du bâtiment
-
Etat de l'immeuble : Etat d'usage
-
Etat des locaux : Etat d'usage Bon état
-
Orientation façade : SUR RUE
Informations complémentaires
-
Belles parties communes










